Добавить в корзинуПозвонить
Найти в Дзене

Нюансы создания занижения бортовых камней для пешеходов и маломобильных групп населения в соответствии с СП 59.13330.2020

Создание занижений для пешеходов и маломобильных групп населения (далее - МГН) в зоне пешеходных путей, при их пересечении с проезжей частью и въездами, является одной из самых больших проблем и вызывает много вопросов при согласовании проектной документации (далее - ПД) в Комитете по благоустройству ( далее - КБ). Основные моменты, которые необходимо учесть при проектировании занижений, это: 1. Геометрические параметры тротуара, то есть его ширина, длинна, а также высота относительно проезжей части (высота оголения бортового камня); 2. Требования следующих пунктов СП 59.13330.2020 «Доступность зданий и сооружений для маломобильных групп населения» (далее - СП 59), а именно: Отдельно надо предусмотреть, чтобы в зону устройства пандусов и тем более граней занижения не попадали крышки колодцев инженерных коммуникаций. В противном случае устройство занижения на данном участке, скорее всего, будет не возможно. И так теперь давайте рассмотрим существующие варианты типов занижений с учётом

Создание занижений для пешеходов и маломобильных групп населения (далее - МГН) в зоне пешеходных путей, при их пересечении с проезжей частью и въездами, является одной из самых больших проблем и вызывает много вопросов при согласовании проектной документации (далее - ПД) в Комитете по благоустройству ( далее - КБ).

Основные моменты, которые необходимо учесть при проектировании занижений, это:

1. Геометрические параметры тротуара, то есть его ширина, длинна, а также высота относительно проезжей части (высота оголения бортового камня);

2. Требования следующих пунктов СП 59.13330.2020 «Доступность зданий и сооружений для маломобильных групп населения» (далее - СП 59), а именно:

  • п. 5.4.5: значения уклонов центрального и боковых (если они есть) поверхностей пандусов занижений (центральные - не более 6% (в стеснённых условиях до 8%), боковые до 18%;
  • п. 5.4.5: ширина пандуса (не менее 1,5м, но не более ширины пешеходного перехода);
  • п. 5.4.6: высоту (оголение) бортового камня на сопряжении пандуса с проезжей частью (от 0 до 5 мм);
  • п. 5.1.16: наличие горизонтальной площадки перед началом пандуса, необходимая для комфортного разворота и проезда МГН (не менее 1,5х1,5 м с поперечным уклоном не менее 5‰ для водоотвода);
  • п.5.1.7: ширина прохожей части пешеходного пути на тротуаре в зоне устройства занижения (не менее 1,2м, но с учётом горизонтальной площадки в п.5.1.16).
Основные элементы классического эскиза
Основные элементы классического эскиза

Отдельно надо предусмотреть, чтобы в зону устройства пандусов и тем более граней занижения не попадали крышки колодцев инженерных коммуникаций. В противном случае устройство занижения на данном участке, скорее всего, будет не возможно.

И так теперь давайте рассмотрим существующие варианты типов занижений с учётом вышеизложенными требованиями:

1. Классическая «косынка» и её варианты.

Классический эскиз занижения «косынка» представляет собой комбинацию трёх пандусов, один из них - основной центральный, по которому происходит движение пешеходов и МГН, два других – боковые, служащие для устройства сопряжения тротуара и центрального пандуса, но, в тот же момент они могут также служить для прохода, если имеют небольшое значение уклона (до 6%).

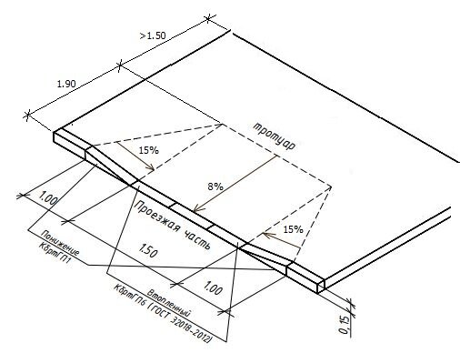
Классический эскиз занижения «Косынка» для стеснённых условий с максимальным уклоном центрального пандуса 8%
Классический эскиз занижения «Косынка» для стеснённых условий с максимальным уклоном центрального пандуса 8%

Этот вид занижения возможно применять только на достаточно широких тротуарах. Так при величине оголения бортового камня 0,15 м вдоль проезжей части, длина пандуса составит 1,9 м (при уклоне 8%, т.е. в стеснённых условиях), также мы должны обеспечить пешеходный путь (мин. 1,2 м; п. 5.1.7 СП 59) и/или площадку перед пандусом (1,5х1,5 м; п. 5.1.7 и п. 5.1.16 СП 59). Таким образом, в нашем случае, устройство данного вида эскиза возможно на тротуаре с минимальной шириной 3,4 м (1,9м + 1,5м), а если учитывать, что пандус начинается от бортового камня (бордюра), то необходима ширина составит более 3,5 м. В противном случае необходимо рассматривать устройство иного вида эскиза, о чём мы поговорим ниже.

Также в стеснённых условиях, например, если рядом расположен газон или же какая-то помеха, например, опора освещения или ТСОДД, возможно устройство данного вида эскиза без одного или же совсем без боковых пандусов.

Вариант занижения без боковых пандусов, когда сопряжение пандуса с тротуаром выполнено с помощью бортового камня КбртГП1.
Вариант занижения без боковых пандусов, когда сопряжение пандуса с тротуаром выполнено с помощью бортового камня КбртГП1.
Вариант занижения без одного бокового пандуса
Вариант занижения без одного бокового пандуса

2. Занижение «на всю ширину»

В том случаем, если необходимо выполнить устройство занижения на узком тротуаре (ширина менее 3,5 м) и устройство занижения типа «косынка» не возможно без нарушения требований СП 59, то в этой ситуации можно рассмотреть применение занижения «на всю ширину». Данный вид эскиза, как правило, состоит из двух основных пешеходных пандусов (с уклоном до 6%, а в стеснённых условиях до 8%) и одной горизонтальной площадки между ними. При этом на данной площадке сохраняется поперечный уклон, как и на основном тротуаре (до 2%).

Вариант эскиза занижения на всю ширину тротуара.
Вариант эскиза занижения на всю ширину тротуара.
Вариант эскиза занижения на узком тротуаре, например, шириной 2,0м.
Вариант эскиза занижения на узком тротуаре, например, шириной 2,0м.

В случае если тротуар, на котором применяется данный вид эскиза, является тупиковым или же он сопрягается с иным видом покрытия ниже уровня основного тротуара (например, обочина или проезжая часть), тогда можно данный вид эскиза выполняется без второго пандуса.

Вариант эскиза занижения на всю ширину с одним пандусом и горизонтальной пониженной площадкой, например на тупиковом тротуаре.
Вариант эскиза занижения на всю ширину с одним пандусом и горизонтальной пониженной площадкой, например на тупиковом тротуаре.
Вариант эскиза занижения на всю ширину с одним пандусом и горизонтальной пониженной площадкой, например на сопряжении с обочиной дороги.
Вариант эскиза занижения на всю ширину с одним пандусом и горизонтальной пониженной площадкой, например на сопряжении с обочиной дороги.

На горизонтальных площадках занижений для водоотведения обязательно следует предусматривать уклон хотя бы от 5 до 10‰, или же равный поперечному уклону основного тротуара (до 2%).

3. Занижение на разделительной полосе или островке безопасности («сквозное»).

В этом случае применяется так называемое «сквозное» занижение. Это эскиз, состоящий из одной горизонтальной площадки и отделённый бортовым камнем от основной части разделительной полосы (островка безопасности).

Вариант эскиза на разделительной полосе
Вариант эскиза на разделительной полосе
Вариант эскиза на разделительной полосе без боковых бортовых камней вдоль заниженного участка в зоне пешеходного пути.
Вариант эскиза на разделительной полосе без боковых бортовых камней вдоль заниженного участка в зоне пешеходного пути.

На горизонтальных площадках пандусов для водоотведения следует предусматривать уклон от 5 до 10‰.

При этом необходимо учесть, что покрытие островка и проезжей части должно быть конструктивно отделено бортовым камнем в соответствии с ГОСТ 52289-2019.

Также для отделения основной (возвышенной) части разделительной полосы (островка безопасности) от его заниженного участка (зона пешеходного пути) невозможно использовать бортовой камень БР 100.20.8 в силу его конструктивных параметров, т.е. его невозможно установить с большим оголением, например, в 10-15 см.

4. Иные варианты эскизов занижений.

Теперь рассмотрим другие нестандартные и более сложные варианты эскизов занижений. Например, таким может быть занижение на сопряжении тротуара с въездом не под прямым углом. Или же, когда на въезде имеются скосы или кривые для удобного заезда автотранспорта. При этом использование ранее рассмотренных занижений затруднительно и требует их небольшого изменения.

В таком случае, необходимо сохранить прямоугольный в плане пандус, чтобы величина его уклона имела одно значение, в противном случае спуск для МГН на таком пандусе будет затруднён, а также предусмотреть участок горизонтальной площадки после пандуса в одном уровне с въездом.

Вариант  эскиза занижения на пересечении тротуара с въездом, имеющем скосы для заезда автотранспорта.
Вариант эскиза занижения на пересечении тротуара с въездом, имеющем скосы для заезда автотранспорта.
Ещё один вариант  эскиза занижения на пересечении тротуара с въездом, имеющем скосы для заезда автотранспорта, при этом к тротуару УДС примыкает внутридворовый тротуар.
Ещё один вариант эскиза занижения на пересечении тротуара с въездом, имеющем скосы для заезда автотранспорта, при этом к тротуару УДС примыкает внутридворовый тротуар.
Вариант эскиза на примыкании тротуара к въезду,  имеющему кривые для заезда автотранспорта.
Вариант эскиза на примыкании тротуара к въезду, имеющему кривые для заезда автотранспорта.

Также к нестандартным сложным эскизам занижений можно отнести занижения расположенные на пересечении двух или трёх пешеходных путей, где необходимо выполнить устройство соответствующего количества пандусов, примыкающих к одной горизонтальной площадке.

Вариант эскиза занижения на пересечении двух пешеходных путей (тротуаров) с устройством двух пандусов примыкающих к  горизонтальной площадке.
Вариант эскиза занижения на пересечении двух пешеходных путей (тротуаров) с устройством двух пандусов примыкающих к горизонтальной площадке.
Вариант эскиза занижения на пересечении трёх пешеходных путей (тротуаров) с устройством трёх пандусов примыкающих к  горизонтальной площадке.
Вариант эскиза занижения на пересечении трёх пешеходных путей (тротуаров) с устройством трёх пандусов примыкающих к горизонтальной площадке.

5. Занижения бортовых камней на тротуарах со смежно расположенной велодорожкой.

В последние года на УДС Петербурга всё чаще проектируют велосипедные дорожки, поэтому необходимо отдельно рассмотреть эскизы занижений бортовых камней на тротуарах, рядом с которыми расположены велодорожки.

Как правило, такие эскизы занижений имеют увеличенную общую ширину пандусов и являются комбинацией занижений рассмотренных ранее. Далее рассмотрим несколько вариантов таких занижений.

Занижение с общим пандусом для велодорожки и тротуара,  разделённые дорожной разметкой, т.е. без конструктивного разделения).
Занижение с общим пандусом для велодорожки и тротуара, разделённые дорожной разметкой, т.е. без конструктивного разделения).
Занижение с общим пандусом для велодорожки и тротуара,  разделённые конструктивно бортовым камнем БР100.30.18.
Занижение с общим пандусом для велодорожки и тротуара, разделённые конструктивно бортовым камнем БР100.30.18.
Занижение с общим пандусом для велодорожки и тротуара (без конструктивного разделения) с газоном с одной стороны.
Занижение с общим пандусом для велодорожки и тротуара (без конструктивного разделения) с газоном с одной стороны.
Занижение бортовых камней на разделительной полосе совмещённого тротуара с велосипедной дорожкой.
Занижение бортовых камней на разделительной полосе совмещённого тротуара с велосипедной дорожкой.

Спасибо за внимание, удачи в делах и хорошей дороги!

Читайте также: