Найти в Дзене
Филдс

Как дизайнер оформила квартиру 22 м² за 750 тыс руб для сдачи в аренду, на которую всегда будет высокий спрос

Оглавление

Дизайнер Элина Мусина оформила студию площадью всего 22 м² для сдачи в аренду. Квартира покупалась в качестве инвестиции, требовалось создать интерьер «под ключ». Чтобы обособить функциональные зоны, использовали разные цвета и фактуры, а также мебель.

  • Общая площадь: 22 м²
  • Место: Москва
  • Тип дома: типовая серия домов от застройщика «ПИК»
  • Количество комнат: студия
  • Высота потолка: 2,6 м
  • Кто здесь живет: сдаётся в аренду
  • Бюджет: 750 тыс. рублей
  • Дизайнер: Элина Мусина

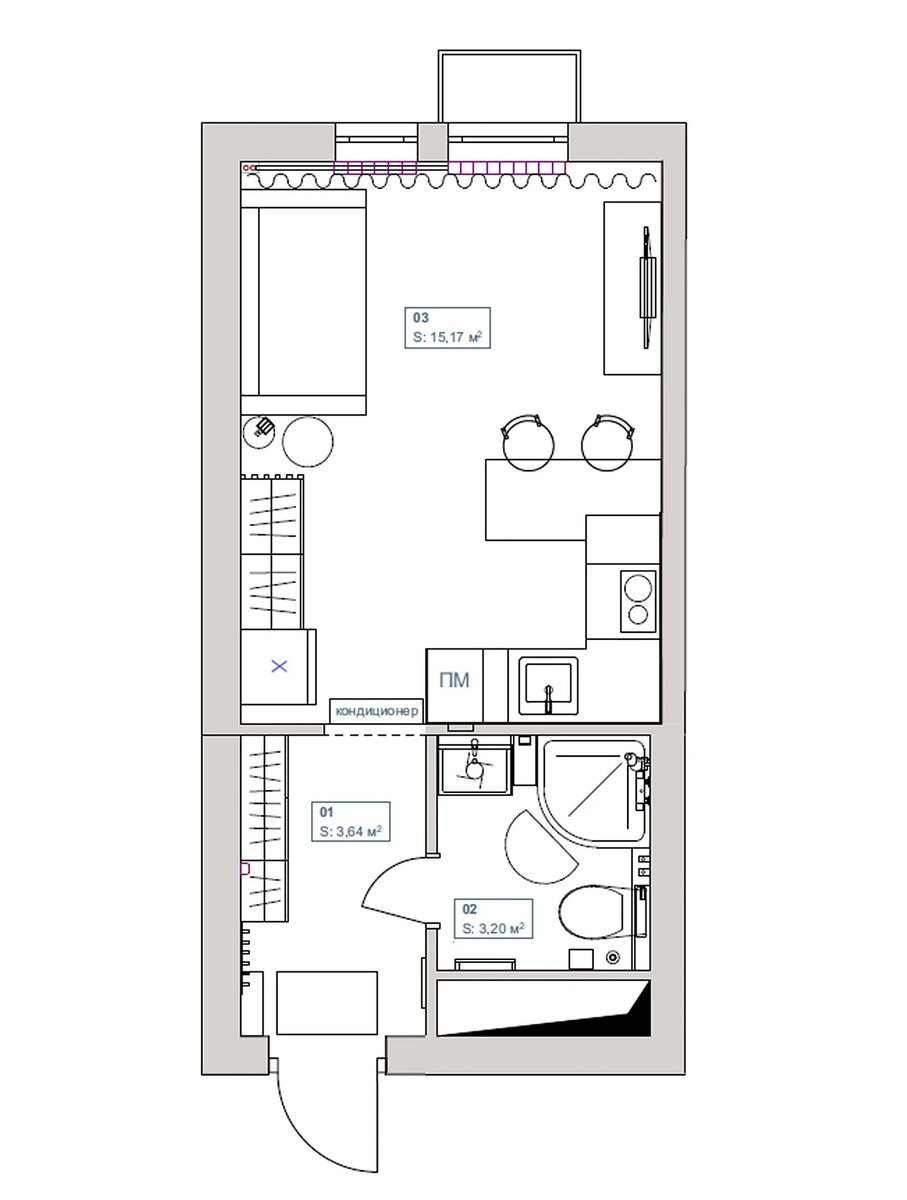
Планировка

В студии была отделка от застройщика. Её частично сохранили — не стали трогать ламинат в комнате и плитку на полу в прихожей и в ванной. Изменения коснулись стен и санузла — обои в кухне-гостиной заменили на краску, в душевой зоне в ванной положили новую плитку, а остальные стены там покрасили.
В студии была отделка от застройщика. Её частично сохранили — не стали трогать ламинат в комнате и плитку на полу в прихожей и в ванной. Изменения коснулись стен и санузла — обои в кухне-гостиной заменили на краску, в душевой зоне в ванной положили новую плитку, а остальные стены там покрасили.

Гостиная

Ярким акцентом в гостиной стала цветная полоса на стене за желтым диваном. Она одновременно обозначает границы функциональной зоны и служит обрамлением для картины. Связать пространство воедино помогает текстиль — ковёр на полу, декоративные подушки на диване.

Кухня

Несмотря на маленькую площадь, требовалось выделить место для полноценной кухни. Чтобы увеличить площадь для готовки, гарнитур дополнили барной стойкой. Она играет роль обеденного стола. Навесные шкафы пустили только по одной стене и укомплектовали открытыми полками. Это помогло визуально облегчить интерьер.

Прихожая

Стены в прихожей окрасили в технике колор-блок, совместив винный и изумрудный оттенки, которые встречаются в комнате и санузле. При входе предусмотрели крючки для верхней одежды, а также подвесную обувницу, которая одновременно служит консолью для мелочей. На входе в комнату поставили ещё один шкаф.

Санузел

В санузле плитку использовали только на полу и в зоне душевой, остальные стены покрасили краской. Здесь также присутствуют насыщенные красные акценты — плинтус и роспись за санфаянсом. От раковины с тумбой отказались, чтобы было куда поставить стиральную машину.

Подпишись на канал Филдс, чтобы первым видеть новые публикации. Интересные мнения в комментариях приветствуются. Если материал понравился — ставь лайк!

Facebook, Instagram, Вконтакте