Найти в Дзене
ГидроПрепод

Планировки новых общежитий. Часть 1. Результаты ЕГЭ.

Оглавление

День добрый! Сегодня посмотрим на проекты планировок комнат в различных новых и строящихся общежитиях России. Прошло уже 15 лет, с момента запуска "великого-и-ужасного" ЕГЭ, объекта споров, битв и откровенного нытья граждан нашей необъятной страны. Именно мой школьный выпуск и лично Я, были теми, на котором тестировали первый массовый ЕГЭ по математике. Сейчас можно посмотреть на интересные последствия этого решения. Отбросим пустые вопли про "поколение-ЕГЭ" это всё чушь. Многим трудно объяснить цель его введения, так как, она не имеет отношения к процессу обучения, он не изменился, как и программа в школах. Он нужен просто для того, чтобы перетащить талантливую молодежь из деревень на периферии, в более продвинутые вузы. Как раньше поступали в университет в моё время - куда хватило денег родителям отвезти ребенка, туда он и получал возможность поступить (и то если сможет). Теперь куда захотел отправить документы, туда и поступай. Поэтому самый громкий плач раздается со стороны города Москва. Раньше процент москвичей в ВУЗах был 70%, а стал 30%, чего и требовалось достичь. Вроде всё прекрасно и проблема решена, но тут появилось интересное следствие этого "чудного" решения, если число приезжих студентов увеличилось и выросла студенческая мобильность, то куда Мы их будем селить?.... Данный факт вызвал повальную потребность строительства общежитий, что Нас как строителей не может не радовать).

Теперь начнем обзор планировок комнат в новых и строящихся студенческих общагах. Сразу скажу, рейтинга никакого нет. Оценок Я не выставляю, порядок перечисления взят с потолка.

1. Белгородский юридический институт МВД России имени И.Д. Путилина, общежитие на 850 мест.

-2

Все блоки в институте типовые, комнаты рассчитаны на двух жильцов, крови стоят нога к ноге, мне такая схема не нравится, так как спать головой ко входу в помещения я не люблю. В каждой комнате по одному столу на жильца, тут мне нравится всё безумно, стол стоящий у крупного окна просто мечта, только бы стена не оказалась южной)))). Санузел раздельный, кухни общие на этажах.

2. Медицинский колледж в п. Усть-Ордынский, общежитие 120 мест.

-3

Все комнаты - типовые, состоящие из двух жилых комнат на двух жильцов каждая. Расположение столов неудобное, сидеть вдвоём как за школьной партой не удобно. Особенно бросается в глаза планировка, вход в общую территорию возможен только через комнаты. Кухня, что необычно тоже имеет крупное окно, мне кажется для один из самых светлых проектов планировок в общежитиях. Кухня большая, с мойкой и плиткой, стол полноценный на 4-х человек.

3. Общежитие на 500 мест, Воронежский институт МВД.

-4

Достаточно комфортная планировка, но не лишенная нескольких явных минусов. При учете того, что блок рассчитан на 4 человека, кухонная зона приема пищи - стол и всего-лишь 2 стула. Видимо наличие телевизора (кружок 36) было прописано в ТЗ, так как из-за этого архитектор с технологом были вынуждены располагать кровати таким неудобным образом. Может это моя вкусовщина, но мне не нравится ни спать рядом с чьими либо ногами, ни рядом со входом в комнату. Из прекрасного - расположение рабочих столов. Они повернуты полубоком к окну, мне такая компоновка лично нравится. Второй плюс - унитаз и умывальник разделены дверью на два помещения, это позволяет утром спокойно чистить зубы и умываться не дожидаясь соседа сидящего на унитазе, а учитывая, что это МВД, то просыпаться и собираться все будут одновременно.

4. Общежитие для магистров (MIB) Высшей школы менеджмента ФГОУ ВПО «СПГУ».

-5

Очередная неоднозначная планировка. С одной стороны полное отсутствие кухонь, с другой нормальное разделение на одноместные комнаты. Сразу бросается в глаза два необычных момента, первый - наличие балкона с выходами с каждой комнаты. Это гарантировано приведет к проблеме раздражающих курильщиков, которых будет сложно отследить, в безгрешность магистров и их порядочность в плане курения не верю, ибо сам им был. Тут же будем надеяться, что балконные двери запроектированы непрозрачными, потому что комната сразу превратится в аквариум. Увидеть посреди ночи соседа с сигаретой перед твоей дверью - дико спорное ощущение. Второй момент - сразу 2 санузла, правда душевая кабина есть только в одном из них, зачем столько, неизвестно. Лично меня в этом проекте сразу начало раздражать наличие углов не под 90 градусов.

5. Общежитие в межвузовском студенческом городке в Санкт-Петербурге.

-6

Из плюсов - наличие одноместных номеров в блоке, минусов Я вижу не менее двух. Первый - расположение столов - парное, лично мне так работать не удобно, да и работать за полночь в этом случае без помехи спящему рядом соседу не получится. Второй - изголовье кровати одноместного номера технолог с какого-то перепугу развернул к стене туалета, да и ещё к технологическому коробу, к которому должны прокладываться стояки и вентиляция. Кухни кстати тоже нет, как и в прошлом проекте.

6. Общежитие на 1200 мест Севастопольского государственного университета, г. Севастополь.

-7

Достаточно сбалансированная планировка, но тоже не без изъянов. Плюсы - нормальное число туалетов и душевых, наличие кухни. Минус - блок достаточно населенный и хлопанье дверьми и теснота на кухне будут обеспечены. Маленький минус - жадность, по которой крайнюю левую комнату спланировали под двух жильцов - она достаточно узкая и при одновременной рассадке за столами становится тесно, плюс обитатель кровати у столов будет явно не доволен своим соседом, когда тот будет сидеть там во время сессии. Приятный бонус - каждая душевая и санузел снабжены собственными умывальниками и нет нужды чистить зубы и умываться в проходе.

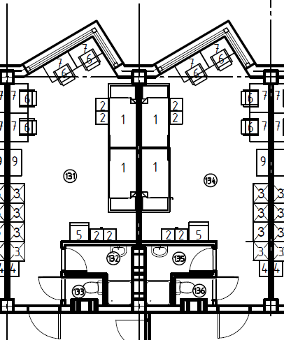
7. Общежитие на 450 мест ФГАОУ ВО "Крымский федеральный университет им. В.И. Вернадского" в г. Симферополе

-8

Один из самых квадратно-гнездовых и неудачных, на мой вкус, вариантов в этой статье. Все с виду просто, две комнаты, нет кухни, маленькие шкафы, туалет и душевая... только расположены они аккурат за стенкой от одного из жильцов, причем в каждой комнате. Особенно странно выглядит то, что у изголовья кровати в правой комнате расположен туалет вообще от другого блока.... Больше тут нечего сказать. Хотя есть интересная особенность, но не в плане планировок комнат. На границе туалета и коридора расположены технологические короба с дверцами. Тут архитектор наверно услышал мольбы всех инженеров по эксплуатации) Такое решение реально находка. Почему шкафчик 27 нельзя было поставить между столами и разделить их, мне не понятно.

Если Вы хотите научится рассчитывать инженерные сети водопровода, то Вам точно стоит посетить наш учебный центр: http://hydreducation.tilda.ws/.

Ссылка на наш telegram-канал t.me/HYDReducation .

Новые строительные проекты России! / Фабрики до электричества / Разрушение Каховской ГЭС / Вакуумная канализация