Найти в Дзене

Правильный размер мангала

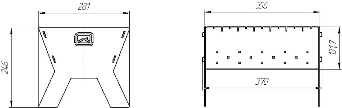
Может показаться, что выбор мангала – не такой важный момент. Ведь главное при отдыхе на природе, чтобы он был, и была возможность приготовить шашлык. Для использования один раз действительно может подойти любая конструкция. Однако если вы хотите купить мангал, наверняка, подразумеваете, что будете использовать его не раз. Поэтому важно, чтобы пользоваться жаровней было удобно, а ее глубина и длина позволяли приготовить качественное блюдо (мясо должно хорошо прожариваться и не пригорать). Рассмотрим, какой оптимальный размер мангала для шашлыка. Какими должны быть его глубина, ширина, высота, длина и толщина. Глубина Оптимальное значение – 15-20 см. При этой слой угля должен располагаться на высоте 5-10 см. То есть, расстояние от углей до шампуров должно составлять примерно 10 см, а от углей до мяса – 8 см. Ширина Все зависит от длины шампуров. При стандартном размере элементов 45-50 см и рабочей части около 30-35 см ширина жаровни должна составлять в среднем 40 см. При меньшей ширине
Оглавление

Может показаться, что выбор мангала – не такой важный момент. Ведь главное при отдыхе на природе, чтобы он был, и была возможность приготовить шашлык. Для использования один раз действительно может подойти любая конструкция. Однако если вы хотите купить мангал, наверняка, подразумеваете, что будете использовать его не раз. Поэтому важно, чтобы пользоваться жаровней было удобно, а ее глубина и длина позволяли приготовить качественное блюдо (мясо должно хорошо прожариваться и не пригорать).

-2

Рассмотрим, какой оптимальный размер мангала для шашлыка. Какими должны быть его глубина, ширина, высота, длина и толщина.

Глубина

Оптимальное значение – 15-20 см. При этой слой угля должен располагаться на высоте 5-10 см. То есть, расстояние от углей до шампуров должно составлять примерно 10 см, а от углей до мяса – 8 см.

Ширина

Все зависит от длины шампуров. При стандартном размере элементов 45-50 см и рабочей части около 30-35 см ширина жаровни должна составлять в среднем 40 см. При меньшей ширине мясо будет располагаться близко, и обжариваться оно будет не так эффективно.

Высота

Значение выбирается с учетом удобства использования. Чтобы обеспечить комфорт при готовке, мангал не должен быть слишком низким или слишком высоким. Стандартная высота изделия – 75-125 см – параметр выбирается в зависимости от роста пользователя. Оптимальный вариант – когда устройство для жарки располагается на уровне пояса, а руки находятся в полусогнутом состоянии.

Длина

От данного параметра зависит, сколько шампуров можно будет располагать. Пространство между шампурами должно составлять 5 см, чтобы шашлык можно было легко переворачивать. Для 6 шампуров требуется изделие длиной 60 см (по 5 см с каждой стороны шампура). Соответственно, для 10 шампуров выбирается жаровня длиной 1 м. Такие размеры обычно у стационарных моделей, а стандартная длина мобильных мангалов – 60-70 см.

Хотя эти значения примерные. Например, некоторые на мангале длиной 60 см жарят 7-8 порций шашлыка. Кстати, для решеток подходят модели длиной до 40 см. Они более компактные.

Толщина

Чем толще металл стенок, тем более долговечное изделие. Стандартная толщина для стационарных мангалов – 8 мм, для переносных – 4 мм.

Другие особенности выбора

-3
-4

Чтобы выбрать размеры правильного мангала, нужно учитывать сочетание разных параметров. Например, при определении глубины учитывается способность конструкции удерживать тепло, а она выше у моделей с толстыми стенками. То есть, если стенки мангала около 8 мм, тепло внутри будет удерживаться хорошо. Поэтому будет эффективен даже слой углей примерно 5 см. А глубина тогда может быть 15 см. Если стенки тонкие, слой углей нужен до 10 см. Поэтому и глубина должна быть около 20 см.

При выборе длины необходимо учитывать количество человек, для которых будет готовиться шашлык. Для большой компании модель в 60 см не подойдет, так как на ней будет умещаться мало шампуров. Желательно покупать изделие длиной 1 м, чтобы на нем можно было приготовить сразу много шашлыка.

-5

Если нужно, чтобы мангал использовался с решеткой для барбекю, учитывают ее размеры. Стандартные параметры решетки – 18х28 см. Устанавливаться она должна на расстоянии 5-8 см от углей. То есть, жаровня не должна быть слишком глубокой.

Чтобы понять, какой идеальный размер мангала, нужно учитывать высоту пользователей, количество человек, для которых будет готовиться блюдо, тип устройства для жарки (для приготовления шашлыка или барбекю) и другие параметры. Зная основные нюансы, выбрать подходящую модель довольно легко.

Подписывайтесь на наши социальные сети:

Печи
176,1 тыс интересуются