Найти в Дзене
Дачный СозонТ

Проектирование систем отопления высотных жилых зданий. Нюансы и сарказм. (ссылка на бусти)

Прислали на проверку проект 24-х этажного жилого дома. Высотки уже строят постоянно, и казалось бы, что там можно выполнить не так, уже все известно и понятно. Но не в нашей сфере. Экспериментаторы - пофигисты, наплевательски выполняющие свою работу, всегда есть, причем, даже невзирая на свои почтенные лета и стаж. Так и этот проектировщик с возрастом за 50 лет, постоянно преподносит сюрпризы, тут - как говорили в старину, - двадцать лет в полку, да все без толку. Обратились знакомые монтажники с просьбой дать рекомендации. Т.к. запустить «чудную» уже смонтированную систему теплоснабжения им не удается. Ну, для начала, первые вопросы к экспертизе. Не уж-то уважаемые эксперты при проверке не заметили грубых ошибок в проекте??? Вы так-то, за проверку получаете деньги. Пора бы уже вводить ответственность за качество экспертных работ. И систему штрафных баллов, на базе отзывов, набрала экспертная организация энное количество «красных карточек», все во главе с начальством идут на внеоче

Статья приведена частично, материал в полном объеме находится тут (доступ платный)

Прислали на проверку проект 24-х этажного жилого дома. Высотки уже строят постоянно, и казалось бы, что там можно выполнить не так, уже все известно и понятно. Но не в нашей сфере.

Экспериментаторы - пофигисты, наплевательски выполняющие свою работу, всегда есть, причем, даже невзирая на свои почтенные лета и стаж. Так и этот проектировщик с возрастом за 50 лет, постоянно преподносит сюрпризы, тут - как говорили в старину,

- двадцать лет в полку, да все без толку.

Обратились знакомые монтажники с просьбой дать рекомендации. Т.к. запустить «чудную» уже смонтированную систему теплоснабжения им не удается.

Ну, для начала, первые вопросы к экспертизе. Не уж-то уважаемые эксперты при проверке не заметили грубых ошибок в проекте??? Вы так-то, за проверку получаете деньги. Пора бы уже вводить ответственность за качество экспертных работ. И систему штрафных баллов, на базе отзывов, набрала экспертная организация энное количество «красных карточек», все во главе с начальством идут на внеочередную проверку знаний за счет экспертизы. Про экспертизу у меня была статья, более глубокую напишу позднее…

Сами господа монтажники - тоже хороши, не увидели того, с чем они столкнулись сейчас. Хорошо, проверить некому, обратитесь к тем, кто может это сделать. Заплатите, знающим людям. Но пока гром не грянет, мужик не пошевелится.

А теперь смонтировали, запустили и не работает. И только потом думаем, создаем комиссии, в которых если наберется, 1% знающих людей, то уже неплохо. Обязательно нужно выезжать на объект, и с умным молчаливым видом погулять на стройке. Зачем ехать? Давайте документацию, понятно что монтажники об исполнительной документации и не слыхивали, хотя бы проект дайте.

Много вы увидите на объекте где 90% коммуникаций уже скрыто, спрятано, замоноличено?

Ладно.....«критиковать и злобствовать всегда легче. Выдвинуть разумную программу действий — значительно труднее».

Начинаем разбирать «проект»

-2

Н

-3

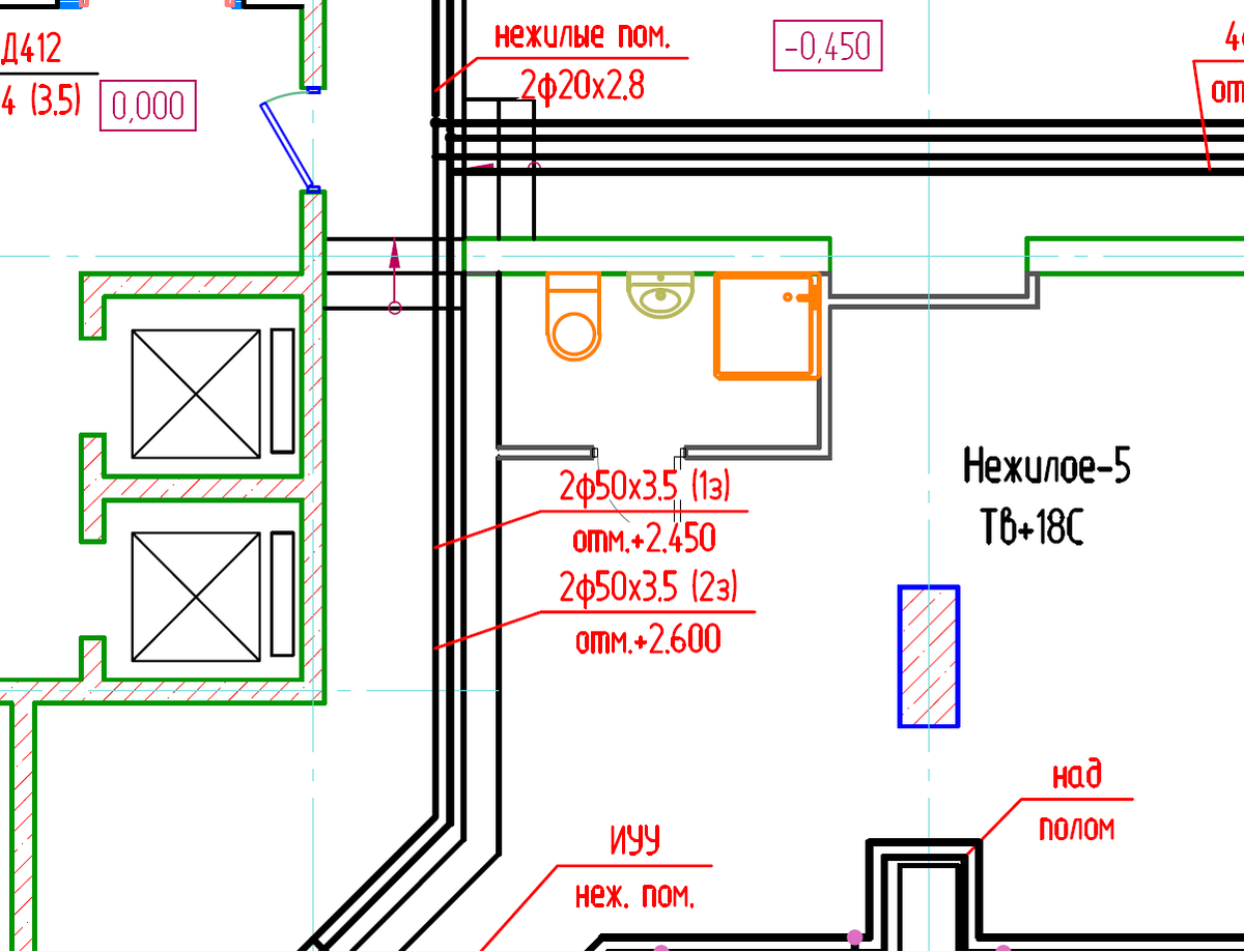
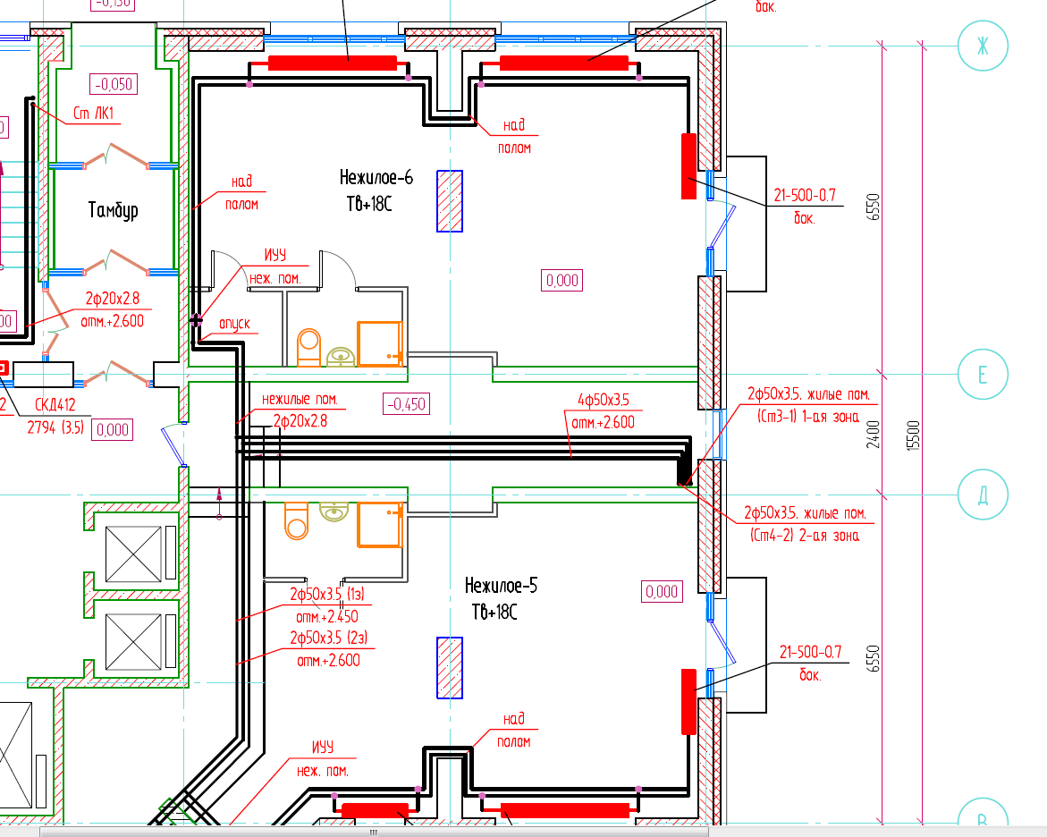
Очень бы мне хотелось, чтобы проектировщик дал настройку клапанов в коллекторных шкафах и выполнил увязку контуров. А так, состряпать раздел ОВ на 11 листов "на отвяжись" сможет любой двоечник.

.

-4

-5

-6

-7