Найти в Дзене
ТЕХНОНИКОЛЬ ИЖС

Сельская ипотека 2024: Какие дома подходят для строительства?

Сельская ипотека – это государственная программа, направленная на поддержку молодых семей, желающих приобрести жилье в сельской местности. Программа предоставляет возможность получения льготного кредита на покупку дома или квартиры, а также на строительство жилья. В статье рассмотрим перспективы развития сельской ипотеки в 2024 году, а также основные условия данной программы. Подробнее о программе кредитования читайте на официальном сайте Основные условия сельской ипотеки Требования к объектам недвижимости Требования к земельным участкам: Дополнительные требования к объектам в рамках продукта «Сельская ипотека»: Какие дома подходят для строительства по сельской ипотеке? У Дом ТЕХНОНИКОЛЬ есть проекты, которые подходят для строительства по программе сельской ипотеки, перечислим некоторые из них, полный список смотрите по ссылке МОНЕ, цена домокомплекта от 1 267 804 руб., площадь дома 72.19 м² ДАЛИ, цена домокомплекта от 2 296 604 руб., площадь дома 119.3 м² УЮТНЫЙ 72, цена домокомплект
Оглавление

Сельская ипотека – это государственная программа, направленная на поддержку молодых семей, желающих приобрести жилье в сельской местности. Программа предоставляет возможность получения льготного кредита на покупку дома или квартиры, а также на строительство жилья. В статье рассмотрим перспективы развития сельской ипотеки в 2024 году, а также основные условия данной программы.

Подробнее о программе кредитования читайте на официальном сайте

Основные условия сельской ипотеки

  1. Процентная ставка – от 0,1 до 3 % годовых.
  2. Сумма кредита – до 6 млн рублей.
  3. Срок кредита – до 25 лет.
  4. Первоначальный взнос – от 20%.
  5. Возраст заемщика – от 21 года до 65 лет. При этом последний платёж происходит до исполнения заёмщику 65 лет. 75 лет при условиях: до исполнения заёмщику 65 лет должно пройти не менее половины срока кредита, есть созаёмщик, и срок возврата кредита наступает до исполнения созаёмщику 65 лет.
  6. Постоянная регистрация на территории РФ.
  7. Заемщик должен быть гражданином РФ.
  8. Покупка или строительство жилья в сельской местности или в поселке городского типа.
  9. Жилье должно быть пригодным для постоянного проживания.

Требования к объектам недвижимости

  • Назначение объекта - жилое, в соответствии с правоустанавливающими документами;
  • материал несущих стен и перекрытий - камень, кирпич, бетон, металл, дерево;
  • в квартире и жилом доме допускается отсутствие сантехнического оборудования и внутренней отделки;
  • объект должен располагаться в зоне присутствия АО «Россельхозбанк» на территории Российской Федерации независимо от места постоянной регистрации заемщика;
  • обеспечен централизованными или автономными инженерными системами (электроснабжение, водоснабжение, водоотведение, отопление);
  • наличие кирпичного, бетонного, свайно-винтового, лафетного или каменного фундамента;

Требования к земельным участкам:

  • категория земель: земли населенных пунктов/поселений, земли сельскохозяйственного назначения;
  • меется подъездная дорога, которая находится в свободном доступе и обеспечивает круглогодичный подъезд к земельному участку на легковом автомобиле;
  • на земельном участке возможно наличие сооружений (в том числе незаконченного строительством жилого дома), не соответствующих вышеуказанным требованиям, предъявляемым к дому;
  • земельный участок, должен принадлежать заемщику/созаемщику или третьему физическому лицу на праве собственности, либо на праве аренды для случаев, когда земельный участок находится в государственной или муниципальной собственности. Договор аренды земельного участка должен
    быть заключен на срок свыше 1 года и превышать срок окончательного возврата (погашения) кредита.

Дополнительные требования к объектам в рамках продукта «Сельская ипотека»:

  • объект должен быть не менее размера, равного учетной норме площади жилого помещения в расчете на 1 члена семьи, установленной органом местного самоуправления;
  • объект должен быть расположен на сельской территории (сельской агломерации);
  • этажность жилого дома не более 3-х этажей (при этом в качестве полноценных жилых этажей могут учитываться подвалы, мансарды и цокольные этажи)

Какие дома подходят для строительства по сельской ипотеке?

У Дом ТЕХНОНИКОЛЬ есть проекты, которые подходят для строительства по программе сельской ипотеки, перечислим некоторые из них, полный список смотрите по ссылке

МОНЕ, цена домокомплекта от 1 267 804 руб., площадь дома 72.19 м²

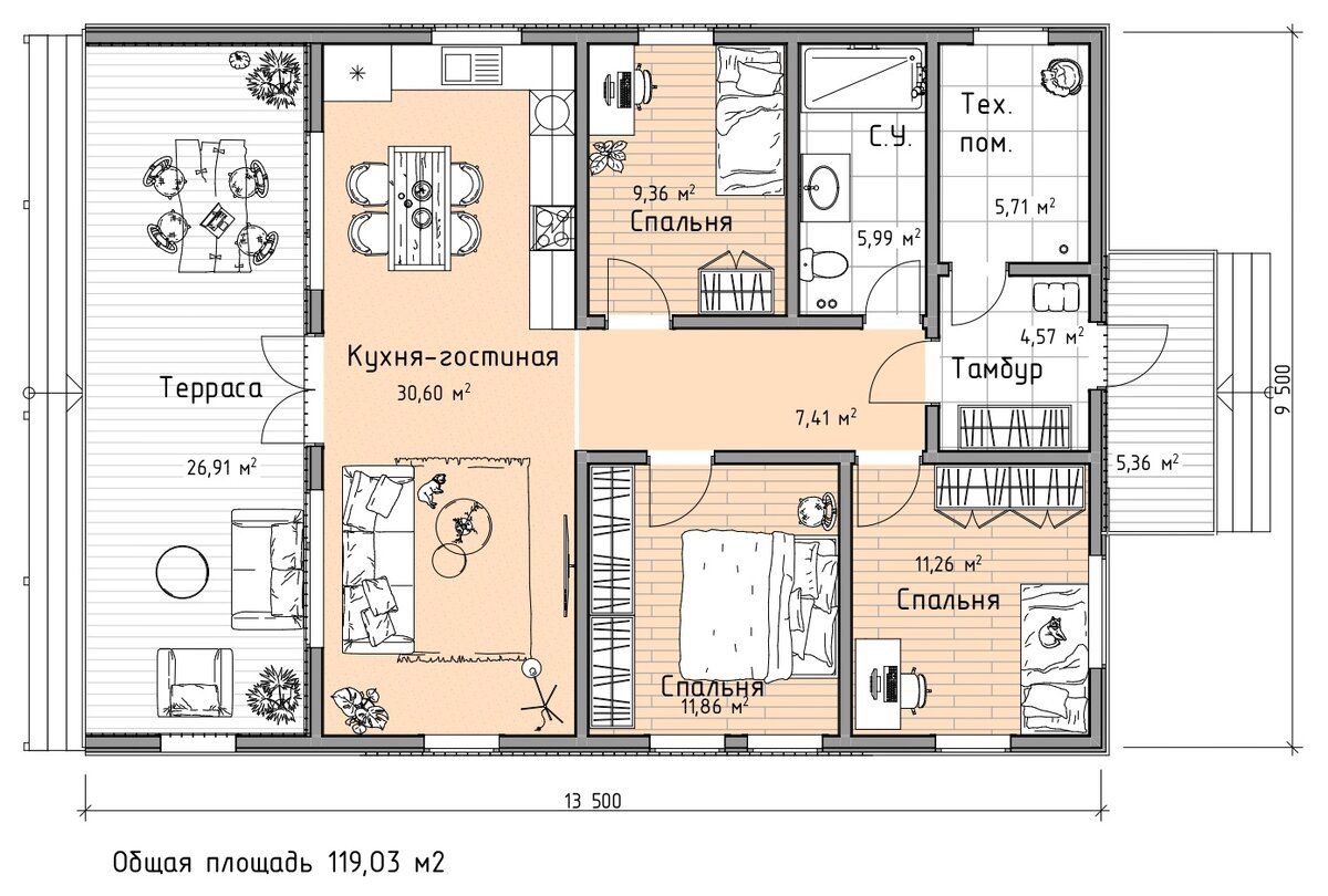
ДАЛИ, цена домокомплекта от 2 296 604 руб., площадь дома 119.3 м²

УЮТНЫЙ 72, цена домокомплекта от 2 063 127 руб, площадь 72.43 м²

Заключение

Таким образом, сельская ипотека является перспективным направлением государственной поддержки граждан, желающих приобрести или построить жилье в сельской местности. В 2024 году ожидается расширение географии программы, увеличение суммы кредита, что позволит большему числу граждан воспользоваться льготными условиями сельской ипотеки.