Добавить в корзинуПозвонить
Найти в Дзене
Хоум Сапиенс

Любопытный фундамент родом из СССР

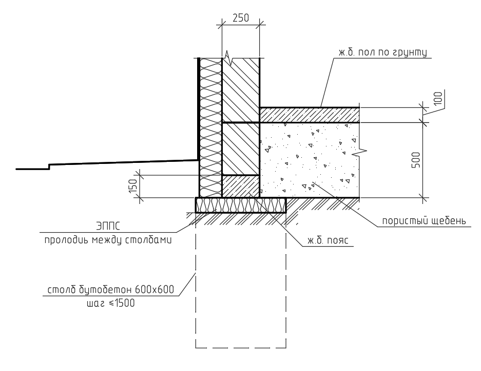
В старой советской типовой серии предложен такой вариант фундамента для деревянных домов: С шагом не более 1,8 метра выкапываются столбики 500х500 (600х600) мм, заливаются дешевым бутобетоном без армирования (или применяется бутовая кладка "в распор"), а по верху выполняется кирпичный цоколь с армошвом понизу, тем самым превращенный в армокирпичную фундаментную балку. Разумеется, фундамент этот не универсальный даже для деревянных домов. Прежде всего, он предполагает простые грунтовые условия - отсутствие пучения, низкий уровень грунтовых вод, структурно устойчивые грунты. Но при соблюдении этих условий такой фундамент превращается едва ли не в чемпиона по рациональности - недорогие материалы, небольшой объем земляных работ, минимум арматурно-опалубочных работ, готовый "приличного" вида цоколь. Современные нормы, правда, заставляют сделать кое-какие корректировки - армированный шов должен обеспечивать толщину защитного слоя арматуры не менее 40 мм, а цокольная стенка должна выполняться

В старой советской типовой серии предложен такой вариант фундамента для деревянных домов:

С шагом не более 1,8 метра выкапываются столбики 500х500 (600х600) мм, заливаются дешевым бутобетоном без армирования (или применяется бутовая кладка "в распор"), а по верху выполняется кирпичный цоколь с армошвом понизу, тем самым превращенный в армокирпичную фундаментную балку.

Разумеется, фундамент этот не универсальный даже для деревянных домов. Прежде всего, он предполагает простые грунтовые условия - отсутствие пучения, низкий уровень грунтовых вод, структурно устойчивые грунты. Но при соблюдении этих условий такой фундамент превращается едва ли не в чемпиона по рациональности - недорогие материалы, небольшой объем земляных работ, минимум арматурно-опалубочных работ, готовый "приличного" вида цоколь. Современные нормы, правда, заставляют сделать кое-какие корректировки - армированный шов должен обеспечивать толщину защитного слоя арматуры не менее 40 мм, а цокольная стенка должна выполняться из материала морозостойкостью не менее F200. Современный кирпич способен обеспечить такую, но он не дешев (хотя и не баснословно дорог). Однако, ему есть альтернатива - полнотелые бетонные вибропрессованные блоки.

При соответствующем обосновании и некоторой доработке такой фундамент можно применить и для легких каменных домов

-2

А если использовать ещё и утепленную отмостку, то можно применить этот фундамент и на пучинистых грунтах.

Апдейт. Я написал про требуемую морозостойкость материала цокольной стенки F200, ориентируясь на требования СП 28 "Защита строительных конструкций от коррозии". Однако СП 15 "Каменные и армокаменные конструкции" допускает для цоколей морозостойкость F50...F100.