Найти в Дзене
Дизайн интерьера ArtGart

Стильная однушка в которой продумано все до мелочей! ЖК Red7

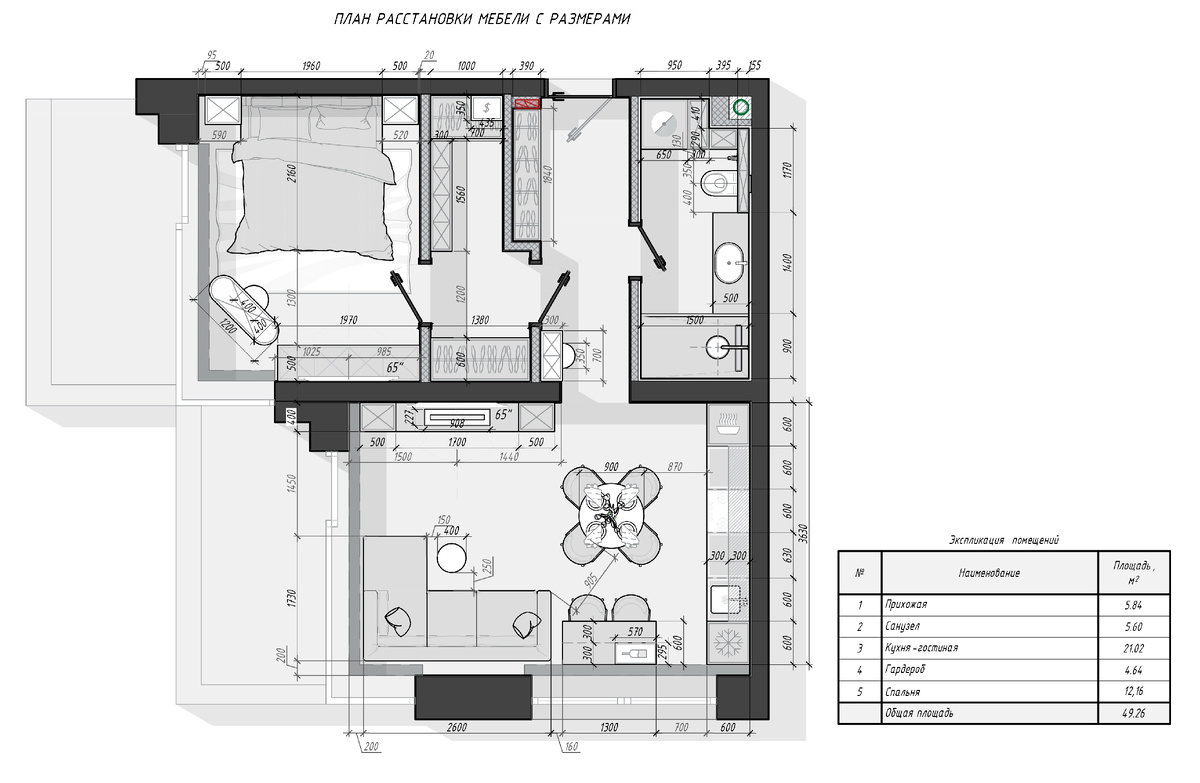
Добро пожаловать в уютный мир квартиры площадью 50 квадратных метров в ЖК Ред7 всего в нескольких шагах от Садового кольца.

Этот проект "Светлый оазис на Чистых прудах" идеальное воплощение гармонии между пространством, светом и функциональностью, созданное специально для семьи, которая ценит комфорт и стиль.

В центре квартиры расположена кухня-гостиная, ставшая настоящим сердцем домашнего уюта. Здесь зоны приготовления пищи и отдыха плавно перетекают друг в друга, создавая атмосферу тепла и дружелюбия.

-2

Кухонный гарнитур выполнен в белом цвете с изысканными элементами декора и фрезеровки, что придает ему утонченность. Фасад острова гармонично повторяет дизайн основного гарнитура, создавая целостный образ. Кварцевая столешница обрамляет остров, превращая его в универсальное пространство для работы и обеда. Внутри острова расположился встроенный винный шкаф.

-3
-4
-5

Барные и обеденные стулья, разработанные нашей студией специально для этого проекта, подчеркивают уникальность интерьера и обеспечивают комфорт. Каждая деталь мебели была создана с учетом пожеланий хозяев, что делает пространство не только стильным, но и функциональным.

-6
-7

На полу керамогранит выполненый по нашим эскизам и изготовлен компанией @megapolis_plitka керамогранит обеспечивает долговечность и легкость в уходе, а также создает единый стиль во всем пространстве.

⭐️ПЛИТКА УЖЕ В ПРОДАЖЕ!

Скидка на коллекцию по промокоду GARTKE - 12 %

-8
-9
-10
-11

В гостиной площадью 21 кв.метр у окна расположился угловой диван, который становится идеальным местом для отдыха и общения. Небольшой журнальный столик завершает композицию, предлагая удобное место для чтения или работы за ноутбуком.

-12

Напротив дивана размещен телевизор, окруженный зеркалами, комодом с электрическим камином. Этот камин не только украшает интерьер, но и увлажняет воздух, создавая приятную атмосферу.

-13

Высокие стеллажи, выполненные по нашим эскизам, добавляют пространству высоты и объема. Декоративные зеркала на стенах визуально расширяют границы комнаты, создавая иллюзию бескрайних просторов.

-14

Основной акцент в интерьере сделан на белый цвет, который наполняет пространство чистотой и легкостью. Легкие оттенки пудры и бежевого цвета используются в текстиле — шторах, диване и декоративных элементах — смягчая общую палитру и добавляя тепла.

-15

Спальня — это сердце любого дома, оазис спокойствия, где восстанавливаются силы после насыщенного дня. В этой спальне каждая деталь играет свою уникальную роль.

За изголовьем кровати расположено эффектное панно с динамическими волнами, символизирующими движение и энергию. Зеркальная вставка вокруг обоев отражает свет, наполняя комнату яркостью и визуально расширяя её границы.

-16

Стены декорированы элегантными молдингами, что придаёт интерьеру классический шарм. Множество зеркал, добавляют глубины и объёма, создавая атмосферу простора и легкости.

-17
-18

Кровать с оригинальным изголовьем, завершает образ спальни. Изголовье продолжает тему диагонального деления, начатую в прихожей и продолжающуюся на дверях спальни. Это создает гармонию и единство стиля во всём интерьере.

-19

Напротив кровати расположена подвесная тумба, а над ней — телевизор.

-20

Возле углового окна установлена консоль для макияжа с мягкими тканевыми фасадами.

-21

Эта спальня идеальное сочетание функциональности и эстетики. Каждый элемент интерьера продуман до мельчайших деталей, создавая атмосферу уюта и комфорта, где хочется проводить время и отдыхать.

-22

Благодаря изначальным размерам помещения нам удалось выделить отдельную гардеробную прямо перед входом в спальню. Хотя это потребовало немного уменьшить площадь самой спальни, результат превзошёл все ожидания. Гардеробная оборудована глубокими шкафами для одежды, вместительными ящиками для хранения мелочей и стеллажом для аксессуаров. Такое рациональное решение позволяет поддерживать идеальный порядок и легко находить нужные вещи.

-23

Прихожая — это первое, что встречает гостей, и её оформление играет решающую роль в создании общего впечатления о квартире. Здесь прихожая, хоть и небольшая, удивляет своей уютной атмосферой и функциональностью.

Два больших зеркала, грациозно расположенные по обеим сторонам от входа в ванную комнату, создают эффект увеличенного пространства. Эти элементы играют ключевую роль в восприятии прихожей, наполняя её воздухом и светом.

-24

Особое внимание стоит уделить оригинальному дизайну дверей, который стал настоящим акцентом в этом проекте. Диагональная фрезеровка на дверных полотнах создает уникальный рисунок, который гармонично повторяется на шкафу-купе и зеркальных панелях. Эта деталь объединяет различные элементы интерьера, придавая им целостный и стильный вид.

Небольшая консоль- удобное место для размещения ключей, почты и других мелочей. Несмотря на свою компактность, она предлагает достаточно пространства для хранения, что делает её идеальным решением для небольших помещений.

-25

Справа от входной двери установлен узкий шкаф для верхней одежды. Элегантные белые фасады с золотыми вставками и ручками придают этому шкафу статусное очарование, делая его настоящим украшением прихожей.

Глянцевый пол в прихожей отражает свет, усиливая ощущение простора и чистоты. Белые тона в сочетании с золотыми акцентами создают атмосферу легкости и элегантности, приглашая гостей окунуться в мир комфорта и уюта.

Таким образом прихожая задает тон всему интерьеру квартиры. Каждый элемент здесь продуман до мелочей, создавая гармоничное и гостеприимное пространство для жизни.

-26

Ванная комната — это не просто функциональное пространство, а настоящий оазис, где начинается и заканчивается день хозяина квартиры. Эта ванная комната стала воплощением простора и комфорта, гармонично сочетая современные дизайнерские тенденции с практичностью использования.

-27

Владельцы квартиры предпочитают душ вместо ванны, поэтому справа от входа расположили просторный душ со статичной перегородкой, что очень удобно на каждый день.

-28

Напротив душа расположился шкаф для стиральной машины, гладильной доски и бытовой химии. Закрытые фасады шкафа помогают поддерживать аккуратный и опрятный вид, а изящная фрезеровка на его дверцах и тумбе под раковиной перекликается с общим стилем интерьера, создавая гармоничное единство.

-29

Над раковиной красуется большое зеркало с вертикальной подсветкой, создающее идеальные условия для утренних и вечерних гигиенических процедур. Эта подсветка не только улучшает освещенность, но и придаёт интерьеру современный и стильный вид.

-30

Пол в ванной комнате отделан матовой плиткой для предотвращения скольжения, что гарантирует безопасность. Латунная вставка на полу добавляет интерьеру особый шик и делает его изысканным. Настенная плитка глянцевая с текстурой оникса из новой коллекции созданий по нашим эскизам.

Современные решения, качественные материалы и внимательное отношение к каждой детали сделали это пространство не только функциональным, но и приятным для использования.

Как вам такая квартира? Какие элементы дизайна вам нравятся больше всего? Делитесь своими мыслями в комментариях!

Не забудьте подписаться на канал

Сайт

INSTAGRAM

YOU TUBE

РУТУБ

ТЕЛЕГРАМ

РИТМ

ЗАКАЗАТЬ ДИЗАЙН И РЕМОНТ

Заказать дизайн и ремонт: +7 (495) 128-13-51 ; +7 (969) 034-60-46

#дизайнинтерьера #дизайнквартиры #дизайнпроект #дизайндома #ремонтдома #designinterior #красиваяквартира #красивыйдом #доммечты #квартирамечты #дизайнермосква #дизайнеринтерьера #дизайнеринтерьерамосква #дизайнстудия #современныйинтерьер #современнаяквартира #ремонт #ремонтдома #жкред7 #ред7 #red7