Добавить в корзинуПозвонить
Найти в Дзене
Ремонт с Прорабом

Пошаговый обзор ремонта квартиры 54 кв.м под сдачу

Исходные данные: 2-х комнатная квартира в новостройке площадью 53,8 кв.м по ул. Пулковская, д. 2. По срокам работ и стоимости напишу в конце статьи. Все работы были закончены в январе 2024 года, так что буквально по "горячим следам" делаю обзор. Основная цель заказчика - получить качественный ремонт "под ключ", не самый дешевый, но и не дорогой. На сегодняшний день, а это начало 2024 года, стоимость ремонтов в Москве начинается от 15-20 тыс. руб/кв.м, если заказчик обращается в строительную компанию. И конечно, за эту цену можно получить самый обычный недорогой ремонт, без изысков. Да, найти дешевле всегда можно, но рекомендую тщательно проверять смету, на эту тему у меня есть отдельная статья, как строительные компании рассчитывают сметы: Дизайн-проекта никакого не предусматривалось. Честно скажу, без каких-либо проектов работать сложнее, приходится постоянно спрашивать у заказчика что, как и где располагаем, какое количество розеток требуется, где их устанавливаем, где будет стоять
Оглавление

Исходные данные: 2-х комнатная квартира в новостройке площадью 53,8 кв.м по ул. Пулковская, д. 2. По срокам работ и стоимости напишу в конце статьи. Все работы были закончены в январе 2024 года, так что буквально по "горячим следам" делаю обзор.

Основная цель заказчика - получить качественный ремонт "под ключ", не самый дешевый, но и не дорогой. На сегодняшний день, а это начало 2024 года, стоимость ремонтов в Москве начинается от 15-20 тыс. руб/кв.м, если заказчик обращается в строительную компанию. И конечно, за эту цену можно получить самый обычный недорогой ремонт, без изысков.

Да, найти дешевле всегда можно, но рекомендую тщательно проверять смету, на эту тему у меня есть отдельная статья, как строительные компании рассчитывают сметы:

Что с дизайн-проектом на ремонт?

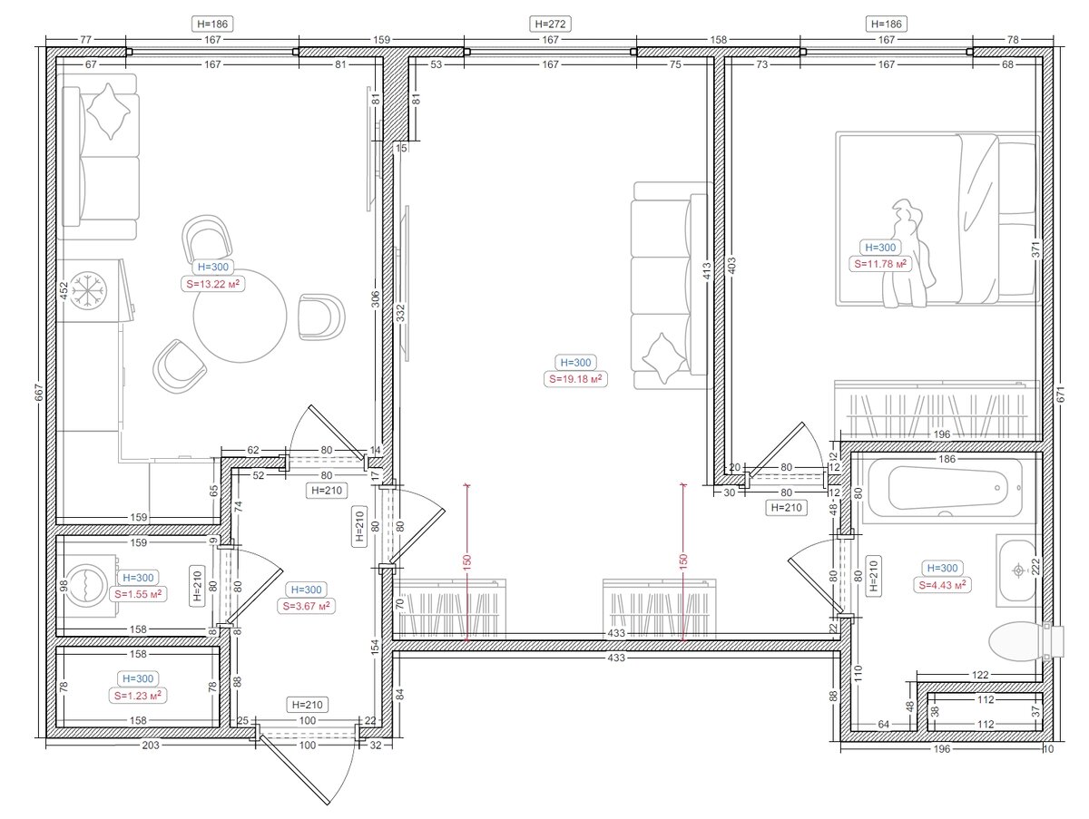
Дизайн-проекта никакого не предусматривалось. Честно скажу, без каких-либо проектов работать сложнее, приходится постоянно спрашивать у заказчика что, как и где располагаем, какое количество розеток требуется, где их устанавливаем, где будет стоять ванная, унитаз, раковина, как будет стоять мебель и так далее. Поэтому в таких случаях, я делаю рабочие чертежи в чертежной программе, согласовываю с заказчиком и передаю в работу своим мастерам. Вот такой согласованный рабочий план получился:

Рабочий план с расстановкой мебели
Рабочий план с расстановкой мебели

Не буду сейчас представлять весь альбом чертежей, который мне пришлось сделать и потратить на это свое время, но помимо плана мебели, сюда вошли также монтажный план, план электрики и сантехники. По сути, это минимальный набор чертежей, который необходим для работы. Я всегда рекомендую заказчикам, что если не хотите тратиться на полноценный дизайн-проект, то закажите хотя бы рабочие чертежи, чтобы мастерам было удобно работать и не было ошибок. Да и вас, заказчиков, будут меньше дергать по этим вопросам.

Перегородки и штукатурка

Традиционно первым этапом я начинаю штукатурку периметра стен и потом возвожу перегородки, чтобы отталкиваться уже от ровных стен.

Весь первый этап длился приблизительно 2,5 недели, после чего он был закрыт актом выполненных работ.

Электрика

Следующим этапом шел монтаж электрики. Поскольку стены были еще влажными после штукатурки, их нельзя было сразу штробить, поэтому оставили объект на несколько дней на просыхание. За это время я как раз согласовывал с заказчиком расположение розеток и выключателей вместе со светильниками.

Хочу заметить, что не всегда работы на объекте идут непрерывно и каждодневно. Иногда приходится делать технологические перерывы, чтобы дать возможность просохнуть поверхностям стен или пола. Не все заказчики это знают и думают, что если начали ремонт, то работы там должны делаться без остановок и без выходных. Штукатурке надо дать возможность "схватиться" и просохнуть хотя бы несколько дней, чтобы дальше можно было спокойно штробить стены, прокладывать кабель и устанавливать подрозетники. Иначе она будет "разваливаться" в процессе штробления.
На некоторых этапах у меня идет смена мастеров, например на первом этапе отштукатурили перегородки, потом я их перекинул на другой объект, а на этот объект заходит электрик. И так далее. В целом ремонт 1 объекта делают более 10 мастеров, но у каждого свой порядок работ. И да, выходные у нас тоже бывают.

С электрикой все довольно просто, но, самое главное, нужно проверить точки привязок - соответствуют ли места расположения будущих розеток и выключателей в соответствии с рабочим проектом и проверить технологию прокладки кабеля. С этим все понятно, идем дальше.

Монтируем инженерную сантехнику

По плану у нас ванная комната и кухня, где необходимо провести разводку водоснабжения и канализации. Что касается отопления, то заказчик, увы, решил оставить ее от застройщика, как я ни пытался уговаривать. Я всегда рекомендую менять трубы от застройщика, так как они имеют тройниковые соединения. В будущем это чревато тем, что в этих соединениях может произойти течь, а сверху будет цементно-песчаная стяжка и в случае аварийной ситуации, вскрывать придется всю стяжку.

Но не будем о грустном, надеемся, что все будет хорошо. А у нас, тем временем, полным ходом идут сантехнические работы.

Последний этап чернового ремонта - стяжка пола

На стяжку пола я в 90% случаях приглашаю своих подрядчиков по полусухой стяжке. Это быстро, качественно и удобно. Ходить по полу можно уже на следующий день. Моя задача дать подрядчикам техзадание по уровню пола, то есть там где будет плитка на полу - одна толщина, там где будет другое напольное покрытие - другая. Иначе потом будут проблемы. Даешь задание и оставляешь их на весь день. Так как работу они свою знают, делают ее четко и профессионально.

Перед устройством стяжки необходимо было уложить по полу пеноплекс, так как высота стяжки в противном случае была бы более 10 см, что дает большую нагрузку на монолитное перекрытие и удорожает саму стяжку в целом.

Что получаем на выходе:

На этом этапе мы завершаем черновой ремонт и переходим к следующему - чистовому ремонту. Это плиточные и малярные работы, установка чистовой сантехники и электрики, поклейка обоев.

Плиточные работы

Плитка была дешевая, не самого лучшего качества, при подрезке постоянно откалывались края, пришлось заказать еще одну дополнительную коробку плитки, так как с такими краями не хотелось ее укладывать.

На фартуке кухни - плитка "кабанчик" с рисунком:

-9

И, забегая немного вперед, вот такая ванная у нас получилось:

-10

Впереди чистовая отделка и нам осталось провести малярные работы, сделать натяжные потолки и уложить кварцвинил по полу и смонтировать чистовую сантехнику и электрику.

Чистовая отделка

К сожалению, не сохранились фотографии шпатлевочных работ, но перед поклейкой обоев, стены были отшпаклеваны в 2 слоя, ошкурены и загрунтованы. Оконные откосы были также отшпаклеваны, но в 4 слоя, так как они были под покраску и на углы были приклеены защитные малярные уголки. Поскольку квартира предназначалась под сдачу, то защита углов была необходимостью:

Обои были на флизелиновой основе, обычные недорогие:

Натяжные потолки и светильники были установлены после поклейки обоев:

Как только установили двери, приступили к укладке кварцвинила и плинтуса. Для арендной квартиры - это самый лучший вариант, так как такой пол хорошо защищен от износоустойчивости. Плинтус тоже был самый обычный пластиковый.

А еще установили сантехнику в ванной. Кстати, в "мокрых" зонах находятся датчики протечек, которые в случае аварийной сигнализации подадут сигнал о локализации протечки. На эту тему у меня вышла отдельная статья, где подробно описано, насколько такая система защищает вашу квартиру от потопов в квартире.

Датчик протечки под тумбой раковины
Датчик протечки под тумбой раковины

Как только закончили с полом, тут же приехали кухонщики и начали монтировать мебель на кухне:

Кухня получилась вот такой:

Приятно, когда кухня четко ложится к стене и ровно примыкает ко всем углам, не оставляя никаких зазоров и щелей.

Еще несколько итоговых фотографий:

Цена и сроки ремонта квартиры под сдачу

Ремонт закончен, обзор написан. Теперь по стоимости ремонта и срокам работ.

Как ни стараться, но дешевле 20 тыс. руб. за квадратный метр ремонта по полу не получается. Поскольку ремонт был сделан в рамках строительной компании, в которой я работаю, расценки компании часто обычно выше, чем если обратиться к частным мастерам. Но есть другая сторона медали, заказчики хотят быть спокойны за свой ремонт и полностью довериться компании, так как есть прораб, отвечающий за объект, есть гарантия, есть контроль.

С другой стороны, обращаясь к частным мастерам, нет уверенности, что получишь качество и гарантию работ. Частные бригады тоже бывают разные. Две стороны медали, все зависит от конкретной бригады, что со стороны компании (да, в компаниях тоже попадаются некачественные ремонты), что со стороны частной бригады. Выбор за заказчиком.

В итоге, стоимость ремонта составила порядка 27 000 руб./м2, по срокам - почти 5 мес. Хотите сделать ремонт дешевле, без потери качества? Обращайтесь!

---

Меня зовут Фёдор Прорабофф — руковожу бригадой по ремонту квартир в Москве. Мы работаем с частными заказчиками и строительными компаниями. Сайт: remkontora.ru

Хотите ремонт с вниманием к деталям или нужна консультация? Оставьте Заявку на бесплатный замер и смету.

Связаться со мной:

Следите за новостями и примерами работ в нашей группе ВК.