Добавить в корзинуПозвонить
Найти в Дзене
Баня | От А до Я

Оптимальные размеры бани с точки зрения экономии материалов и комфорта в эксплуатации

Строительство любого здания начинают с определения функциональных особенностей и наиболее экономичного размера. Выбирая габарит будущей бани, учитываем функционал и количество человек, которые будут париться одновременно. Виды бань и функциональность Самыми распространенными у нас считаются русские парные и финские сауны, последнее время к ним добавился турецкий хамам. Кроме того, известны несколько видов банных процедур Японии, Индии, песчаные африканские. Если для устройства в одном помещении парной и сауны препятствий нет, существуют даже каменки, рассчитанные на два режима эксплуатации, то для хамама или другой экзотики потребуется отдельное помещение и специальный парогенератор. Кроме того, при банном комплексе часто устраивают прачечные, комнату отдыха, бильярдную, бассейн, что требует дополнительных площадей. Для определения функционала имеет значение система водоснабжения и водоотведения на участке строительства. При наличии водопровода и канализации, в бане будет логично устро
Оглавление

Строительство любого здания начинают с определения функциональных особенностей и наиболее экономичного размера. Выбирая габарит будущей бани, учитываем функционал и количество человек, которые будут париться одновременно.

Виды бань и функциональность

Самыми распространенными у нас считаются русские парные и финские сауны, последнее время к ним добавился турецкий хамам. Кроме того, известны несколько видов банных процедур Японии, Индии, песчаные африканские.

Если для устройства в одном помещении парной и сауны препятствий нет, существуют даже каменки, рассчитанные на два режима эксплуатации, то для хамама или другой экзотики потребуется отдельное помещение и специальный парогенератор.

-2

Кроме того, при банном комплексе часто устраивают прачечные, комнату отдыха, бильярдную, бассейн, что требует дополнительных площадей.

Для определения функционала имеет значение система водоснабжения и водоотведения на участке строительства. При наличии водопровода и канализации, в бане будет логично устроить санузел и отдельное моечное отделение. Если централизованных или автономных сетей нет, то вместо моечной монтируют обливное устройство.

Идеальная экономичная баня

Проектировать баню следует исходя из минимальных размеров помещений:

  1. Парная в свету будет иметь размер 2,0х2,0 м, с учетом толщины облицовки 2,5х2,5 м.
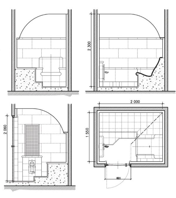
  2. Моечное отделение может представлять собой душевую кабину или отдельную комнату от 1,5х2,5 м.
  3. Комнату отдыха с небольшим столом, холодильником, мойкой, вешалкой, диваном или топчаном по ширине не стоит делать меньше 2,5 м, по длине 4,0 м, в торце при этом можно встроить тамбур входа, бойлерную или туалет.
  4. Отдельная бойлерная нужна, если подведен водопровод и установлен водонагреватель. Если выбрана печь-каменка с баком для подогрева воды, то бойлерная не требуется.
С учетом толщин перегородок и наружных стен, оптимальным размером постройки в осях будет 5,6х5,6 или 6,0х6,0 с небольшими вариациями.
-3

Резюме

Если старые русские деревенские бани обходились одним помещением и топились по черному, то современные требования к комфорту предполагают более просторных построек. Экономичный вариант бани имеет размер 3,0х3,0 м, но оптимальным можно назвать строение габаритом 6,0х6,0 м.