Найти в Дзене
INMYROOM

Креативные и смелые решения в двушке-сталинке 64 м²

Оглавление

Уникальный микс современности и реставрации

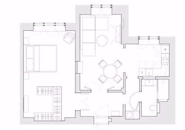
Эта двухкомнатная квартира расположена в сталинской высотке на Кудринской площади. В ней проживает молодой человек, занимающий пост руководителя бизнес-коммуникаций. На момент покупки в квартире были сохранены оригинальные двери, окна, лепнина и паркетные полы. Основной задачей дизайнеров Нади Торшиной и Ильи Плотникова стало бережное восстановление этих элементов, а также обновление интерьера с учетом современного стиля.

Румтур этой квартиры (40 минут)

В квартире была сделана перепланировка: кухню объединили с гостиной, организовали спальню с гардеробной, добавили постирочную и создали совмещенный санузел.

 📷
📷

О кухне

Кухня получилась стильной и монолитной — она выполнена на заказ из стали, что было мечтой хозяина квартиры Сергея. Поверхность, на которой должен быть фартук, покрыли специальной краской. На полу в кухне уложен керамогранит, а на нем размещена репродукция картины Дейнеки, на которой мальчик мечтает о полете. Это отсылка к истории дома, в котором ранее жили авиаторы. Картину сильно заблюрили, оставив лишь едва заметные детали.

Окно между кухней и санузлом также оставили, немного осовременив его желтым стеклом, которое создает красивые блики. Винтажная и отреставрированная люстра на фоне современной мебели в стиле хай-тек добавляет пространству особый шарм.

 📷
📷
 📷
📷
 📷
📷

О гостиной

В квартире были отреставрированы оригинальные окна, двери и паркет, сохранившие атмосферу прошлого. Пространство дополнено винтажными элементами, такими как стильная мебель и светильники.

Гостиная разделена на несколько зон. Здесь есть место для отдыха с просмотром ТВ и играми на приставке, где располагаются мягкий диван, телевизор и стеклянный столик. Рядом с кухней находится столовая зона с винтажным столом и стульями. На месте старой двери между комнатой и залом сделали яркий акцентный стеллаж, где расположены книги, виниловые пластинки и проигрыватель.

 📷
📷
 📷
📷
 📷
📷
 📷
📷

О спальне

Спальня является самой большой комнатой в квартире, ее площадь составляет 24 кв. м. Ранее на этом месте находился зал. В комнате размещена большая двуспальная кровать с подъемным механизмом и коробом для хранения. Особенностью спальни стала гардеробная, выполненная в форме куба из поликарбоната. Каркас для полок изготовлен из труб, на которые установлены стандартные полки из ЛДСП.

 📷
📷
 📷
📷
 📷
📷

О прихожей

В прихожей нашли место для отдельной постирочной, в которой располагаются стиральная и сушильная машины, выдвижная гладильная доска и хозблок. Большое зеркало справа от входа скрывает электрощиток. Для верхней одежды предусмотрены крючки.

 📷
📷

О санузле

Для отделки санузла использовали белую плитку мелкого формата. На потолке были сохранены лепные карнизы. Здесь удалось разместить просторную душевую с тропическим душем и нишами для хранения, инсталляцию и раковину с акцентной тумбой, фасады которой оформлены оригинальным рисунком.

 📷
📷

Хотите, чтобы ваш проект был опубликован на INMYROOM? Присылайте фотографии интерьера на wow@inmyroom.ru.

Сейчас читают:

Спасибо, что читаете нас! ❤️

Если материал был полезен — поставьте лайк и отправьте другу.

А ещё больше интерьерных идей, советы экспертов и классные румтуры в нашем Telegram-канале. Подписывайтесь, вам точно понравится!