Найти в Дзене

Перепланировка и интерьер в ЖК Headliner (Хедлайнер), девелопер КОРТРОС, Москва

Нестандартная перепланировка для квартиры успешной предпринимательницы с видом на всю Москву. А также камин, светящаяся кухня, сауна и впечатляющий натуральный камень в интерьере. Показываю реальный интерьер квартиры 108 м² и рассказываю о необычной перепланировке. Привет! Меня зовут Карен Карапетян, я — архитектор и интерьерный дизайнер. Мы в компании Alexander Tischler проектируем и реализуем интерьеры, а также проектируем и производим корпусную мебель. Мы реализовали сияющий интерьер квартиры для успешной предпринимательницы под ключ: отвечали и за дизайн-проект, и за ремонт. Я хочу рассказать, какую работу над планировкой мы сделали, и что получилось в результате. Мы объединили кухню и гостиную, получилась просторная комната с тремя окнами. Комната разделена на две зоны: кухонный гарнитур с обеденным и рабочим столом и диван с камином. Телевизор мы повесили на поворотном кронштейне, так его будет удобно смотреть и с дивана, и из-за стола. Камин мы оформили слэбами натурального оник
Оглавление

Нестандартная перепланировка для квартиры успешной предпринимательницы с видом на всю Москву. А также камин, светящаяся кухня, сауна и впечатляющий натуральный камень в интерьере. Показываю реальный интерьер квартиры 108 м² и рассказываю о необычной перепланировке.

Перепланировка и интерьер в ЖК Headliner (Хедлайнер), девелопер КОРТРОС, Москва
Перепланировка и интерьер в ЖК Headliner (Хедлайнер), девелопер КОРТРОС, Москва

Привет! Меня зовут Карен Карапетян, я — архитектор и интерьерный дизайнер. Мы в компании Alexander Tischler проектируем и реализуем интерьеры, а также проектируем и производим корпусную мебель.

Мы реализовали сияющий интерьер квартиры для успешной предпринимательницы под ключ: отвечали и за дизайн-проект, и за ремонт. Я хочу рассказать, какую работу над планировкой мы сделали, и что получилось в результате.

Пожелания заказчицы к планировке квартиры 108 м² в ЖК Хедлайнер, Москва

  • Сделать просторную кухню-гостиную
  • Разместить в кухне-гостиной камин
  • Сделать просторную спальню с ванной комнатой
  • Сделать гостевую ванную комнату

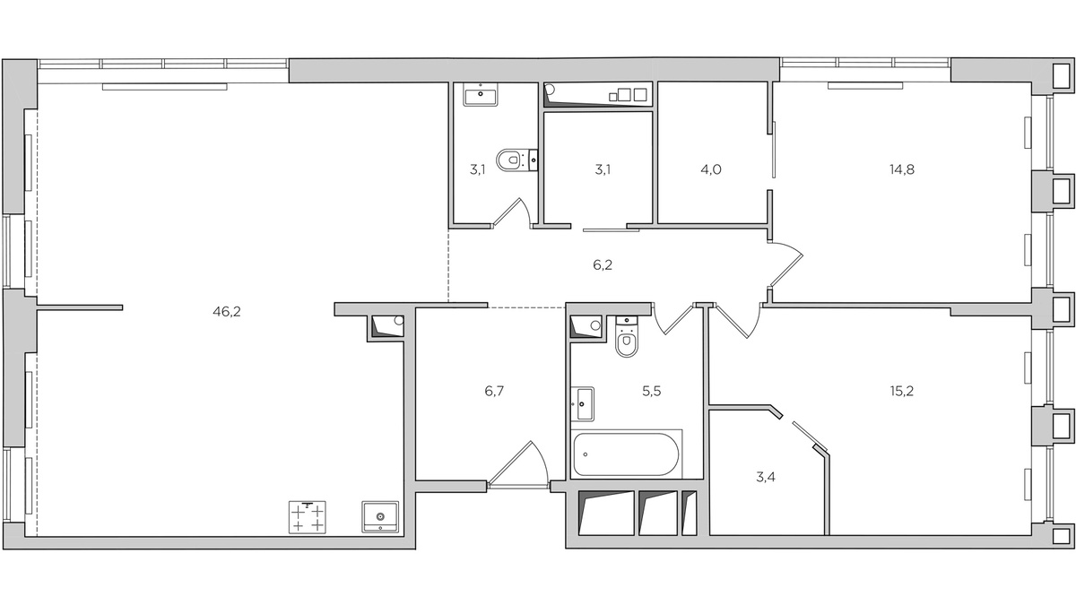
Минусы планировки квартиры в ЖК Headliner, Москва

Планировка трехкомнатной квартиры в ЖК Headliner, Москва
Планировка трехкомнатной квартиры в ЖК Headliner, Москва
  • Несущие пилоны в центре квартиры
  • Балка под потолком в гостиной, которая «обрезает» окна

Плюсы планировки квартиры 108 м²
в Хедлайнере

Планировка трехкомнатной квартиры с двумя санузлами в ЖК Headliner, Москва
Планировка трехкомнатной квартиры с двумя санузлами в ЖК Headliner, Москва
  • Две ванные комнаты
  • Просторная прихожая
  • Нет несущих стен между кухней и гостиной

Объединение кухни и гостиной в квартире
в ЖК Headliner

Мы объединили кухню и гостиную, получилась просторная комната с тремя окнами. Комната разделена на две зоны: кухонный гарнитур с обеденным и рабочим столом и диван с камином.

Телевизор мы повесили на поворотном кронштейне, так его будет удобно смотреть и с дивана, и из-за стола.

Дизайн кухни-гостиной с камином, Alexander Tischler
Дизайн кухни-гостиной с камином, Alexander Tischler

Камин мы оформили слэбами натурального оникса, его рисунок поддерживает языки пламени. Сам камин работает на воде: он ее нагревает и подсвечивает пар, который имитирует языки пламени. Так в комнате нет постороннего запаха, и воздух дополнительно увлажняется.

Заказчица писала о камине: Мои гости в восторге от камина. Это увлажнитель в виде камина, очень эффектно смотрится, работает нормально, мне нравится.

Прихожая и сауна в квартире с видом на Сити

Прихожую мы оставили без изменений, разместили в ней большой шкаф, пуф, тумбу и зеркало.

Мы объединили гардеробные и гостевую ванную комнату, чтобы сделать одно просторное помещение. Здесь мы установили джакузи, душевую и шкаф для стиральной и сушильной машины. Заняв часть гостиной, мы сделали сауну.

Если вам интересна тема перепланировок, читайте другую мою подробную статью о квартире в ЖК West Garden от Sminex со сложным коридором

Главная спальня в квартире для успешной предпринимательницы в Москве

Мы объединили две комнаты в правой части квартиры, чтобы сделать одну просторную спальню. К спальне мы «присоединили» ванную комнату, перенеся ее вход.

Подписывайтесь на мой телеграм-канал! В нем я показываю много примеров хорошего дизайна и ремонта.

Ванную от спальни отделяет прозрачная перегородка с бронзовой рамой. Так панно из оникса с подсветкой, которое мы сделали на всю стену в ванной, служит украшением и для спальни.

Вот что заказчица писала нам про эту ванную: Туалет за стеклом в моей комнате в моем приватном санузле, я одна живу и меня очень устраивает. Так же шикарно смотрится оникс в санузле, и я с удовольствием любуюсь им, лежа на кровати через стеклянную стену.

В этой комнате не было возможности поставить телевизор так, чтобы его было удобно смотреть и с кровати, и с дивана, поэтому телевизор сделали на специальном кронштейне, который управляется пультом. Телевизор опускается из люка на потолке, затем его можно повернуть к дивану.

Заказчица нам писала: ТВ — тоже отличное решение, редко пользуюсь поэтому очень хорошо что он убирается и пространство комнаты не занимает, в данной планировке комнаты считаю, что это самое лучшее решение.

Дизайн интерьера квартиры в жилом комплексе Headliner в Москве

Мы сделали дизайн-проект и реализовали этот интерьер. Мы подготовили смету и зафиксировали стоимость реализации еще на этапе проектирования, и в процессе ремонта сумма не изменилась. Корпусную мебель мы спроектировали и изготовили специально для этой квартиры.

Мы сами делаем дизайн-проекты всех своих интерьеров, а потом со своей проверенной командой делаем реализацию по ФИКСИРОВАННОЙ смете. Мы можем ее фиксировать и дать гарантию, что не будет никаких переплат в процессе ремонта, потому что очень тщательно относимся к подготовке технической документации и формированию сметы. Смету этого сияющего интерьера мы опубликовали на сайте

Если вы хотите доверить интерьер своей квартиры или дома команде профессионалов, оставляйте заявку на нашем сайте по ссылке. Мы свяжемся с вами и ответим на все вопросы.

Подписывайтесь на мой телеграм-канал!

Про другие наши реализованные интерьеры читайте в моих статьях