Найти в Дзене

Планировка квартиры с тремя спальнями, кухней-гостиной, гардеробной и хозблоком

Как мы сделали большую квартиру еще удобнее: убрали коридор, добавили душ и гардеробную. Фото после ремонта. Наши заказчики — взрослая пара, их дети и внуки любят приезжать в гости, поэтому нам нужно было сделать функциональное пространство, в котором было бы комфортно как хозяевам, так и гостям. Меня зовут Карен Карапетян, я — архитектор и интерьерный дизайнер. Мы в компании Alexander Tischler проектируем и реализуем интерьеры, а также проектируем и производим корпусную мебель. Планировка квартиры От застройщика нам досталась четырехкомнатная квартира площадью 170 м². Здесь были четыре спальни, изолированная кухня, два санузла и огромный коридор. Особенности планировки: Хозяева хотели интерьер, в котором им было бы комфортно жить вдвоем, а также принимать гостей. Мы решили объединить кухню и гостиную, отделить зону прихожей, тем самым увеличив гостевой санузел. Ванную комнату разделили на две части, организовав хозблок. Мы сделали законную перепланировку квартиры, и у нас получилась
Оглавление

Как мы сделали большую квартиру еще удобнее: убрали коридор, добавили душ и гардеробную. Фото после ремонта.

Наши заказчики — взрослая пара, их дети и внуки любят приезжать в гости, поэтому нам нужно было сделать функциональное пространство, в котором было бы комфортно как хозяевам, так и гостям.

Меня зовут Карен Карапетян, я — архитектор и интерьерный дизайнер. Мы в компании Alexander Tischler проектируем и реализуем интерьеры, а также проектируем и производим корпусную мебель.

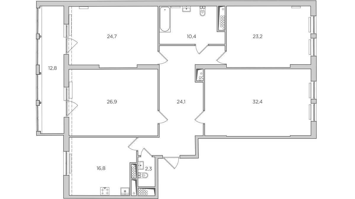
Планировка квартиры

От застройщика нам досталась четырехкомнатная квартира площадью 170 м². Здесь были четыре спальни, изолированная кухня, два санузла и огромный коридор.

Планировка четырехкомнатной квартиры от застройщика
Планировка четырехкомнатной квартиры от застройщика

Особенности планировки:

  • Несущие пилоны, формирующие комнаты
  • Проходная прихожая — маршруты в кухню проходят через прихожую, из-за этого грязь с придверного коврика будет разноситься по квартире.
  • Узкий гостевой санузел без душа
  • Большой тёмный коридор
  • Просторная ванная комната

Хозяева хотели интерьер, в котором им было бы комфортно жить вдвоем, а также принимать гостей. Мы решили объединить кухню и гостиную, отделить зону прихожей, тем самым увеличив гостевой санузел. Ванную комнату разделили на две части, организовав хозблок.

Мы сделали законную перепланировку квартиры, и у нас получилась просторная квартира с кухней-гостиной, двумя спальнями, гардеробной и кабинетом.

Перепланировка квартиры

Изначально кухня и гостиная были двумя отдельными помещениями, мы их объединили и получили просторное место, где комфортно собираться большой семьей.

Благодаря этому мы избавились от большого коридора площадью 24,1 м², он стал частью общего пространства.

Кухня-гостиная с аудиосистемой
Кухня-гостиная с аудиосистемой

Гостевой санузел был небольшой, всего 2,3 м². Мы увеличили его за счет коридора, который вел на кухню, благодаря этому мы смогли добавить душевую, и площадь гостевого санузла стала 3,6 м².

После присоединения коридора к кухне-гостиной и расширения гостевого санузла прихожая перестала быть проходной, теперь через нее не проходит маршрут на кухню.

В прачечной, которую мы сделали на части ванной и спальни, мы разместили стиральную, сушильную машины и сушильный шкаф. Для гладильной доски мы предусмотрели место под подвесным шкафом, у него снизу есть подсветка и штанга для развески одежды, слева от доски остается место для бельевых корзин. В пенале и модулях можно хранить пылесосы и бытовую химию.

Прачечная со стиральной и сушильной машинами
Прачечная со стиральной и сушильной машинами

Планировка кухни-гостиной

Застройщик выделил кухню площадью 16,8 м² и гостиную 26,9 м². Мы объединили эти помещения с коридором, и у нас получилась кухня-гостиная площадью 55,5 м².

В объединенной кухне-гостиной мы поставили кухонный остров, раскладывающийся обеденный стол и два глубоких дивана. Мы установили большой кухонный гарнитур со множеством техники и мест для хранения. Также вместо телевизора по просьбе хозяев мы разместили лазерный проектор с экраном.

Планировка спальни

В этом проекте мы сделали три спальни, одна из которых выполняет функцию кабинета. От застройщика нам достались комнаты удобной прямоугольной формы, это облегчило нам задачу при перепланировке.

Площадь гостевой спальни составляла 24,7 м², но мы её уменьшили, так как нужно было организовать отдельное помещение прачечной.

Сейчас площадь спальни 21,9 м², в ней есть всё для комфортного пребывания: большая кровать, две прикроватные тумбы с беспроводной зарядкой, косметический столик, телевизор, но самое главное — это большой шкаф для одежды со стеклянными фасадами.

Идея сделать гардеробную — то, с чего началось наше знакомство с заказчиками. Они увидели гардеробную в одном из наших прошлых проектов и уверенно сказали, что хотят такую же. Мы сделали перепланировку, выделили проходную гардеробную 10,2 м² и спальню площадью 22,9 м². Эта гардеробная служит буферной зоной между общественным и приватным пространствами.

Вся спальня хозяев выполнена в спокойных оттенках, но с активными текстурами. Так, стену за изголовьем мы оформили стеновыми панелями в шпоне ясеня. А для отделки стены за телевизором выбрали керамогранит с каменной текстурой.

В спальне мы расположили большую кровать и тумбы со встроенной беспроводной зарядкой. Также установили аудиосистему и колонки слева и справа от изголовья для объемного звука.

Третья комната имеет двойное назначение: кабинет для хозяев и спальня для внуков, когда они приезжают погостить. В этой спальне мы не делали перепланировку, и на площади 23,2 м² реализовали комфортное пространство для работы и отдыха. Для решения задачи со спальными местами мы выбрали диван-трансформер от итальянской фабрики Clei, он раскладывается в две отдельные кровати.

Здесь хозяйка занимается рукоделием, поэтому вдоль окна мы разместили длинный подвесной стол с ящиками для хранения. Слева от него мы установили шкаф с подсветкой для документов хозяев, а справа для одежды внуков на время их приезда.

Планировка ванной комнаты

Правее от гостевой спальни застройщик предполагал большую ванную комнату площадью 10 м², заказчикам такая просторная ванная была не нужна, и мы разделили ее на прачечную и санузел. После перепланировки площадь ванной уменьшилась до 7,3 м², и здесь свободно разместилась отдельно стоящая ванна, душевая и места для хранения.

Такой получилась планировка квартиры, в которой будет собираться большая семья. Несмотря на готовность в любой момент принять дорогих гостей, этот дом остается удобным для своих главных жильцов — наших заказчиков.

Как мы поработали с планировками двухкомнатных и трехкомнатных семейных квартир, я рассказал здесь.