Добавить в корзинуПозвонить
Найти в Дзене

Из трёшки в однушку: перепланировка и дизайн квартиры с камином и сауной

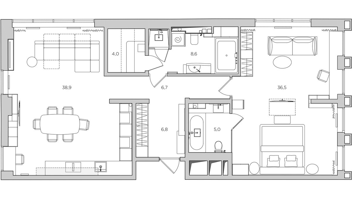
Интерьер этой нарядной квартиры мы спроектировали для успешной предпринимательницы. Проект напоминает тот, который мы уже реализовали для нее, но в этом интерьере мы добавили гораздо больше деталей и акцентов. При перепланировке мы объединили две комнаты в правой части квартиры в одну большую спальню с ванной. Привет! Меня зовут Карен Карапетян, я — архитектор и интерьерный дизайнер. Мы в компании Alexander Tischler проектируем и реализуем интерьеры, а также проектируем и производим корпусную мебель. Перепланировка квартиры 108 м² Мы сделали перепланировку трехкомнатной квартиры на одном из последних этажей ЖК Headliner с видом на Москву и получили просторную однушку площадью 108 м². В ней есть большая кухня-гостиная, мастер-спальня с эффектной ванной, и отдельная спа-зона с сауной. От застройщика нам достались кухня и гостиная, разделенные стеной. Мы ее убрали и соединили два помещения в просторную кухню-гостиную 38,9 м². Также в этом помещении над всеми окнами проходит несущая балка,
Оглавление

Интерьер этой нарядной квартиры мы спроектировали для успешной предпринимательницы. Проект напоминает тот, который мы уже реализовали для нее, но в этом интерьере мы добавили гораздо больше деталей и акцентов. При перепланировке мы объединили две комнаты в правой части квартиры в одну большую спальню с ванной.

Кухня-гостиная с камином
Кухня-гостиная с камином

Привет! Меня зовут Карен Карапетян, я — архитектор и интерьерный дизайнер. Мы в компании Alexander Tischler проектируем и реализуем интерьеры, а также проектируем и производим корпусную мебель.

Перепланировка квартиры 108 м²

Мы сделали перепланировку трехкомнатной квартиры на одном из последних этажей ЖК Headliner с видом на Москву и получили просторную однушку площадью 108 м². В ней есть большая кухня-гостиная, мастер-спальня с эффектной ванной, и отдельная спа-зона с сауной.

От застройщика нам достались кухня и гостиная, разделенные стеной. Мы ее убрали и соединили два помещения в просторную кухню-гостиную 38,9 м². Также в этом помещении над всеми окнами проходит несущая балка, которая их «обрезает», мы постарались нивелировать эффект низкого потолка, которая создает эта балка, с помощью мебели и камина.

В квартире были несколько гардеробных, которые мы убрали, потому что хозяйке не нужна была отдельная гардеробная комната. В спальне мы задекорировали несущий пилон, от которого было невозможно избавиться.

Глянцевая угловая кухня

Эта глянцевая кухня-гостиная не только красивая, но и продуманная до мелочей. Мы сделали нарядную витрину — фасады верхних модулей выполнены из матового бронзового стекла с подсветкой. Нам не хотелось испортить эти модули вытяжным зонтом, поэтому мы установили варочную панель со встроенной вытяжкой. Можно не переживать, если молоко убежит, решетку вытяжки легко достать и помыть в посудомойке.

Угловая белая кухня с витриной
Угловая белая кухня с витриной

Столешница на этой кухне не просто утилитарный предмет, а дополнительный акцент. Кварц полупрозрачный, под ним мы смонтировали матричную подсветку, и столешница теперь выглядит еще эффектнее, листайте фото!

Мы заранее подумали о чистоте столешницы, чтобы сохранить парадный вид комнаты. В углу кухонного гарнитура мы сделали нишу с розетками для чайника, тостера, кофемашины, чтобы столешница всегда оставалась чистой.

Ниша для бытовой техники на белой кухне
Ниша для бытовой техники на белой кухне

В любой угловой кухне есть проблема с потерей пространства в углу. Мы решили эту проблему с помощью угловой выкатной системы хранения.

В пеналах мы встроили холодильник, морозильник, микроволновку, духовку с закатывающейся дверцей и винный шкаф, а также оставили место для хранения.

Глянцевый кухонный гарнитур
Глянцевый кухонный гарнитур

Мы хотели сделать идеальную глянцевую кухню без какой-либо шагрени. Мы наклеили стекло на фасады из МДФ, и таким образом получилась идеальная глянцевая поверхность.

Также в зоне кухни мы расположили рабочий стол. За этим столом можно приятно работать, наслаждаясь видами на Москву.

Рабочее место у окна в кухней-гостиной
Рабочее место у окна в кухней-гостиной

Гостиная с электрокамином

Центральным элементом все кухни-гостиной выступает стена из слэба оникса с подсветкой и камином. Хозяйка очень сильно хотела камин, а я был против биокамина. Потому что биокамин испускает неприятный запах. Но мы пришли к идеальному решению и установили электрический камин. Он работает на воде, и в комнате нет постороннего запаха, а воздух дополнительно увлажняется. Вертикальные линии слэба натурального оникса подчеркивают языки пламени камина.

В этой гостиной была одна проблема — очень маленькие окна, их «обрезает» балка, которая идет вдоль всего потолка. Чтобы визуально избавиться от давящего эффекта, мы подчеркнули вертикальность окон. Обрамили их шкафом до потолка и слэбом оникса.

В этом интерьере мы нестандартно расположили телевизоры. В гостиной мы расположили его на тонком поворотно-наклонном кронштейне, его можно смотреть из-за стола или направить в сторону дивана.

Шкаф с телевизором в кухне-гостиной
Шкаф с телевизором в кухне-гостиной

Для зоны гостиной мы выбрали диван — Lamborghini среди других диванов. Он абсолютный трансформер, у него регулируются подлокотники, выпрямляется спинка, а также благодаря всего одному движению появляется дополнительная оттоманка.

Для комфортного климата в этой квартире мы установили систему приточной вентиляции и кондиционирования.

Дизайн и ремонт белой кухни-гостиной
Дизайн и ремонт белой кухни-гостиной

Мастер-спальня с ванной

Мы объединили две комнаты с небольшими гардеробными в одну большую мастер-спальню площадью 36,5 м². Также внутри этой спальни сделали ванную комнату, которую отделили стеклянной перегородкой.

При планировании спальни мы столкнулись с единственной сложностью — несущим пилоном, который выступает из стены между окон. Его нельзя было снести, поэтому мы приняли решение его задекорировать. С одной стороны мы сделали стеллаж для декора с зеркальной стенкой, а с другой стороны находится шкаф с неглубокими полками для косметики хозяйки.

В спальне не было возможности поставить телевизор так, чтобы его было удобно смотреть и с кровати, и с дивана, поэтому телевизор мы сделали за потолком на специальном лифте, который управляется пультом. Телевизор опускается из люка на потолке, затем его можно повернуть к дивану. Это удачное решение, благодаря такой конструкции мы не урезали площадь спальни и сделали просмотр телевизора комфортным из любой точки комнаты, листайте фото!

Рядом с диваном мы поставили большой шкаф для одежды, отделали его зеркальными и белыми глянцевыми фасадами, чтобы он растворился в пространстве.

Шкаф для одежды с зеркальными фасадами в спальне
Шкаф для одежды с зеркальными фасадами в спальне

Самая главная деталь спальни — это стеклянная перегородка. Это решение позволяет естественному свету попадать в ванную. А из спальни можно наслаждаться красивой текстурой оникса с подсветкой.

Мы использовали матричную подсветку. Она занимает немного места, дает равномерный свет. Все блоки питания для подсветки мы расположили в прихожей, и если что-то перегорит, то можно легко заменить блок питания. Срок службы диодов в матричной подсветке более 15 лет, поэтому этот вариант подсветки самый оптимальный.

Ванна, обрамленная керамогранитом
Ванна, обрамленная керамогранитом

Мебель для ванной комнаты
Мебель для ванной комнаты

Композицию ванной комнаты портила канализационная труба. Мы искали различные варианты, чтобы ее скрыть. В итоге мы сделали глянцевый шкаф для хранения, в котором скрыта труба. Также мы сделали столешницу с интегрированной раковиной и с рельефными фасадами. А напротив мы поставили унитаз с инсталляцией.

Зеркальная прихожая

Планировка прихожей сразу была хорошей. В ней застройщик предусмотрел место для шкафа, тумбы и пуфа. Мы не меняли концепцию застройщика, поставили шкаф с белыми глянцевыми и зеркальными фасадами. А напротив мы повесили круглое зеркало, тумбу для аксессуаров и поставили пуф

Ванная комната с джакузи и сауной

Прямо из коридора мы попадаем в гостевой санузел. Мы объединили гардеробную от застройщика с санузлом и получили пространство спа-комплекса.

Ванная комната с гидромассажной ванной
Ванная комната с гидромассажной ванной

В спа-зоне мы установили гидромассажную ванну. Для нее было необходимо оставить доступ к техническому узлу, а это значит, что ванну нельзя было загнать под плитку. Мы сделали небольшой плинтус, который закрепили на герметик. Ванную можно будет легко обслужить без повреждения ремонта, когда потребуется.

В этом санузле также находится пенал со стиральной и сушильной машиной, в корпусе самого пенала мы предусмотрели вытяжку. Для это ванной мы нашли необычную раковину-столешницу Jacob Delafon. Над ней мы установили зеркало со встроенной подсветкой по периметру.

Душевой поддон в строительном исполнении
Душевой поддон в строительном исполнении

Также в этой спа-зоне мы сделали небольшую сауну с электрической печью.

Дизайн и ремонт белой ванной комнаты
Дизайн и ремонт белой ванной комнаты

Мы сделали дизайн-проект и реализовали этот интерьер. Мы подготовили смету и зафиксировали стоимость реализации еще на этапе проектирования, и в процессе ремонта сумма не изменилась. Корпусную мебель мы спроектировали и изготовили специально для этой квартиры.

Если вы хотите современный интерьер, и не париться о деталях и реализации, то заполняйте бриф, и мы сделаем за вас идеальный ремонт.

Со сметой этого интерьера вы можете ознакомится на нашем сайте, мы подробно расписываем бренды и суммы

Сияющая квартира 108 м² с камином и сауной в Москве

А еще я снял обзор этого интерьера, смотрите, там красиво!