Найти в Дзене
Realt.by

Здесь жил декан мединститута. Посмотрите, какую квартиру с камином продают на Маркса

В трехэтажном доме, что располагается недалеко от Национального художественного музея, продается интересная квартира. Трешка долгое время принадлежала нескольким поколениям одной семьи. Жилье нуждается в ремонте, но здесь сохранились высокие потолки, деревянные полы и даже камин. Рассказываем о квартире подробнее.

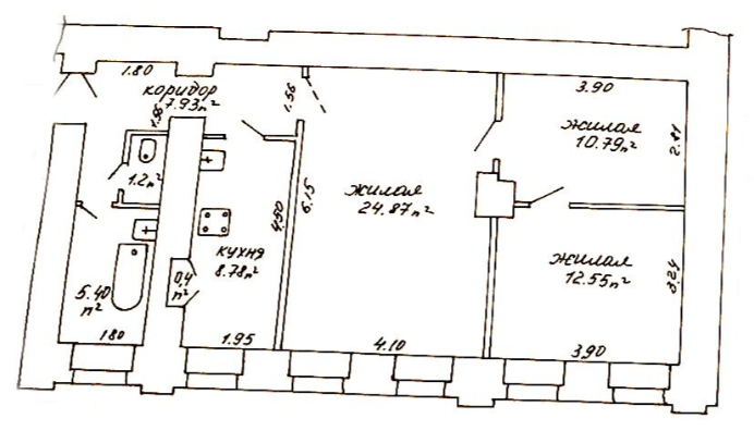
Дом на Карла Маркса, 20 был построен в три этажа в 1948 году. Трешка, что выставлена на продажу, находится на первом уровне и занимает 71,92 квадрата. Площадь кухни — 8,78 м².

-2

Эту квартиру в прошлом веке получил Савостенко Григорий Васильевич, который в 50-х был заместителем декана, а потом и деканом Минского государственного медицинского института.

Григорий Васильевич закончил медицинский факультет БГУ, а потом стал старшим ассистентом на кафедре патологической физиологии. Во время Великой Отечественной войны служил на различных врачебных должностях. Награжден 3 орденами и 4 медалями. Людмила Дмитриевна - супруга Григория тоже была медицинским работником — хирургом.

-3

Квартирой сейчас владеет внучка Григория и Людмилы.

Трешка с потолками в 3,5 метра нуждается в ремонте и практически освобождена от мебели.

Одна из комнат — гостиная — является проходной. Тут лежат деревянные полы, а у стены стоит действующий камин.

Стены других комнат греет печь.

В совмещенном санузле есть окно.

-6

Дом стоит в самом центре города. Вокруг много кафе, ресторанов, музеев. Отсюда можно быстро добраться до любой точки города.

Стоимость квартиры — 245 тысяч долларов. Цена квадратного метра — 3 407 долларов.