Найти в Дзене
Мамские бубни

Почему в вашем деревянном доме каркасные стены?

Наконец-то есть свежие новости со стройки нашего дома. На вопросы, почему так долго строим, наверное отвечать смысла нет? И так понятно, что всё упирается в деньги. Ведь мы хотим качественный дом, который простоит без ремонта и доделок долгие годы, а качественные работы и материалы стоят дорого. В общем, этим летом нам монтируют межкомнатные перегородки. Наш дом построен из профилированного бруса камерной сушки 140 на 190 мм. Все внутренние стены, кроме несущей по середине, будут каркасными. Как минимум, потому что это эстетично и удобно. В брусовые стены не спрятать все коммуникации, либо надо устанавливать дополнительный каркас на скользящую систему, а это, считай, дополнительная стена и дополнительные затраты. Внутрь же каркасных стен можно убрать все провода , трубы и что там ещё нужно, а потом зашить гипсокартоном. А сверху использовать любой финишный материал, который нравится — обои, плитку или имитацию бруса. Мы в санузле планируем частичную отделку плиткой — пол и мокрые зоны

Наконец-то есть свежие новости со стройки нашего дома. На вопросы, почему так долго строим, наверное отвечать смысла нет? И так понятно, что всё упирается в деньги. Ведь мы хотим качественный дом, который простоит без ремонта и доделок долгие годы, а качественные работы и материалы стоят дорого.

Внешнюю отделку ещё не делали. Надо шлифовать и красить брус, делать проводку под подсветку, подшивать крышу имитацией бруса и закрывать цоколь.
Внешнюю отделку ещё не делали. Надо шлифовать и красить брус, делать проводку под подсветку, подшивать крышу имитацией бруса и закрывать цоколь.

В общем, этим летом нам монтируют межкомнатные перегородки.

Наш дом построен из профилированного бруса камерной сушки 140 на 190 мм. Все внутренние стены, кроме несущей по середине, будут каркасными.

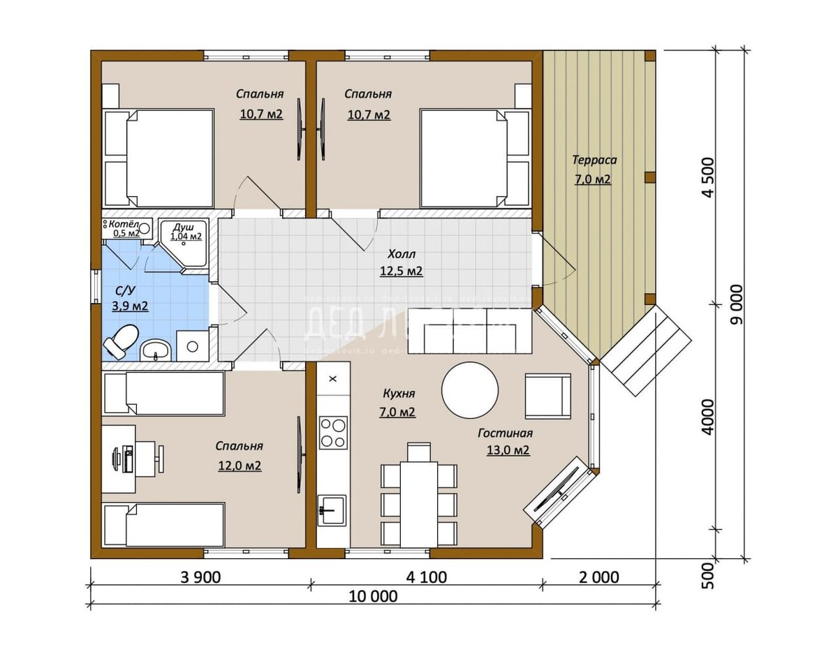
Вот проект нашего дома с сайта застройщика, если вам интересно.
Вот проект нашего дома с сайта застройщика, если вам интересно.

Почему каркасные?

Как минимум, потому что это эстетично и удобно. В брусовые стены не спрятать все коммуникации, либо надо устанавливать дополнительный каркас на скользящую систему, а это, считай, дополнительная стена и дополнительные затраты.

Внутрь же каркасных стен можно убрать все провода , трубы и что там ещё нужно, а потом зашить гипсокартоном. А сверху использовать любой финишный материал, который нравится — обои, плитку или имитацию бруса.

Мы в санузле планируем частичную отделку плиткой — пол и мокрые зоны, и частично — имитацию бруса. В комнатах на стенах будет имитация бруса.

Наши мастера делают всё по технологии. В каркасных стенах есть шумо- и пароизоляция, обшиваются стены влагостойким гипсокартоном, есть необходимые усадочные зазоры, чтобы при усадке брусовых стен ничего не повредилось. А имитация бруса перед монтажом шлифуется и красится.

Фотка как будто со стоков, но это реальные руки наших прекрасных мастеров.
Фотка как будто со стоков, но это реальные руки наших прекрасных мастеров.

Ставьте лайки, если материалы про дом вам интересны. Скоро покажу финальный результат, ребята уже скоро закончат работу.