Найти в Дзене

Сколько стоит фундамент на винтовых сваях

На примере одноэтажного каркасного дома площадью 110 кв.м. с террасой площадью 20 кв.м. и крыльцом В этой статье мы сделаем примерный расчет стоимости свайно-винтового фундамента для одноэтажного каркасного деревянного дома с террасой и крыльцом. Это дом «Тегмен» от компании «Комплексное загородное строительство», подробно о проекте мы рассказывали в предыдущей статье. А сегодня приведем план свайно-винтового фундамента для такого дома, стоимость свай и их монтажа. Расчет будет примерным, потому что не зная параметров участка, нельзя узнать точную длину свай, предугадать, потребуется ли тяжелая техника для их завинчивания, посчитать стоимость доставки. В статье мы сделаем расчет для относительно ровного участка с хорошим грунтом в Московской области. То есть сделаем допущение, что нам подойдут сваи длиной 2,5 м. Чтобы подобрать верное количество и расположение свай, проектировщик изучает план первого этажа дома. А диаметр свай он выбирает исходя из будущей нагрузки на фундамент — для э
Оглавление

На примере одноэтажного каркасного дома площадью 110 кв.м. с террасой площадью 20 кв.м. и крыльцом

В этой статье мы сделаем примерный расчет стоимости свайно-винтового фундамента для одноэтажного каркасного деревянного дома с террасой и крыльцом. Это дом «Тегмен» от компании «Комплексное загородное строительство», подробно о проекте мы рассказывали в предыдущей статье. А сегодня приведем план свайно-винтового фундамента для такого дома, стоимость свай и их монтажа. Расчет будет примерным, потому что не зная параметров участка, нельзя узнать точную длину свай, предугадать, потребуется ли тяжелая техника для их завинчивания, посчитать стоимость доставки. В статье мы сделаем расчет для относительно ровного участка с хорошим грунтом в Московской области. То есть сделаем допущение, что нам подойдут сваи длиной 2,5 м.

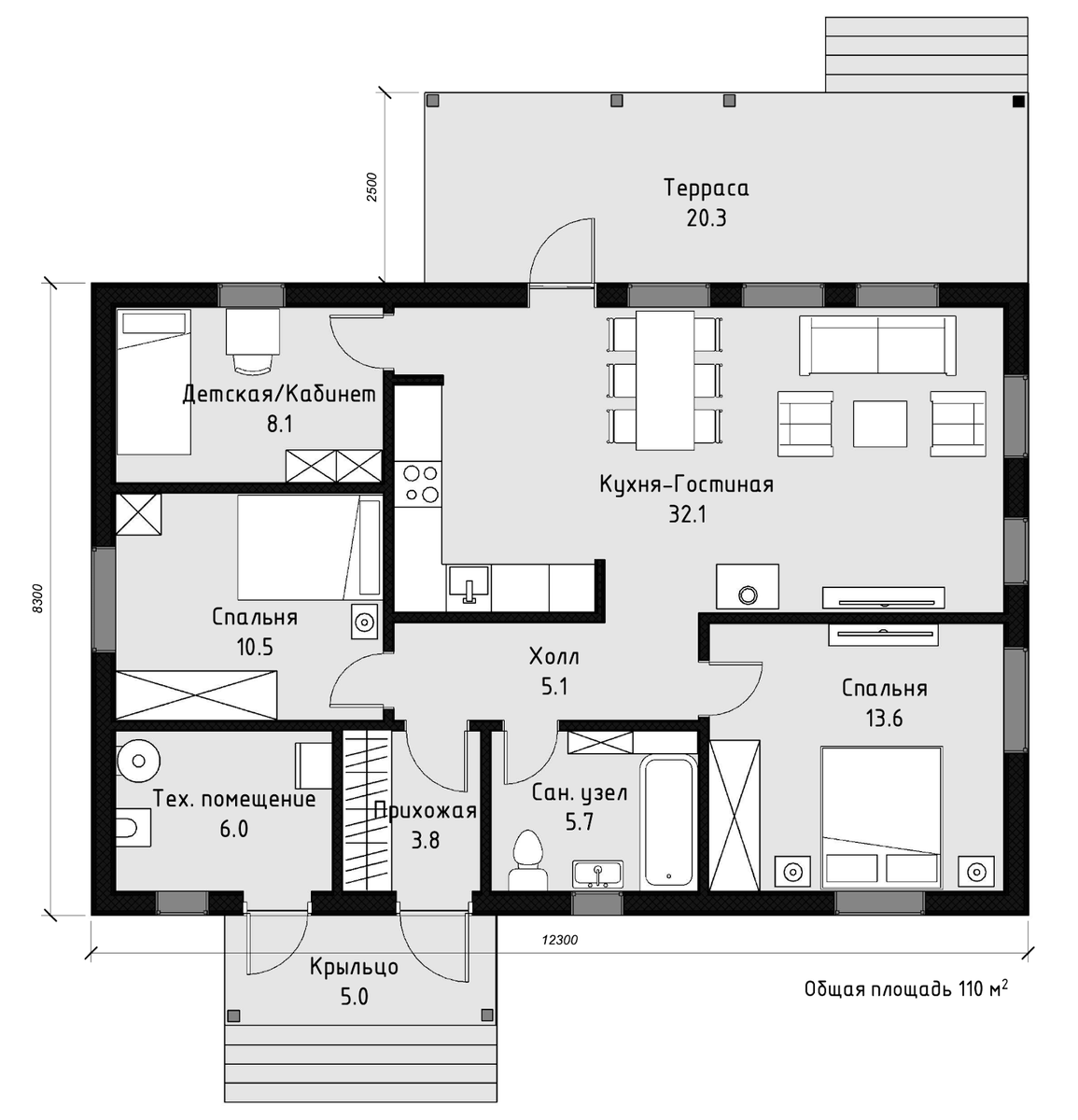
Планировка дома «Тегмен»
Планировка дома «Тегмен»

Чтобы подобрать верное количество и расположение свай, проектировщик изучает план первого этажа дома. А диаметр свай он выбирает исходя из будущей нагрузки на фундамент — для этого он учитывает материал стен, этажность, параметры кровли, полезную нагрузку (мебель, люди), снеговую и ветровую нагрузку и другие параметры.

План свайного поля
План свайного поля

Для этого проекта потребуется 44 винтовые сваи диаметром 108 мм. Такой диаметр подходит для многих каркасных деревянных домов высотой 1 или 2 этажа. Сваи диаметром 108 мм для ответственных строений мы рекомендуем выбирать с толщиной стенки 4 мм, не меньше.

3Д-визуализация фундамента с обвязкой брусом
3Д-визуализация фундамента с обвязкой брусом

Проектом предусмотрена обвязка свай брусом. Это значит, что верхушки свай нужно соединить между собой деревянным брусом согласно схеме. На рисунке выше мы привели визуализацию того, как будет выглядеть готовый фундамент с обвязкой.

Чтобы уложить брус на сваи, на их стволы необходимо сначала смонтировать оголовки. Это специальные «шапочки» с пластинами. Их надевают на сваю и точечно приваривают. Затем строители кладут на оголовки гидроизоляционный материал и только потом — брус обвязки.

На сваи смонтированы оголовки (фото готового фундамента для другого проекта)
На сваи смонтированы оголовки (фото готового фундамента для другого проекта)

В сегодняшний расчет мы включаем стоимость оголовков и их монтажа, но не включаем стоимость бруса и обвязки деревом. Обычно обвязку деревом выполняет подрядчик по строительству, а вот обвязку металлом, если она предусмотрена проектом, выполняет подрядчик по возведению фундамента.

Для дома по такому проекту тоже может потребоваться обвязка металлом, в случае, если дом строится на участке с большим перепадом высоты или насыпном грунте. Но сегодня мы считаем примерную стоимость фундамента для относительно ровного участка, поэтому обвязка не будет включена в расчет.

Приблизительный расчет стоимости фундамента из 44 винтовых свай КЗС диаметром 108 мм и длиной 2,5 м (толщина стенки — 4 мм). Расчет не включает доставку, применение спецтехники и монтаж обвязки
Приблизительный расчет стоимости фундамента из 44 винтовых свай КЗС диаметром 108 мм и длиной 2,5 м (толщина стенки — 4 мм). Расчет не включает доставку, применение спецтехники и монтаж обвязки

Приблизительная стоимость фундамента для такого проекта — от 243 тысяч рублей.

Эта сумма включает:

  • 44 винтовых свай диаметром 108 мм и длиной 2,5 м с толщиной стенки 4 мм;
  • работу по разметке свайного поля и выкопке приямков;
  • монтаж свай электрической или гидравлической машинкой переносного типа;
  • подрезку и заполнение тела свай цементно-песчаной смесью;
  • оголовки и их монтаж;

но не включает:

  • доставку свай и бригады (стоимость зависит от удаленности от МКАД);
  • доставку и использование более тяжелой техники (сваекрут, ямобур), которая может потребоваться из-за особенностей грунта и рельефа;
  • обвязку и ее монтаж;
  • дополнительные услуги: уборку снега, расчистку от поросли, демонтаж помех (корни, камни, бетон, асфальт), аренду генератора, если на участке нет электричества.

Этот приблизительный расчет стоимости фундамента для одноэтажного каркасного дома с террасой и крыльцом мы выполнили на сайте «Королёвского завода свай». Цены в расчете действительны на момент написания статьи. Актуальные цены и акции на винтовые и забивные сваи ищите на сайте завода — kzs.ru.

Посмотреть другие проекты компании «Комплексное загородное строительство» можно на сайте kzs-stroy.ru.