Найти в Дзене
INMYROOM

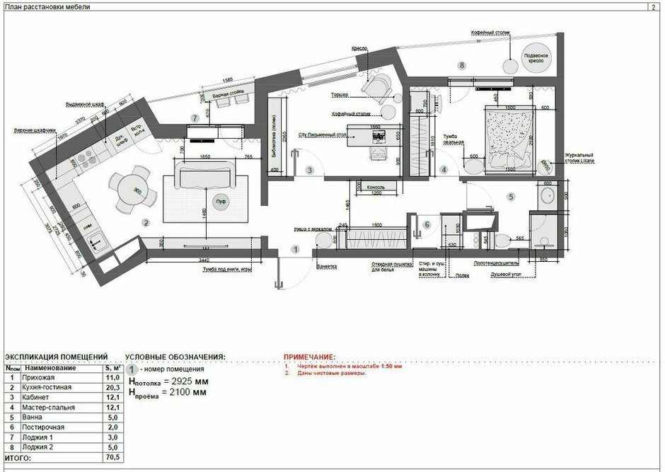
Комфортная евротрешка 70 м² в стиле неоклассика

Оглавление

Вкратце

Заказчица — успешная девушка, приобрела квартиру площадью 70 кв. м в новом доме и пригласила дизайнера Олесю Парамонову, чтобы создать интерьер в стиле неоклассика. В отделке использовали красивую лепнину, двери из шпона и акцентные оттенки.

 📷
📷

Подробности

На кухне нужно было выделить зону гостиной, отдельный кабинет и использовать небольшие балконы как зоны отдыха. На балконе на кухне, несмотря на небольшую площадь, сделали барную стойку, чтобы летними вечерами любоваться закатами. На балконе в спальне разместили подвесное кресло как еще одну зону для чтения, помимо кресла в кабинете.

 📷
📷

 📷
📷

Кухня изготавливалась на заказ в столярной мастерской, гарнитур угловой, вся техника встроенная. В отделке стен использовали полиуретановые молдинги и карнизы, стены окрашены краской. Кухонная столешница, фартук и полка выполнены из натурального камня — кварцита.

 📷
📷

 📷
📷

 📷
📷

 📷
📷

 📷
📷

Во время ремонта удалось сэкономить на подоконниках: изначально они задумывались из камня, но по итогу их сделали из керамогранита, что позволило сохранить часть бюджета.

 📷
📷

 📷
📷

 📷
📷

«Межкомнатные двери сделали скрытого монтажа из шпона. Чтобы визуально подчеркнуть высоту потолков, их продлили фрамугами из того же материала. Сделать дверные проемы в потолок не предоставлялось возможным, так как это несущие перегородки», — рассказывает дизайнер.

 📷
📷

 📷
📷

В отделке стен в спальне также использовали полиуретановые карнизы, окрашенные в цвет стен. Потолок выделили красивым голубым цветом. Стена за кроватью имеет асимметричную отделку с помощью гипсовых панелей и зеркала со стыком между собой через золотой профиль. Пол — паркетная доска.

 📷
📷

«Вся корпусная мебель изготавливалась на заказ в столярной мастерской. В прихожей вместительный шкаф для верхней одежды с интересным решением зеркала в его торцевой части, в спальне — большой шкаф под хранение вещей, большая библиотека в кабинете, так как заказчица очень любит читать, в зоне гостиной предусмотрели длинный стеллаж под ТВ для хранения настольных игр», — рассказывает дизайнер.

Больше фото тут:

Комфортная евротрешка 70 м² в стиле неоклассика