Найти в Дзене

Идеальное техническое задание для визуализатора

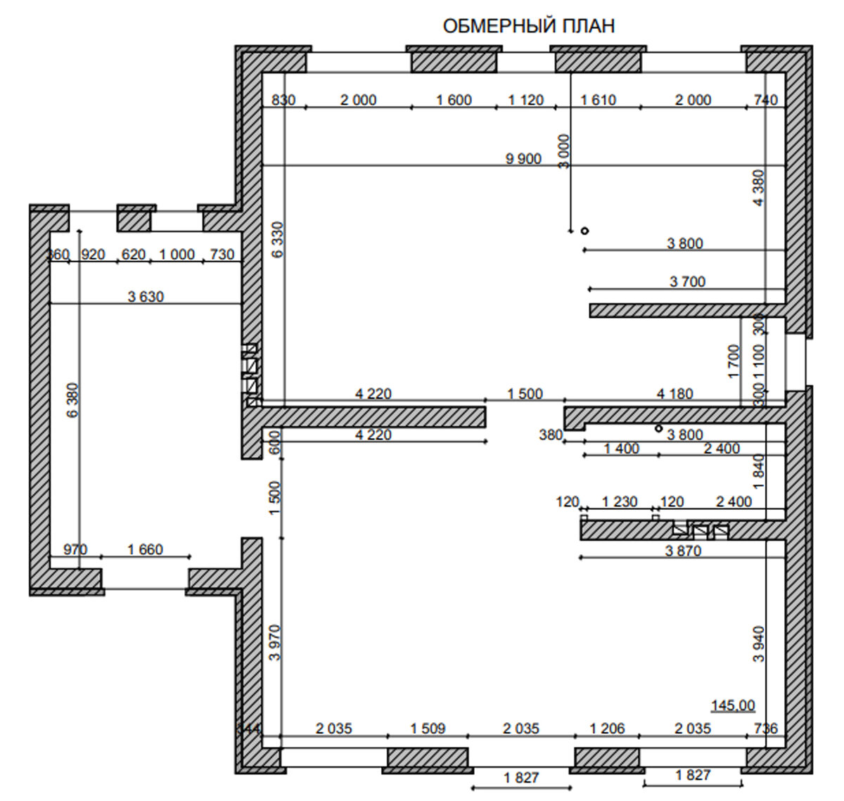
Как выглядит идеальное ТЗ для визуализатора и существует ли оно? Ответ да, существует. Однажды мне прислали одно задание, и оно запало мне в душу. Всё расписано до мелочей. С таким приятно было работать. Это просто кайф, когда дизайнер знает чего хочет его клиент и грамотно всё излагает в тех задании. Во время создания визуализации не возникало никаких лишних вопросов и проблем. Работа шла быстро и уверенно. К сожалению, автор этого плана не разрешил мне его выкладывать в сеть, поэтому пользуемся тем, что есть в интернете в свободном доступе. Если узнали свою работу, напишите мне, я укажу Вас как автора. Из чего состоит идеальное ТЗ? 1. Обмерный план помещения с указанием высоты потолка, дверных проёмов, окон и необходимых конструкций (ниши, инсталляции, балки и тд.) Единицы измерения, желательно, миллиметры. 2. План расстановки мебели, бытовых приборов, элементов декора. 3. План осветительного оборудования 4. План потолков с указание материалов. 5. План напольного покрытия с указ

Как выглядит идеальное ТЗ для визуализатора и существует ли оно?

Ответ да, существует.

Однажды мне прислали одно задание, и оно запало мне в душу. Всё расписано до мелочей. С таким приятно было работать. Это просто кайф, когда дизайнер знает чего хочет его клиент и грамотно всё излагает в тех задании. Во время создания визуализации не возникало никаких лишних вопросов и проблем. Работа шла быстро и уверенно.

К сожалению, автор этого плана не разрешил мне его выкладывать в сеть, поэтому пользуемся тем, что есть в интернете в свободном доступе. Если узнали свою работу, напишите мне, я укажу Вас как автора.

Из чего состоит идеальное ТЗ?

1. Обмерный план помещения с указанием высоты потолка, дверных проёмов, окон и необходимых конструкций (ниши, инсталляции, балки и тд.) Единицы измерения, желательно, миллиметры.

2. План расстановки мебели, бытовых приборов, элементов декора.

-2

3. План осветительного оборудования

-3

4. План потолков с указание материалов.

-4

5. План напольного покрытия с указанием фирмы производителя, артикула или названия покрытия.

-5

6. Развертки стен по помещениям с указанием покрытия стен

-6

7. Референсы мебели и техники.

-7

P.S. Ещё раз хочу напомнить, что я не дизайнер, я 3D визуализатор. Я недостаточно хорошо знаю рынок, не знаю какой у Вас бюджет и пожелания Ваших клиентов.

Спасибо за внимание. С уважением, Анастасия.