Найти в Дзене
Рудольф Кавчик

Строю дом. Нужен совет!

Оглавление

Друзья, задумал построить дом.
Нужны ваши советы. Поможете?

Материал и фундамент

Дом будет из клеёного бруса, 210 мм, сосна. Склейка экологически чистым клеем. Материал закуплен. Да, не дешёвый материал, но природный и экологически чистый.

Фундамент - плита под всем домом.

Фасад дома. Южная сторона. Проект шале.
Фасад дома. Южная сторона. Проект шале.

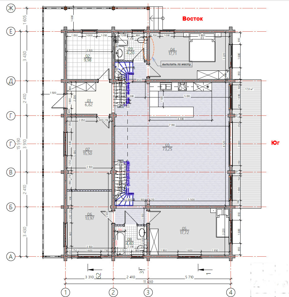
Планировка моего будущего дома шале. Общая площадь 163 м2. Вход с северной стороны. Окна на юг. Спальни на восток и на запад.
Планировка моего будущего дома шале. Общая площадь 163 м2. Вход с северной стороны. Окна на юг. Спальни на восток и на запад.

Вопрос по отоплению дома

Какое отопление применить лучше всего?

Размер участок позволяет сделать подземный рекуператор, заглубив трубу диаметром 200 мм на глубину 2 метра. Отопление нынче не дешёвое, поэтому и задумался над подземном тепле зимой и прохладой детом, данной самой природой. Ведь, проще нагревать подземный воздух с +3, чем уличный с минус -20 зимой. Траншею могу сделать и 30 метров длинной.

Кто лично сталкивался с такой системой?
Поделитесь опытом. Спасибо!

В инете пишут много про систему подземного отопления и везде разные мнения, советы и расчеты. Кто-то говорит через 3-4 года начинает запах идти неприятный, грибки у кого-то завелись и т.д.

Подземное тепло. А будет ли работать? Стоит ли заморачиваться? Фото из интернета, автор не известен.
Подземное тепло. А будет ли работать? Стоит ли заморачиваться? Фото из интернета, автор не известен.

Спасибо, за помощь!
Рудольф Кавчик, г.Иркутск
#рудольф кавчик