Найти в Дзене

Двушки бывают разные: как подобрать идеальный вариант?

Оглавление

Двухкомнатные квартиры сегодня пользуются высоким спросом как среди семейных пар с детьми, так и среди тех, кто проживает со старшим поколением или вовсе предпочитает одиночество. Возможно, причина их популярности заключается в том, что сейчас на рынке представлено большое разнообразие планировочных решений, которые по степени комфорта не уступают другим форматам жилья. Сегодня «двушка» — это не малогабаритные 30 кв. м с крошечной кухней, это нечто большее.

В качестве примера можно привести квартиры в новом жилом районе ALIA от ASTERUS. В монолитных корпусах, помимо остальных форматов жилья, предлагаются просторные двухкомнатные квартиры с комфортными планировками и трехметровыми потолками. Рассмотрим самые интересные варианты.

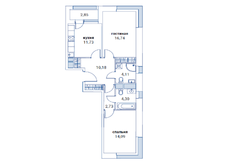
Разнесенные спальни, удобная кухня и два санузла

В «распашонке» площадью 65.31 кв. м две разнесенные комнаты, одна из которых может использоваться как гостиная или рабочий кабинет. Угловое панорамное остекление в помещениях обеспечивает много света в дневное время суток, а потому они подойдут и в качестве мастерской для художника или фотографа. Площадь комнат — 16.74 и 14.09 кв. м.

-2

Правильная форма кухни площадью 11.73 кв. м позволяет разместить здесь всю необходимую мебель любой конфигурации. Здесь же есть остекленная лоджия площадью 2.85 кв. м.

Двумя санузлами в квартире сегодня никого не удивишь, но ASTERUS пошли дальше и оборудовали мастер-спальню с отдельным санузлом, что обеспечивает проживающим максимальную приватность. В санузлах есть окна, наличие которых несет не только практическую, но и дизайнерскую функцию.

В прихожей площадью 10.18 кв. м спроектированы две ниши под гардеробные или кладовые, где можно хранить спортинвентарь или детские игрушки.

Двушка евроформата: комфорт, приватность и функциональность

В этой квартире площадью 67.95 кв. м тоже две разнесенные спальни, в одной из них есть санузел с ванной. Второй туалет находится в прихожей. В комнате площадью 12.84 кв. м предусмотрена лоджия с видом во двор. Такое помещение можно использовать в качестве детской, родительской спальни или рабочего кабинета.

-3

Отдельного внимания заслуживает просторная (16.39 кв. м) кухня-гостиная, пространство которой можно визуально разделить на зоны для готовки и отдыха. Прихожая здесь несколько меньше, чем в предыдущем варианте (8.83 кв. м), но она также оснащена гардеробными нишами.

Максимальная инсоляция в двушке площадью 69.66 квадратов

В двухкомнатной квартире площадью 69.66 кв. м две изолированные спальни, расположенные по соседству друг с другом, два санузла, кухня-гостиная (14.94 кв. м) с лоджией и отдельная постирочная.

-4

Здесь предусмотрена большая площадь остекления: в санузлах есть окна, в кухне-гостиной и в спальне площадью 12.19 кв. м панорамное остекление лоджий. Но главная изюминка — это угловое остекление второй комнаты (14.49 кв. м) с видом на две стороны света. В этой же спальне есть гардеробная ниша, как и в прихожей с выделенной «грязной» зоной.

Такая «двушка» одинаково подойдет как молодой паре без детей, так и семье с ребенком. В последнем случае угловую спальню можно превратить в уютную детскую с функциональным разделением на рабочее место у окна, спальную зону и пространство для игр. Удобство проживания здесь обеспечено и взрослым поколениям, особенно если в семье есть пожилые люди, которые нуждаются в уходе.

Две полноценные ванные комнаты, лоджия и гардеробная

Если в предыдущих планировках один из санузлов предназначается под душевую кабину, то здесь есть две полноценные ванные комнаты. Причем один санузел традиционно расположен в одной из спален, что обеспечивает дополнительное удобство случае приема гостей на долгое время.

-5

Как и в предыдущем варианте планировки, здесь спроектированы две изолированные спальни (19.38 и 14.79 кв. м), расположенные по соседству, прихожая с выделенной «грязной» зоной и с нишами под гардеробные шкафы и просторная кухня-гостиная площадью 18.74 квадратных метров.

Угловое остекление в большой спальне позволяет жильцам насладиться видами не только на внутренний двор, но и на парковые зоны. В комнате площадью 14.79 кв. м есть просторная (3.01 кв. м) лоджия.

Ничего лишнего, только максимум комфорта

Среди «двушек» от ASTERUS есть и квартиры линейной планировки площадью от 70.23 до 71.44 кв. м. Просторная кухня-гостиная (16.97 кв. м) и две спальни находятся на одной линии квартиры, из их окон открываются живописные виды во двор. В большой комнате (18.64 кв. м) предусмотрено угловое остекление и оборудована полноценная ванная комната с окном.

-6

В комнате меньшего размера (12.57 кв. м) углового остекления нет, но это с лихвой компенсируется наличием просторной лоджии площадью от 3.14 кв. м. Нежилую часть квартиры занимают прихожая с «грязной» зоной, санузел и постирочная площадью 3.17 кв. м, которую можно приспособить под кладовую.

Итак, мы убедились, что «двушки» могут быть максимально комфортными для проживания как для тех, кто предпочитает жить один, так и для семей с детьми или пожилыми родственниками.

Оптимальные площади, продуманное зонирование, много света и высокие потолки

Возможно, сегодня «двушка» мечты выглядит именно так, как ее представляют в новом жилом районе ALIA от застройщика ASTERUS.