Добавить в корзинуПозвонить
Найти в Дзене
Aqua Fraternitas

Язык принципиальных схем на примере США

Впервые термин интероперабельность я услышал в интервью, наверно, году в 2024 на канале у Рогачева. Наверно это слово можно применить и к нашим принципиальным схемам. Почему я обращаю на это внимание - попробую раскрыть в статье. Графическая часть нашего проекта является универсальным языком, которым общаются вовлеченные в процесс стороны. Поэтому мне и захотелось применить данное слово - интероперабельность. Именно наглядная принципиальная схема делает возможным обмен и интерпретацию технического решения. Глядя на понятную и компактную принципиалку можно очень много узнать о проекте и его исполнителе, без потребности залезать в остальную часть проекта. Так же принципиалка проще воспринимается, чем тяжелая аксонометрия/изометрия. Одни из самых лучших принципиальных схем выдают именно специалисты-технологи. Не компоновщики, а именно схемотехники. А с нашими принципиальными схемами по ВК творится что-то странное. Почему так сложилось? Надо взглянуть на производственную цепочку становлени
Оглавление

Впервые термин интероперабельность я услышал в интервью, наверно, году в 2024 на канале у Рогачева. Наверно это слово можно применить и к нашим принципиальным схемам. Почему я обращаю на это внимание - попробую раскрыть в статье.

Проблема схем

Графическая часть нашего проекта является универсальным языком, которым общаются вовлеченные в процесс стороны. Поэтому мне и захотелось применить данное слово - интероперабельность. Именно наглядная принципиальная схема делает возможным обмен и интерпретацию технического решения. Глядя на понятную и компактную принципиалку можно очень много узнать о проекте и его исполнителе, без потребности залезать в остальную часть проекта. Так же принципиалка проще воспринимается, чем тяжелая аксонометрия/изометрия.

Одни из самых лучших принципиальных схем выдают именно специалисты-технологи. Не компоновщики, а именно схемотехники. А с нашими принципиальными схемами по ВК творится что-то странное. Почему так сложилось? Надо взглянуть на производственную цепочку становления специалиста со стороны.

Высшее учебное заведение

Как не пародоксально, но времени отводится на инженерные дисциплины крайне мало, а количество проектов крайне скудно (в отличии от количества задач по сопромату). Для выполнения курсачей студентам не предоставляют эталонные проекты, с которых бы можно было начать заимствование. В итоге как нарисовали, так и есть (в 2015 нам приходилось вручную по методичке снимать размеры и рисовать планировки, чтобы потом нарисовать трубы. Тратить кучу времени на планировки было жалко, но никуда не деться). Либо курсачи скинули старшие курсы, так и ходят варианты графики от старших к младшим. О проблеме студенчества я упоминал в данной статье:

Проблемы образовательной программы проектировщиков ВК
Aqua Archive13 ноября 2024

Начало работы

Попадая в свою первую проектную организацию есть 2 пути:

  • у организации отлажен процесс и шаблоны;
  • самостоятельно собираешь из того, что есть, подсматриваешь за коллегами.

В первом случае, даже без большой помощи коллег есть возможность на накопленной базе проектов организации развить насмотренность и стремиться выполнять графическую часть надлежащим образом. Достаточно интересно, что в 2х рабочих группах могут выдавать графику совершенно по разному. Одна группа делает проработку аксонометрии и планов, и все это отправляется в ГГЭ. Другая группа любит размашистые принципиальные схемы, чтобы как у технологов-схемотехников. Как бы то ни было, графическая часть читаема, и нагрузка на участок трубопровода видна.

Если же имеет место второй случай, то прочитать и понять графическую часть становится той еще проблемой. Такое неряшество часто получает замечание -"привести схему в читаемый вид". Вроде списывал у коллеги, а попал на переделку по полной.

К примеру, в одном проектном институте рабочая группа периодически получала замечания о не читаемости чертежей. Были проблемы с толщиной линий и размером УГО на аксонометрии. Проблему решал, рассматривая проекты из интернета и ища что-то красивое в базе проектов института. Так я узнал о сером цвете планировок, черных осях, толщине линий труб и схем. А так же об оптимальных размерах УГО. Очень сильно помогли старые бумажные проекты, которые рисовали вручную, их я пересмотрел с десяток другой. Постепенно и был выработан шаблонный стиль, который продолжает меня сопровождать в работе. Дополнительно я его тестировал, печатая фрагменты на принтере в чб. Не получалось читаемо - размеры корректировались, пока не выходил оптимальный вариант для глаза. Делал я это для аксонометрии, в последствии все это хозяйство было адаптировано и для принципиальной схемы.

Бюрократия

Когда начинаешь работать, то думаешь, что имеются какие-нибудь наглядные справочники и документы, которые помогут освоить этот графический язык. Однако поиск выдает обратный результат - ничего нет и не было. В рамках направления ВК отсутствуют какие-либо поддерживающие документы. Максимум старые типовые проекты или бесплатные проекты из интернета. До какого-то момента времени принципиалка по ВК была забыта. Почему она вернулась? Пришло ПП №87 с требованием принципиальных схем - народ же по привычке продолжал чертить аксонометрию, которая устанавливается ГОСТом на рабочую документацию.

Почему так вышло? По воспоминаниям коллег, до проектной документации давали 3 листа а4 по ВК для общей пояснительной записки проекта. Если концепцию утверждали - переходили сразу к рабочке и оформляли по ГОСТу. То есть понятия принципиалки, как таковой, не существовало и никто ее не видел (но то что я не видел не значит, что этого нет), особенно ярко это выражено в типовых проектах, в которых только рабочие чертежи. На моей памяти ни один старый специалист принципиальной схемой о здании не думал.

Однако, для внутрянки работало главное правило - схемы должны отображать все сантехприборы и арматуру. И вроде бы хотелось и получалось соблюдать главное правило, но выпустили их - ГОСТы 619 и 620 на проектную документацию по ВК.

Данные ГОСТы и приложения принципиальных схем усложняют жизнь и внесли еще больший раздор. Главный принцип пунктов о "содержании полного состава элементов системы" идут в противоречие с приложением графической части. То есть можно планы и не прикладывать, но на схеме ты теперь обязан уработаться и извернуться так, чтобы показать где твои трубы ходят. А то что невозможно показать - извините, это определил разработчик документации и не покажем. На экспертизах и на приемке документации идет прикрытие схем именно этими ГОСТами теперь.

Интересно, что приведен плохочитаемый пример какой-то высотки из гражданского направления. А если в промке здания специфичной компоновки, как разводить? Удивляет еще отсутствие примера с ГВС, а так же излишняя детализированность фитингов канализации на принципиалке.

Глядя на подобные примеры и вспоминая интероперабельность начинаешь ловить себя на мысли, а что ты, как специалист с опытом, сможешь по этой принципиалке определить? Как быстренько прикинуть и проверить ТЭПы и гидравлику? Хотя иногда кажется, что по принципиальным схемам в П даже УГО понять трудновато, и что подразумевал исполнитель:

Принципиальные схемы живут свою отдельную и независимую жизнь. Методология расчетов сводится к сложной производственной цепочке, где не обойтись без оторванных друг от друга формул и таблиц. Понимая все это задаешься вопросом - а что там, в других странах? Наверно все сложнее.

Принципиальные схемы в США

Ранее я уже говорил, что в США одновременно и ядреная бюрократия, и при этом она очень наглядная и имеет низкий порог вхождения. Подробнее об этом тут:

Так же подстегивает к изучению заграничного опыта история одного специалиста, который не считал зазорным перенимать лучшие практики и выстраивать вокруг них инфраструктуру:

Так как материал достаточно интересный и с ним можно какое-то время поработать, то оставлю за собой право не приводить ссылки на первоисточники. Кто захочет - по картинкам сам все найдет.

Начнем с аннотации к документации в США:

«Ведомству» было поручено создать серию моделей санитарно-технических систем для формирования базового уровня стандартизации и единообразия в сфере ВК в жилых и коммерческих зданиях для всей страны.
Компании «X» было поручено в рамках задания №N разработать проект и выполнить расчеты.
Мы знаем, что здания и сооружения являются одними из крупнейших потребителей водных ресурсов, однако в строительной отрасли отсутствуют руководства и практики для оптимизации использования этого ценного природного ресурса.
Разработанные проекты предназначены для использования в качестве справочного материала различными частными и государственными заинтересованными сторонами для обеспечения стандартизированного анализа производительности сантехнических систем в зданиях.
Проект не привязан к региону или местоположению и предназначен только для общего использования и понимания. Обращаем внимание, что предоставленные документы не предназначены для фактического строительства, а также для подачи в разрешительные органы для получения одобрения на строительство. Документация основана на действующих нормах IRC (Международный жилищный кодекс), IBC-2018 (Международный строительный кодекс) для архитектурного проектирования, а разработка санитарно-технической части базируется на IPC 2018 (Международном сантехническом кодексе).

Что это означает, если адаптировать на нас в России? (но тут я могу допустить неточности, не всю цепочку как-то получается осознать).

Минпромторг принял программу стандартизации и поддержки строительной отрасли, спустил Росстандарту. Росстандарт передал Минстрою разнарядку разработать эталонные решения, и для графической части по ВК в том числе. Минстрой выдал это задание, например, в ТК465 (те что СП30 разрабатывают). В ТК465 определили и привлекли разработчиков, организовали совет и рабочую группу (5-10 крупных проектных и экспертизных игроков на рынке). Избранные организации совместно с ТК465 определили, например, 7 примеров (от ИЖС до здания социального назначения) из своей наработанной базы. Для каждого проекта здания была оформлена/скорректирована надлежащим образом графическая часть. Пока все между собой согласовывали и приводили к общему знаменателю (ведь у каждой организации свой опыт, в чем-то сильнее, где-то слабже) - поругались, помирились, проголосовали и выдали что-то годное. Данный документ ушел наверх, после чего был принят и опубликован в свободном доступе для всех заинтересованных лиц.

То есть в США, кроме информационной структуры для нормативов, выпускаются еще эталонные решения, в которых показано что у тебя в графике вообще должно быть и в каком виде. Причем ты можешь скачать модели в формате rvt, покрутить их, взять узлы из проектов и т.д.

Короче делай с этой информацией что хочешь, гос.ведомство поработало и дало тебе ориентир, что из под твоей руки должно выйти, чтобы тебя поняли остальные и твой бумажный продукт в электронном виде приняли.

У нас и близко такой системы нет. Да, некоторые экспертизы публикуют картинки из бим моделей, а Минстрой собирает каталог типовых проектов. Только в этом каталоге, на сколько я понял, нет инженерки в принципе, только ТЭПы и какие-то общие чертежи АР. Напоминает типовые данные из времен СССР. И это сделано для чиновника, а не для поддержания профессиональных компетенций сообщества. ТЭПы из СССР на типовой проект были тут:

И тем более нет примеров в нашем отечественном ПО в нативном формате. Теперь можем перейти к рассмотрению первого примера эталонного проекта

Дом на Single Family Detached

Полностью привести чертежи проблемно, поэтому будут фрагменты. Ссылку на чертеж, по традиции оставлю в конце статьи.

Общие данные

Встречает нас лист "общих данных". ТЭПов в нашем понимании не видно, как же без показателей систем ВК? В основном там текст про организацию работ и соблюдение требований. Интересный момент с аббревиатурами, а так же с указанием УГО для системы. Ну и рассказано, что значит каждый номер на чертеже:

-5

Планы

Далее нас встречают планы. Все прорисовано в натуре, все подписано и читаемо. Планы разделены на водопровод и канализацию:

Узлы

Далее идут листы с узлами, выбраны наиболее интересные и наглядные:

Общие указания?

Отдельно представлен лист с различными сводными данными в табличной форме:

Если сложно осознать, какой уклон заложен в канализацию, то статья в помощь:

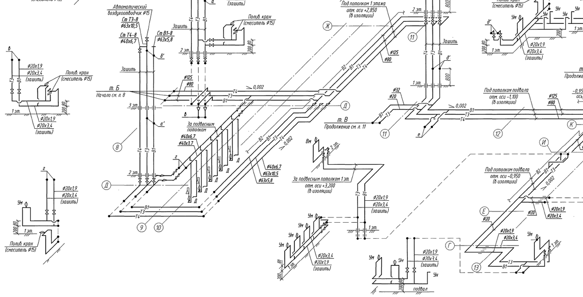
Принципиальные схемы

И, наконец, то ради чего и написана статья - принципиальная схема для нашего сарая. Потратив 5 минут на изучение листа общих данных нет проблем считать схему и планы. Они дают полное представление об ВК в доме. Так же начинаешь ориентироваться в специфике документации, выпускаемой в США:

Схема содержит в себе все необходимое и достаточное. Графика какого-то сарая на голову превосходит все те материалы, по которым мы учились, а так же известных мне справочников, к которым мы обращаемся и которые формируют наше профессиональный взгляд.

Модель в ревите

К модели есть претензии на тему ее проработки. Но с другой стороны спасибо и на том, что дали скачать и покрутить. По данной модели мы видим всю специфику сантехнической школы США, для себя я отметил:

  • примение индивидуальной вентиляции для всех сантехприборов;
  • сифоны конструкции P-trap;
  • условный подвод воды в сифон для трапа;
  • подвод вентиляции для трапа;
  • снижение диаметра вентилируемой части от унитаза;
  • увеличение диаметра вентилируемой части от мойки в кровле.

Заключение

Бюрократия и поддерживающая инфраструктура по направлению ВК в США продолжают удивлять. По сути благодаря принципиальной схеме, на примере канализации, ты можешь собрать нагрузку, открыть таблицу норматива и по данной таблице определить диаметры для труб канализации.

Принципиалка простая, без вот этой излишней проработки конструктивных особенностей здания. В дополнение к принципиалке оформляются планы, на которых можно наглядно увидеть, где транзитом идут трубы. В чем проблема была для ГОСТов 619 и 620 перенять эту практику - для меня загадка. При этом, на практике, вот если ссылаешься на ГОСТы по УГО-все равно просят их добавить на чертеж. А у Американцев просто приведен весь перечень отображения элементов и не важно, задействованы на схеме они или нет.

В целом работать удобно. Смотришь на схему, видишь прибор, каждому типу прибора присвоен свой код. Читаешь совместно схему с планом и понимаешь, что к чему. У нас же эта практика канула в небытие. Глядя на наши УГО не поймешь, это мойка или раковина.

Так же нет вот этого крючкавтирательства с уклонами и графоманией по УГО с фитингами труб. Свели все в типовые таблички.

Понравились типовые узлы, идущие в дополнение к схеме. Вот пересечение конструкций, вот сифон для мойки с измельчителем, вот отдельная обвязка водонагревателя (ну и зачем то еще на схему нанесли, но да ладно). Просто, наглядно, и то что реально нужно в документации.

Причем хочу обратить внимание, что это обычный сарай. Но для данного сарая выпущен эталонный, с точки зрения бюрократов и инженеров, пример документации. Постигать глобальные вещи надо с малого, и ИЖС прекрасный тому пример для начала. Есть еще примеры и в планах организовать цикл статей по ним.

Вот она, та самая интероперабельность, с которой началась статья. Человек из противоположной точки земли от США нашел документ, не имея специфики опыта работы в США осознает, что у них почиркано на чертежах и для чего это все, а так же как это все можно соотнести с нормативом и посчитать (но это не точно, каюсь). Возможна ли обратная ситуация? Маловероятно, у нас слишком сложно.

А вам как эталонные чертежи из США? Переняли бы у них что-нибудь?

Скачать материалы можно тут.

-12
Уважаемый читатель, буду очень рад, если вы поставите статье «нравится» и поделитесь в социальных сетях! Подписывайтесь на канал!

Так же вы можете присоединиться к сообществу в телеграмм и другим площадкам, где выкладываются интересные материалы: