Добавить в корзинуПозвонить
Найти в Дзене

Технический паспорт квартиры: полное руководство для собственника

Технический паспорт — это официальный документ, содержащий исчерпывающую информацию о технических характеристиках вашего объекта недвижимости. Он является результатом работы специалистов Бюро технической инвентаризации (БТИ), которые проводят детальный анализ и замеры помещения. В техническом паспорте содержится множество важных сведений: Техпаспорт необходим в различных жизненных ситуациях. Когда Вы планируете: Цена технического паспорта варьируется в зависимости от региона и типа работ. В крупных городах стоимость получения копии начинается от 1,7 тысяч рублей. Полное обследование квартиры может стоить до 13 тысяч рублей для помещений площадью до 100 квадратных метров. Оформление техпаспорта происходит следующим образом: Для оформления Вам потребуются: Оформление может быть приостановлено по нескольким причинам: При обращении за техническим паспортом обратите внимание на: Помните, что технический паспорт требует регулярного обновления, особенно после проведения ремонтных работ или п
Оглавление

Технический паспорт — это официальный документ, содержащий исчерпывающую информацию о технических характеристиках вашего объекта недвижимости.

Он является результатом работы специалистов Бюро технической инвентаризации (БТИ), которые проводят детальный анализ и замеры помещения.

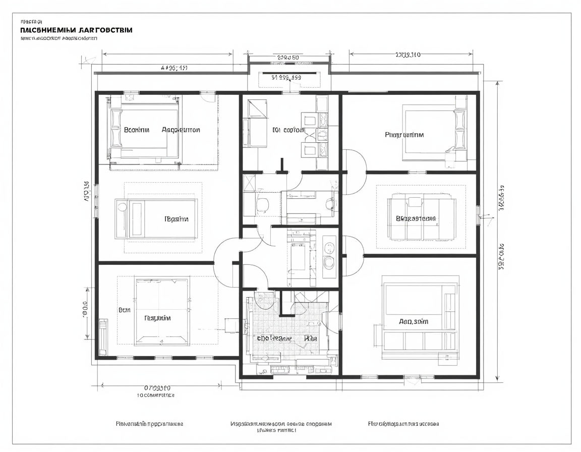
Образец техпаспорта квартиры

Структура документа

В техническом паспорте содержится множество важных сведений:

  • Подробная информация о местоположении и характеристиках здания
  • Точный план помещения с указанием размеров всех комнат
  • Технические параметры каждого помещения
  • Данные о строительных материалах и конструкциях
  • Информация об инженерных коммуникациях
  • Показатели технического состояния здания

Техпаспорт необходим в различных жизненных ситуациях. Когда Вы планируете:

  • Оформить ипотечный кредит — банк потребует документ для оценки объекта
  • Провести перепланировку — без техпаспорта невозможно узаконить изменения
  • Решить спорные вопросы с соседями о границах помещений
  • Уточнить параметры для корректного налогообложения
  • Восстановить утраченные правоустанавливающие документы

Стоимость оформления

Цена технического паспорта варьируется в зависимости от региона и типа работ. В крупных городах стоимость получения копии начинается от 1,7 тысяч рублей. Полное обследование квартиры может стоить до 13 тысяч рублей для помещений площадью до 100 квадратных метров.

Процесс получения

Оформление техпаспорта происходит следующим образом:

  • Подача заявления через доступные каналы — Госуслуги, МФЦ или напрямую в БТИ
  • Согласование даты визита специалиста для проведения замеров
  • Подготовка необходимого пакета документов
  • Оплата государственной пошлины
  • Получение готового документа

Необходимые документы

Для оформления Вам потребуются:

  • Паспорт собственника
  • Документы, подтверждающие право собственности
  • Квитанция об оплате госпошлины

Оформление может быть приостановлено по нескольким причинам:

  • Отсутствие полного комплекта документов
  • Несоответствие данных в документах
  • Наличие судебных споров о праве собственности
  • Выявление незаконной перепланировки

Рекомендации по оформлению

При обращении за техническим паспортом обратите внимание на:

  • Актуальность всех документов
  • Правильность заполнения заявления
  • Своевременность оплаты госпошлины
Помните, что технический паспорт требует регулярного обновления, особенно после проведения ремонтных работ или перепланировки. Своевременное оформление документа поможет избежать проблем при совершении сделок с недвижимостью и решении различных юридических вопросов.
-2

Технический паспорт — это важный документ, который может потребоваться в самых разных ситуациях. Его своевременное оформление и поддержание актуальности поможет Вам избежать многих проблем в будущем.


Рекомендуется заранее позаботиться о наличии актуального техпаспорта, даже если в данный момент он Вам не требуется.

Присоединяйтесь к благотворительной акции
Подробности:
https://dzen.ru/a/ZpwAUsZeyR2_kZ2_

Недвижимость с дисконтом
https://t.me/nedvizhimost_diskont

5 лучших статей в декабре

1. Введение уголовной ответственности за фиктивное оспаривание сделок
2.
Коммунальные долги россиян: масштабы проблемы и пути её решения
3.
Снижение стоимости газификации: что изменится для владельцев домов
4.
Реновация в Петербурге: что изменится
5.
Вторичный рынок жилья: анализ цен