Добавить в корзинуПозвонить
Найти в Дзене
БЮДЖЕТНЫЙ ВАРИАНТ

🧱Почему в хрущёвках всё слышно: разбираем стены, перекрытия и ошибки советской стройки

Утро в типовой хрущёвке.
Ты ещё лежишь в кровати, но уже знаешь:
сосед сверху встал и пошёл в туалет,
сосед сбоку чихнул,
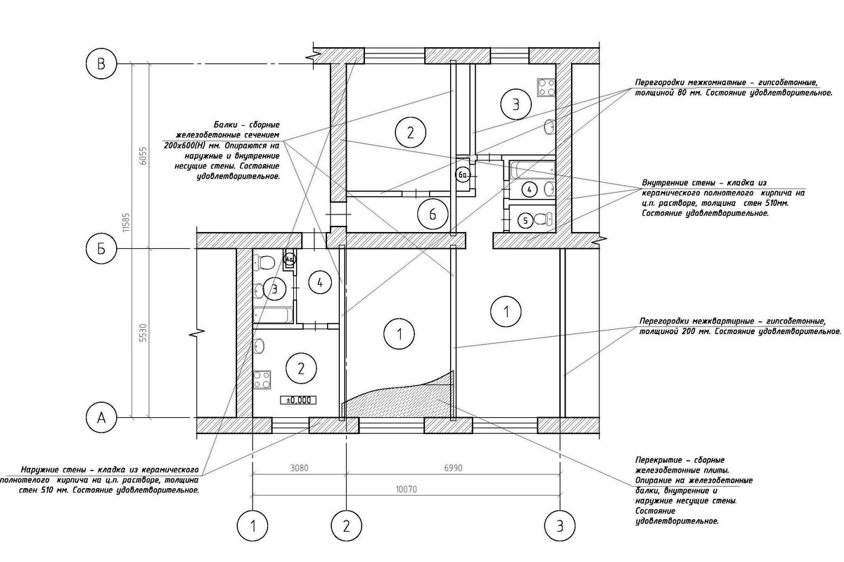
снизу кто-то ставит чайник, а где-то в другом подъезде уже сверлят. И это не суперслух. Это дом, в котором каждый звук живёт своей жизнью. Кажется, что стены картонные, а потолок — как барабан. Но на самом деле виноваты не только «тонкие стены». Давай разберём по-честному, из чего сделаны хрущёвки и панельки, почему там так всё звонко — и что можно сделать, чтобы не слушать чужую жизнь круглосуточно. 🏗️ Как устроены стены и перекрытия в хрущёвках и панельных домах Хрущёвки делали в эпоху, когда главная задача была одна: быстро расселить людей из бараков и коммуналок. Красота, комфорт и звук тогда были вторым делом. Что там по конструкции: Перекрытия — чаще всего железобетонные плиты, иногда пустотные. Жёсткие, хорошо проводят вибрации. Межквартирные стены — могли быть кирпичными, но не толстыми, либо из тяжёлых панелей. Перегородки внутри квартир (между комна
Оглавление

Утро в типовой хрущёвке.

Ты ещё лежишь в кровати, но уже знаешь:

сосед сверху встал и пошёл в туалет,

сосед сбоку чихнул,

снизу кто-то ставит чайник, а где-то в другом подъезде уже сверлят.

И это не суперслух. Это дом, в котором каждый звук живёт своей жизнью. Кажется, что стены картонные, а потолок — как барабан. Но на самом деле виноваты не только «тонкие стены». Давай разберём по-честному, из чего сделаны хрущёвки и панельки, почему там так всё звонко — и что можно сделать, чтобы не слушать чужую жизнь круглосуточно.

🏗️ Как устроены стены и перекрытия в хрущёвках и панельных домах

Хрущёвки делали в эпоху, когда главная задача была одна: быстро расселить людей из бараков и коммуналок. Красота, комфорт и звук тогда были вторым делом.

-2

Что там по конструкции:

  • Перекрытия — чаще всего железобетонные плиты, иногда пустотные. Жёсткие, хорошо проводят вибрации.
  • Межквартирные стены — могли быть кирпичными, но не толстыми, либо из тяжёлых панелей.
  • Перегородки внутри квартир (между комнатами, кухней и коридором) — гипсолит, шлакоблок, лёгкий кирпич. Бывает, что там реально чуть больше 8–10 см общей толщины.
  • Стыки панелей и места примыкания плит часто делали «как получится» — с точки зрения звука никто особенно не заморачивался.

Добавь к этому:

  • отсутствие звукоразвязки между плитой перекрытия и стеной,
  • общие вентиляционные шахты,
  • стояки, идущие через все этажи — и получаем огромный жёсткий «резонатор», по которому звук гуляет, как по музыкальному инструменту.
🔊 В многих хрущёвках межкомнатные перегородки делали толщиной около 80–100 мм — этого достаточно, чтобы стоять, но мало, чтобы гасить разговоры и телевизор.

📢Почему слышно даже то, что «далеко»

Жильцы старых домов часто говорят: «Слышно всё, как будто стены из картона». Но звуки бывают разными, и дом по-разному их проводит.

-3

1. Воздушный шум
Это:

  • разговоры,
  • телевизор,
  • музыка,
  • детский крик.

Он распространяется через воздух, потом через тонкие перегородки. Если стена лёгкая, без нормальной массы и плотной штукатурки — звук её просто пробивает. Поэтому разговоры соседей через внутреннюю стену часто слышны почти дословно.

2. Ударный шум
Это:

  • шаги,
  • перестановка мебели,
  • дети, прыгающие по полу,
  • стук дверей.

В хрущёвках плита перекрытия обычно лежит одним цельным «блином» на несколько квартир. Нет прослоек, демпферов, плавающего пола. Любой удар по плите у соседей сверху заставляет вибрировать ту же плиту у тебя под ногами.

3. Структурный (конструктивный) шум
Это самый коварный.
Когда кто-то сверлит стену или стучит перфоратором, вибрация уходит в:

  • плиту,
  • несущую стену,
  • колонны,
  • лестничный марш.

И дальше эта вибрация может всплывать в другой комнате или даже в другом подъезде. Поэтому иногда кажется, что звук «идёт отовсюду».

📡 В панельных домах 60–80-х годов плиты перекрытий и стены часто жёстко связаны между собой без звукоразвязки — из-за этого ударный и структурный шум гуляют сразу по нескольким квартирам и не «умирают» в одной точке.

🪛 Что можно реально улучшить, а что — самообман и выброшенные деньги

Полностью превратить хрущёвку в звукостудию невозможно, даже если обклеить всё золотыми панелями. Но уменьшить шум — реально. Важно не верить в чудо и понимать, что работает, а что — нет.

Что даёт эффект (особенно по воздушному шуму):

  • Мягкая мебель и текстиль
    Книжные шкафы до потолка вдоль шумной стены.
    Плотные шторы, ковры, тканевые панели.

    Они не делают тишину, но глушат эхо и поглощают часть звука.
  • Локальные звукоизоляционные конструкции
    Каркас из профилей + минвата + два слоя гипсокартона по шумной стене.
    Главное — не жёстко связывать этот каркас со стеной, а делать небольшую развязку.

    Так можно заметно приглушить разговоры и телевизор из соседней комнаты/квартиры.
  • Герметизация щелей
    Трещины, розетки «насквозь», щели под плинтусами.
    Часто через них проходит больше звука, чем через саму стену.

    Пройтись акрилом, пеной, заменить старые розетки на нормальные — мелочь, а шум иногда падает ощутимо.

Что почти не работает или работает символически:

  • Тонкие «пеночки» и дешёвые панели без массы: красивый поролон, тонкие 3–5 мм панели «для декоративной звукоизоляции».
  • Один слой гипсокартона прямо по стене без ваты и развязки — это чуть лучше, чем голый бетон, но далеко не чудо.
  • Наклейка «пробки» тонким слоем: комфорт по стене — да, тишина — почти нет.

С ударным и конструктивным шумом сложнее всего:

  • Шаги, перфоратор, удары по плитам — очень плохо гасится внутри одной квартиры.
  • Здесь максимум, что можно:
    мягкое покрытие на пол (ковролин, ковры, подложка);
    вежливый диалог с соседями сверху по поводу ковров и тапочек;
    не сверлить самим в «тихий» час, чтобы хотя бы никто не мстил.
🔧 В старых домах иногда проще добиться тишины от разговоров и телевизора, чем от ударов и перфоратора: воздушный шум гасится конструкциями и отделкой, а структурный по плитам гуляет через весь стояк почти без потерь.

✅Хрущёвка не обречена, но чудес ждать не стоит

-4

Хрущёвки и ранние панельки — это дома, где:

  • экономили на звукоизоляции,
  • не знали современных норм и материалов,
  • делали ставку на скорость и простоту, а не на акустический комфорт.

Поэтому слышно всё: от криков до стука ложки.

Но это не приговор. Можно:

  • подглушить воздушный шум — мебелью, коврами, локальной звукоизоляцией;
  • перекрыть щели, через которые звук идёт как по трубе;
  • договориться с соседями о базовых правилах по шуму, особенно по утрам и вечерам;
  • не выбрасывать деньги на «волшебные панели», которые обещают тишину, но по факту только украшают стену.

👋🏻Привет дорогой читатель, желаю тебе хорошего и продуктивного дня😌

БЮДЖЕТНЫЙ ВАРИАНТ | Дзен

🧏‍♂️ А ты в каком доме живёшь — хрущёвка, панелька, монолит? Что слышно лучше всего: разговоры, телевизор или шаги сверху?

Читайте также: