Найти в Дзене
ПСК "Градиент"

115 м² А-фрейм: от дачи до бизнеса - один проект решает всё!

Оглавление

Почему А-фрейм?

Треугольные дома в стиле А-фрейм давно перестали быть просто модным трендом. Сегодня это полноценное решение для тех, кто ищет нечто особенное в загородном строительстве. Давайте разберем, чем же так привлекателен этот проект.

Особенности планировки

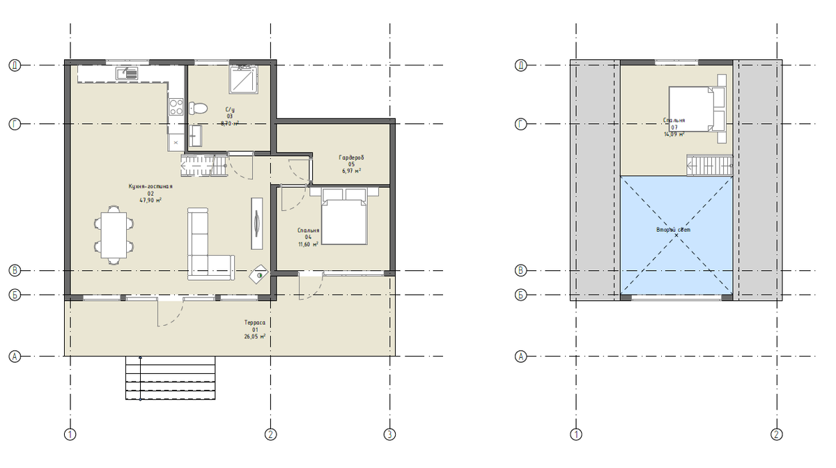
Общая площадь дома составляет 115,31 м².
Планировка включает:

  • Просторную кухню-гостиную (47,9 м²)
  • Террасу (26,05 м²) для отдыха на свежем воздухе
  • Две уютные спальни (11,6 м² и 14,09 м²)
  • Функциональный санузел (8,7 м²)
  • Практичный гардероб (6,97 м²)
-2

Технические характеристики

Конструктив дома построен на надежных сваях, что делает его устойчивым и долговечным. Каркасная технология обеспечивает легкость монтажа и отличную теплоизоляцию.

Высота помещений впечатляет:

  • Первый этаж 3 метра
  • Мансардный этаж 3 метра

Стены дома выполнены с учетом всех требований к комфорту:

  • Несущие стены 150 мм
  • Перегородки 100 мм
  • Дополнительное утепление 50 мм минеральной ваты
-3

Внешняя отделка и практичность

Фиброцементный сайдинг не только придает дому современный вид, но и защищает от внешних воздействий. Такой материал прослужит долгие годы, сохраняя привлекательный внешний вид.

Варианты использования

Этот проект универсален:

  • Прекрасное решение для загородного проживания
  • Перспективный вариант для сдачи в аренду
  • Отличный выбор для создания базы отдыха

Переходите на сайт ПСК Градиент, где вы найдёте полную информацию о проекте и сможете рассчитать стоимость строительства.

Подписывайтесь на наш канал, чтобы быть в курсе новых проектов и специальных предложений от ПСК Градиент. Делитесь в комментариях, какие характеристики дома для вас наиболее важны!

Не забудьте сохранить статью и поставить лайк, если она была полезной. А для получения персонального расчёта стоимости строительства свяжитесь с нашими специалистами прямо сейчас.