Найти в Дзене
Designum Sochi

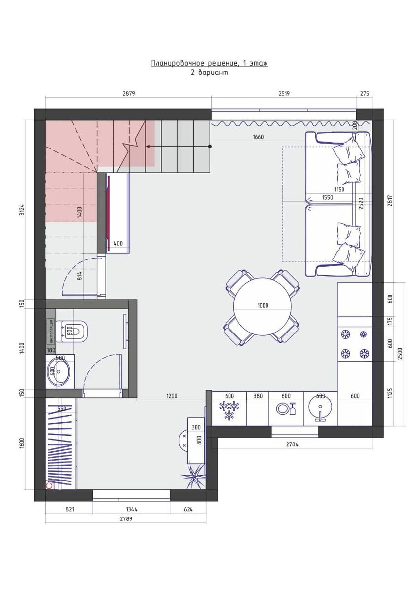
У нас в работе - трёхэтажный таунхаус в загородном квартале «Лесочи

У нас в работе - трёхэтажный таунхаус в загородном квартале «Лесочи».

Согласованы такие планировки, но на этапе 3d-визуализации мы можем еще дорабатывать их. Ведь понять любой план становится проще, увидев пространство в объёме.

А грамотная планировка - основа комфортного интерьера.

* обмерочные планы 2 и 3 этажей практически совпадают, поэтому прикладываем только один план и две итоговые планировки для 2 и 3 этажей соответственно.

* третий этаж - личное пространство хозяев дома: просторная спальня, большая гардеробная и ванная комната с отдельностоящей ванной 😍

-2
-3
-4
-5