Добавить в корзинуПозвонить
Найти в Дзене
INMYROOM

До и после: потрясающее преображение прихожей в двушке 60 м²

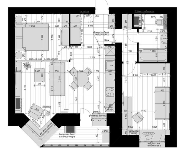
Порция вдохновения и классные идеи для переделки Прихожая — это первое, что видит человек, входя в квартиру, и потому она должна быть как функциональной, так и эстетически приятной. Показываем, как классно дизайнеры Ирина и Александр Кутенковы из студии Kutenkovs project преобразили прихожую в двухкомнатной квартире площадью 60 кв. м. Целью проекта стало создание комфортного и небанального интерьера, при этом важно было максимально эффективно использовать ограниченное пространство. Для этого стандартная планировка была изменена, и входная зона была отделена от гостиной с помощью конструкции из деревянных реек. Декоративная панель из этого материала продолжается на потолке, визуально приподнимая его. Для отделки пола была выбрана шестиугольная плитка, уложенная в привлекательной геометрической раскладке. Стены, частично отделанные серым керамогранитом, отлично контрастируют с бирюзовыми фасадами шкафа и стенами в бирюзовой покраске В прихожей предусмотрены все необходимые элементы: конс

Порция вдохновения и классные идеи для переделки

Прихожая — это первое, что видит человек, входя в квартиру, и потому она должна быть как функциональной, так и эстетически приятной. Показываем, как классно дизайнеры Ирина и Александр Кутенковы из студии Kutenkovs project преобразили прихожую в двухкомнатной квартире площадью 60 кв. м.

 📷
📷

Целью проекта стало создание комфортного и небанального интерьера, при этом важно было максимально эффективно использовать ограниченное пространство. Для этого стандартная планировка была изменена, и входная зона была отделена от гостиной с помощью конструкции из деревянных реек. Декоративная панель из этого материала продолжается на потолке, визуально приподнимая его.

 📷
📷

Для отделки пола была выбрана шестиугольная плитка, уложенная в привлекательной геометрической раскладке. Стены, частично отделанные серым керамогранитом, отлично контрастируют с бирюзовыми фасадами шкафа и стенами в бирюзовой покраске

 📷
📷

В прихожей предусмотрены все необходимые элементы: консоль у входа, мягкий пуф, который служит дополнительным местом для сидения, и зеркало. Зеркало помогает визуально увеличить пространство, а также является необходимым элементом в любой прихожей.

 📷
📷

Для хранения есть большой встроенный шкаф, в котором предусмотрена секция для хозяйственно-бытовых предметов. Дверцы шкафа в формате жалюзи гармонично поддерживают общую концепцию.

 📷
📷

Результат работы дизайнеров впечатляет. Прихожую в такой небольшой квартире удалось сделать функциональной, удобной и привлекательной.

Сейчас читают:

Спасибо, что читаете нас! ❤️

Если материал был полезен — поставьте лайк и отправьте другу.

А ещё больше интерьерных идей, советы экспертов и классные румтуры в нашем Telegram-канале. Подписывайтесь, вам точно понравится!