Добавить в корзинуПозвонить
Найти в Дзене

Что крайне необходимо иметь в частном доме. Часть 1.

Строительство или обустройство собственного дома — это увлекательное путешествие, полное мечтаний и планов. Каждый из нас хочет, чтобы дом был не только красивым, но и удобным, уютным и функциональным. В этой статье мы поделимся списком элементов, которые помогут сделать ваш дом именно таким. Это не строгие правила, а скорее дружеские советы, основанные на опыте и здравом смысле. Мы расскажем, какие помещения и решения стоит предусмотреть, чтобы жизнь в доме приносила радость и комфорт. Погрузимся в детали? Начнем с того, что в доме всегда нужно место для хранения. Кладовые и подсобные помещения — это настоящие спасатели, когда речь идет о поддержании порядка. В них можно хранить все: от сезонных вещей и инструментов до запасов продуктов и бытовой химии. Этот проект можно посмотреть здесь. Представьте: у вас есть небольшая кладовка рядом с кухней, где аккуратно сложены крупы, консервы и редко используемая посуда. Или подсобка в гараже, где хранятся инструменты, велосипеды и новогодние
Оглавление

Строительство или обустройство собственного дома — это увлекательное путешествие, полное мечтаний и планов. Каждый из нас хочет, чтобы дом был не только красивым, но и удобным, уютным и функциональным. В этой статье мы поделимся списком элементов, которые помогут сделать ваш дом именно таким. Это не строгие правила, а скорее дружеские советы, основанные на опыте и здравом смысле. Мы расскажем, какие помещения и решения стоит предусмотреть, чтобы жизнь в доме приносила радость и комфорт. Погрузимся в детали?

Как много проектов...
Как много проектов...

Необходимые элементы частного дома

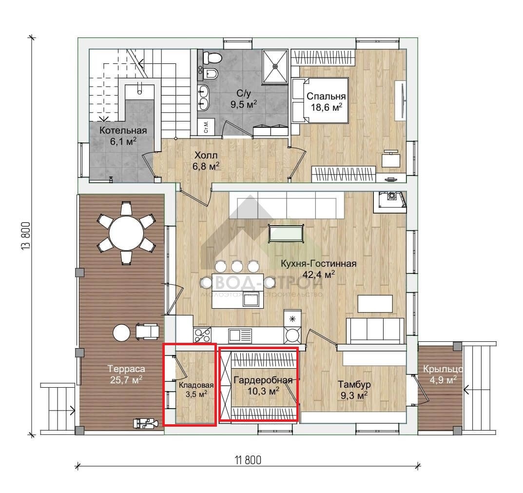
1. Кладовые и подсобные помещения

Начнем с того, что в доме всегда нужно место для хранения. Кладовые и подсобные помещения — это настоящие спасатели, когда речь идет о поддержании порядка. В них можно хранить все: от сезонных вещей и инструментов до запасов продуктов и бытовой химии.

Пример кладовой и гардеробной.
Пример кладовой и гардеробной.

Этот проект можно посмотреть здесь.

Представьте: у вас есть небольшая кладовка рядом с кухней, где аккуратно сложены крупы, консервы и редко используемая посуда. Или подсобка в гараже, где хранятся инструменты, велосипеды и новогодние украшения. Такие помещения помогают разгрузить жилое пространство и сделать дом более организованным. Планируя дом, подумайте, где можно выделить хотя бы пару квадратных метров под кладовую — вы точно не пожалеете.

Посмотрите также примеры кладовых, в т.ч. при кухне или на чердаке – здесь, здесь, здесь, здесь и здесь.

2. Тамбур: отсекаем холод и создаем уют

Тамбур — это не просто прихожая, а важный элемент, который помогает сохранить тепло в доме. Он действует как буфер между улицей и жилыми помещениями, не давая холодному воздуху проникать внутрь. Особенно это актуально для регионов с суровыми зимами.

Пример тамбура-прихожей
Пример тамбура-прихожей

Планировку с таким тамбуром вы можете найти здесь

Кроме того, тамбур может стать функциональной прихожей. Здесь удобно оставить обувь, повесить куртки или поставить зонт. Если позволяет пространство, добавьте шкаф или полки для хранения. В нашей статье про вход в дом мы подробно рассказывали про тамбур, как сделать это помещение стильным и практичным, так что загляните туда за вдохновением. Главное — предусмотреть тамбур еще на этапе проектирования, чтобы он был удобным и гармонично вписывался в планировку.

Посмотрите примеры домов с тамбуром:

Маленький тамбур, только для прохода – здесь и здесь

Тамбур-прихожая – здесь и здесь

3. Котельная: сердце системы отопления

Если в вашем доме будет автономное отопление, котельная станет незаменимой частью. Это помещение, где размещается котел и другое оборудование, должно быть продумано до мелочей.

Здесь вход в котельную расположен внутри дома
Здесь вход в котельную расположен внутри дома

Этот проект с отличной котельной вы можете найти здесь

Во-первых, котельная должна быть не менее 15 кубических метров — это требование безопасности. Во-вторых, т.к. оборудование котельной периодически подлежит обслуживанию, в нее будут заходить посторонние люди, поэтому не устраивайте ее в глубине дома. Лучше предусмотрите доступ как из дома, так и с улицы, чтобы обслуживание было удобным. Не забудьте про окно для естественного освещения и вентиляции, а также про стену, на которую можно повесить оборудование. Хорошая котельная — это не только функциональность, но и безопасность, так что отнеситесь к ее планировке серьезно.

Вот несколько примеров грамотно организованной котельной – здесь, здесь, здесь и здесь.

4. Постирочная: все для ухода за бельем

Постирочная — это мечта многих, кто ценит порядок и комфорт. Это отдельное помещение, где можно разместить стиральную и сушильную машины, гладильную доску и место для хранения белья.

Рациональная постирочная
Рациональная постирочная

Эту планировку с постирочной вы можете найти здесь.

Представьте, как удобно, когда все процессы — стирка, сушка, глажка — происходят в одном месте, а не разбросаны по дому. Постирочная помогает держать грязное белье под контролем и освобождает ванную или кухню от лишней техники. Если места немного, можно организовать компактный уголок с полками и корзинами. Главное — заранее заложить розетки и подводку воды для техники.

Посмотрите проекты с большими и удобными постирочными – здесь, здесь, здесь, здесь и здесь.

5. Терраса: ваш уголок на свежем воздухе

Крытая терраса рядом с гостиной — это настоящая жемчужина дома. Это место, где можно пить утренний кофе, устраивать семейные ужины или просто наслаждаться природой. Крыша над террасой защитит от дождя и палящего солнца, а расположение рядом с гостиной сделает ее естественным продолжением жилого пространства.

Большая и удобная терраса
Большая и удобная терраса

Этот проект с большой террасой вы можете найти здесь

В наших статьях про террасы (раз, два) мы делились идеями, как оформить это пространство: от уютных диванов до гирлянд и кашпо с цветами. Планируя террасу, подумайте о ее размере и ориентации — например, чтобы она выходила на юг или запад для максимального солнца. Это место станет вашим любимым уголком для отдыха.

Посмотрите проекты на сайте Планистрой:

С открытыми террасами

С солнечной палубой

С застекленной верандой

6. Парковка, гараж или навес

Место для автомобиля — это то, о чем стоит подумать еще на этапе проектирования. Если вы не планируете гараж в доме, предусмотрите хотя бы навес или площадку для парковки. И не забудьте про гостей: выделите место, где они смогут оставить свои машины.

Организовать парковку позже может быть сложнее и дороже, особенно если придется переделывать ландшафт или убирать газоны. Простой навес или укрепленная площадка с гравием уже сделают жизнь проще. А если вы мечтаете о гараже, подумайте о его расположении и доступе — это инвестиция в удобство на годы вперед.

Подборку домов с гаражом или навесом вы можете посмотреть здесь.

Также посмотрите обзор домов с сайта Планистрой с гаражом на две машины.

7. Чистая высота этажа: не забываем про потолки

Высота потолков — это то, что напрямую влияет на ощущение пространства. Но важно учитывать «чистую» высоту этажа, то есть высоту после всех отделочных работ. Общая высота минус стяжка пола и напольное покрытие (12-20 см), гипсокартон или натяжной потолок (~5-7 см)— вот что останется в реальности.

Чтобы дом казался просторнее, добавьте к высоте этажа один-два кирпича (примерно 10–15 см). Это не сильно увеличит бюджет, но сделает комнаты визуально больше и комфортнее. Высокие потолки — это всегда ощущение свободы и уюта.

ПРОДОЛЖЕНИЕ СЛЕДУЕТ...

Создание комфортного частного дома требует не только наличия необходимых элементов инфраструктуры — котельной, постирочной, террасы и т.п. — но также особенно важно уделить внимание правильной, удобной и рациональной планировке пространства. Именно она определяет уровень комфорта проживания, эффективность использования территории и гармонию внутри дома.

Инвестируя время и ресурсы в грамотное планирование дома на этапе проектирования, владельцы получают возможность наслаждаться уютом и функциональностью своего жилья долгие годы. В конечном итоге именно правильная планировка превращает дом из просто здания в настоящее уютное гнездо — место силы для всей семьи.

Оригинал статьи находится здесь

Мы не настаиваем на своих рекомендациях, а просто советуем, исходя из опыта и отзывов клиентов. А еще рекомендуем посмотреть побольше проектов на нашем сайте и выбрать самый удобный для вас!

Больше интересных и разных проектов на любой вкус и кошелек смотрите на сайте www.planistroy.ru

#проектдома #строительстводома #планировкадома

Спасибо, что вы с нами, спасибо за ваши отклики и лайки!

Нам очень приятно!