Добавить в корзинуПозвонить
Найти в Дзене

Обзор проектов домов с гаражом на две машины

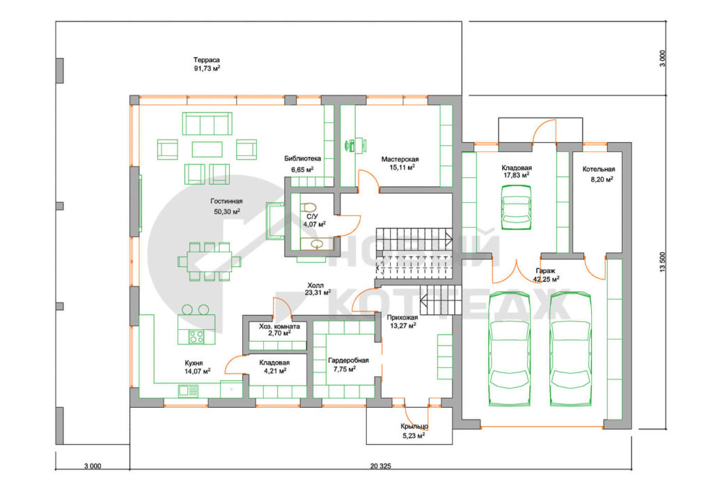
Запрос на встроенный или пристроенный гараж на две машины довольно часто встречается на нашем сайте https://planistroy.ru Здесь мы хотим представить вашему вниманию наиболее интересные, на наш взгляд, проекты домов с гаражом на две машины. Вот, например, смелое сочетание несочетаемых стилей - минимализм и барнхаус (листайте галерею): Минималистическая часть представляет из себя довольно большой гараж, на две машины, с кладовой / мастерской и котельной. Обратите внимание, здесь и далее вынос котельной в гараж – довольно удачная идея, освобождает много места в основном доме. Вход из гаража ведет в прихожую – также очень удачное планировочное решение. Подробное описание и полную планировку вы найдете здесь: https://planistroy.ru/project/49-dom-iz-gazobetona-16h20m-bavariya Еще один интересный проект – дом для узкого участка со встроенным гаражом на две машины (листайте галерею): Здесь также очень удачно сделан вход из гаража – в прихожую. Это не просто удобно, такая планировка экономит пл
Оглавление

Запрос на встроенный или пристроенный гараж на две машины довольно часто встречается на нашем сайте https://planistroy.ru

Здесь мы хотим представить вашему вниманию наиболее интересные, на наш взгляд, проекты домов с гаражом на две машины.

Фронтальный въезд в гараж

Вот, например, смелое сочетание несочетаемых стилей - минимализм и барнхаус (листайте галерею):

Минималистическая часть представляет из себя довольно большой гараж, на две машины, с кладовой / мастерской и котельной. Обратите внимание, здесь и далее вынос котельной в гараж – довольно удачная идея, освобождает много места в основном доме. Вход из гаража ведет в прихожую – также очень удачное планировочное решение.

Подробное описание и полную планировку вы найдете здесь: https://planistroy.ru/project/49-dom-iz-gazobetona-16h20m-bavariya

Еще один интересный проект – дом для узкого участка со встроенным гаражом на две машины (листайте галерею):

Здесь также очень удачно сделан вход из гаража – в прихожую. Это не просто удобно, такая планировка экономит площадь основной части дома, т.к. нет необходимости устраивать дополнительную «грязную комнату» для перехода из гаража в дом.

Полностью этот проект смотрите здесь: https://planistroy.ru/project/s-340-neo

Вот этот очень интересный дом в скандинавском стиле с гаражом на две машины (листайте галерею):

Здесь также гараж очень удачно встроен в дом – вход в котельную из гаража, а вход из гаража в дом обустроен в прихожую.

Подробнее этот проект можно посмотреть здесь: https://planistroy.ru/project/k-546-trento

Следующий проект дома с гаражом на две машины – одноэтажный, в стиле минимализм (листайте галерею):

Здесь гараж как бы пристроен к основному дому, и, я уверен, вы можете договориться со строителем сделать его больше или меньше – на три машины, или на одну. Также, мы бы добавили здесь вход в дом через прихожую.

Подробнее этот проект можно посмотреть здесь: https://planistroy.ru/project/kp-1

Пристроенный навес на две машины

В некоторых случаях гараж делать не обязательно. На сайте Планистрой есть проекты, в которых предусмотрено размещение двух машин под навесом, без ограждения помещения стенами.

Например, выполненный в современном европейском стиле большой дом с навесом на две машины (листайте галерею):

В этом доме можно сделать как навес на две машины – как указано в планировке, так и навес на одну машину с небольшим сарайчиком – как вы видите на картинке фасада. Любой из этих вариантов доступен по вашему заказу.

Подробнее про этот проект смотрите здесь: https://planistroy.ru/project/s-350-shiraz

Или вот, довольно большой эклектичный дом, что-то вроде смеси шале с современным европейским стилем (листайте галерею):

Здесь также под навесом можно разместить две машины в ряд, а можно ограничиться одной машиной, а освободившееся место использовать как сарай или мастерскую – место хранения инструментов, шин, садовой техники и инвентаря.

Подробно этот проект вы можете посмотреть здесь: https://planistroy.ru/project/om-285

Боковой въезд в гараж

Еще два интересных проекта с боковым въездом в гараж. С одной стороны, такое решение требует довольно много места непосредственно перед домом, т.к. необходимо устроить мощеную площадку для поворота – от ворот участка к воротам гаража. С другой стороны, вы фактически закрываете свой палисадник от глаз соседей стеной – самими гаражом. Здесь также необходимо не забывать об отступах от границ участка, т.к. нельзя использовать стену гаража как забор…

Первый дом – реализованный проект – одноэтажный дом в классическом стиле (листайте галерею):

Обратите внимание, здесь также вход в дом из гаража сделан очень удачно – через гардеробную верхней одежды в прихожую.

Подробнее этот проект можно посмотреть здесь: https://planistroy.ru/project/d047

Второй проект – дом в стиле Райта, спланирован для относительно узкого участка (листайте галерею):

В этом проекте вход в дом также сделан через гардеробную в прихожую. Обратите внимание, архитектор предусмотрел еще одно место для парковки, - крыша гаража продлена почти до фронтального забора и там устроен навес для гостевой машины.

Подробнее проект смотрите здесь: https://planistroy.ru/project/d126

Все проекты с гаражом, в т.ч. на две машины, вы можете посмотреть здесь.

На сайте https://planistroy.ru вы можете найти более 500 проектов дома вашей мечты – одноэтажные, двухэтажные, с цоколем, террасой, бильярдом и прочими деталями на ваш выбор.

#проектдома #строительстводома #агрегаторпроектовдомов #одноэтажныйдом #планировкадома #двухэтажныйдом #каркасныйдом #домсгаражом

Спасибо за ваши лайки, подписку и обратную связь!