Добавить в корзинуПозвонить
Найти в Дзене
INMYROOM

Студия 30 м² в хрущевке, в которой уместили все необходимое и даже больше

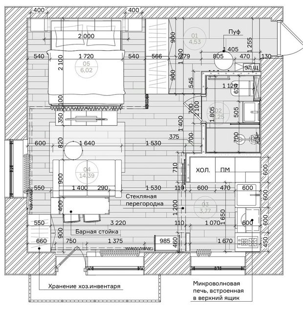
На небольшой площади удалось спроектировать спальню, кухню, гостиную зону, рабочее место и много хранения. При этом пространство совсем не выглядит тесным Заказчицей проекта стала молодая девушка, которая живет в Ереване. Перед дизайнерами ADMstudio она поставила задачу создать универсальное пространство, подходящее для комфортной жизни одного-двух молодых людей. Девушка просила сделать простой минималистичный дизайн с яркими акцентами. На 30 кв. м необходимо было обустроить место для работы, отдыха и сна, предусмотреть большое количество скрытого хранения. Место: г. Москва, Щукино
Тип дома: хрущевка
Метраж: 30 м²
Высота потолков: 2,5 м
Количество комнат: 1
Санузел: 1
Дизайн: ADMstudio
Бюджет: 1,5 млн рублей На момент покупки квартира была в черновой отделке — стены и потолок оштукатурены, выполнены стяжка пола и разводка электрики. Перепланировка также была проведена предыдущими владельцами. Из типовой однушки они сделали квартиру-студию: демонтировали стену между кухней и гостиной, а
Оглавление

На небольшой площади удалось спроектировать спальню, кухню, гостиную зону, рабочее место и много хранения. При этом пространство совсем не выглядит тесным

Заказчицей проекта стала молодая девушка, которая живет в Ереване. Перед дизайнерами ADMstudio она поставила задачу создать универсальное пространство, подходящее для комфортной жизни одного-двух молодых людей. Девушка просила сделать простой минималистичный дизайн с яркими акцентами. На 30 кв. м необходимо было обустроить место для работы, отдыха и сна, предусмотреть большое количество скрытого хранения.

Место: г. Москва, Щукино
Тип дома: хрущевка
Метраж: 30 м²
Высота потолков: 2,5 м
Количество комнат: 1
Санузел: 1
Дизайн: ADMstudio
Бюджет: 1,5 млн рублей
 📷
📷

На момент покупки квартира была в черновой отделке — стены и потолок оштукатурены, выполнены стяжка пола и разводка электрики. Перепланировка также была проведена предыдущими владельцами. Из типовой однушки они сделали квартиру-студию: демонтировали стену между кухней и гостиной, а вход в санузел перенесли из входной зоны в комнату. Мокрые зоны остались в своих пределах.

Дизайнеры ADMstudio оставили вход в санузел из зоны жилой комнаты. Перегородку между прихожей и комнатой снесли, разделив пространство с помощью высоких гардеробных шкафов до потолка. Между кухней и гостиной возвели стеклянную перегородку, так как это обязательное условие при газифицированной кухне.

 📷
📷

Изначально в проекте хотели отказаться от газовой плиты и объединить пространство кухни и гостиной в общее. Но в процессе реализации заказчица отказалась от этой идеи и оставила газ. Так появилось решение с раздвижной стеклянной перегородкой, отделяющей кухню от жилой комнаты.

Кухонный гарнитур выполнен на заказ по эскизам дизайнеров. Все хранение скрыто от глаз за глухими однотонными фасадами без видимой фурнитуры — ничто не создает визуального шума. Кухня оснащена всей необходимой для жизни техникой. Холодильник встроен в пенал, за одним из фасадов скрыта стиральная машина, а микроволновая печь и чайник расположены в нише и не бросаются в глаза.

 📷
📷
 📷
📷

При выборе материалов опирались в первую очередь на их долговечность и стоимость. В комнате и кухне уложен кварцвинил, в прихожей и санузле — керамогранит. Стены покрашены моющейся краской, в санузле использовали комбинацию плитки и краски.

Трубы отопления и старые чугунные радиаторы заказчица просила скрыть. Но дизайнеры решили не возводить коробов из ГКЛ, которые заберут много пространства. Они предложили противоположное решение — показать то, что нельзя спрятать, и выкрасить все коммуникации в акцентный синий оттенок. Так старые трубы и радиаторы стали красивыми аккуратными акцентами в современном минималистичном интерьере. Еще одним ярким пятном стала дверь в санузел.

 📷
📷
 📷
📷
 📷
📷

Акцентным цветом был выбран насыщенный синий. Глубина синевы делает небольшое пространство визуально больше и просторнее. Поэтому в зоне сна стена за кроватью выкрашена в приятный успокаивающий темно-синий оттенок. Он частично переходит на боковую стену, потолок и заднюю стенку одного из шкафов, образуя визуальную нишу синего цвета — она располагает к расслабленной и умиротворенной атмосфере, способствует комфортному сну и отдыху.

 📷
📷
 📷
📷
 📷
📷
 📷
📷

Гардеробные шкафы использовали не только в качестве перегородки между зоной сна и прихожей. В них предусмотрено основное хранение. Подвесные шкафчики над кроватью и стеллаж тоже добавили для дополнительного размещения вещей. У балкона расположен еще один шкаф — место для хранения хозяйственного инвентаря.

 📷
📷
 📷
📷
 📷
📷
 📷
📷

В проекте подобрали простое, но интересное освещение. Это круглый подвесной светильник в гостиной зоне, круглые накладные светильники на кухне, прихожей и санузле, а также подсветка под шкафчиками над кроватью.

 📷
📷

Санузел небольшой по площади, но в нем удалось разместить все необходимое для комфортной жизни: душ, раковину с тумбой, подвесной унитаз и хранение над инсталляцией.

 📷
📷
 📷
📷
 📷
📷

Бренды, представленные в проекте

Отделка: краска, Dulux; керамогранит, Betonhome
Напольное покрытие: кварцвинил, FineFloor; керамогранит, Betonhome
Мебель: гарнитур, Two Furni; барная стойка, BestMebelShop; шкафы, ЯШкаф; стулья барные, кофейный столик, INMYROOM; подвесные шкафы, Hoff
Бытовая техника: Gorenje
Смесители: GAPPO
Освещение: Абриссвет
Декор: зеркало, INMYROOM

Сейчас читают: