Добавить в корзинуПозвонить
Найти в Дзене
INMYROOM

До и после: новая жизнь двушки 47 м² в старом фонде

Нешаблонные бюджетные решения в доме со столетней историей Эту двухкомнатную квартиру оформила флиппер Анастасия Разливанова. Главной задачей было сохранить атмосферу старого фонда и обустроить современное, визуально более просторное пространство. Анастасия использовала оригинальные и бюджетные решения и создала яркий запоминающийся интерьер, настраивающий на творчество и отдых. Место: г. Москва
Метраж: 47 м²
Количество комнат: 2
Высота потолка: 3,2 м
Санузел: 1
Дизайн: Анастасия Разливанова
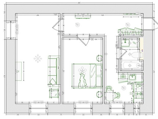
Бюджет: 2 млн рублей Дом строился по индивидуальному проекту, планировка здесь была не совсем типичная. В квартире не было ванной комнаты. Несмотря на то, что дом имеет столетнюю историю, часть отделки была в хорошем состоянии и ее удалось сохранить. В результате небольшой перепланировки в квартире есть отдельная кухня, гостиная, спальня, прихожая и совмещенный санузел. Для отделки стен в кухне использовали моющуюся матовую краску светлого оттенка, на полу — керамогранит. Чтобы освободить газовую т
Оглавление

Нешаблонные бюджетные решения в доме со столетней историей

Эту двухкомнатную квартиру оформила флиппер Анастасия Разливанова. Главной задачей было сохранить атмосферу старого фонда и обустроить современное, визуально более просторное пространство. Анастасия использовала оригинальные и бюджетные решения и создала яркий запоминающийся интерьер, настраивающий на творчество и отдых.

Место: г. Москва
Метраж: 47 м²
Количество комнат: 2
Высота потолка: 3,2 м
Санузел: 1
Дизайн: Анастасия Разливанова
Бюджет: 2 млн рублей

Румтур этой квартиры (20 минут)

 📷
📷

Квартира до ремонта

Дом строился по индивидуальному проекту, планировка здесь была не совсем типичная. В квартире не было ванной комнаты. Несмотря на то, что дом имеет столетнюю историю, часть отделки была в хорошем состоянии и ее удалось сохранить.

-3
-4
-5
-6

Квартира после ремонта

В результате небольшой перепланировки в квартире есть отдельная кухня, гостиная, спальня, прихожая и совмещенный санузел. Для отделки стен в кухне использовали моющуюся матовую краску светлого оттенка, на полу — керамогранит. Чтобы освободить газовую трубу, пришлось дробить отделку. После ее демонтажа стену оставили в таком виде и заколеровали открывшийся кирпич белым. Таким образом простенок стал своеобразным акцентом, который сразу притягивает внимание.

 📷
📷

Фасады для углового компактного гарнитура выбирали из бюджетного сегмента и дополнили их винтажными стильными ручками. Столешница выполнена на заказ из ОСБ-панелей — их склеили и облицевали мозаичной плиткой. Столешницу продлили на подоконник, чтобы увеличить полезную площадь и визуально не дробить пространство. Фартук оформили такой же плиткой. Полностью гарнитур с наполнением обошелся примерно в 100 тыс. рублей.

 📷
📷
 📷
📷
 📷
📷

В гостиной одну стену оставили «в кирпиче», которому 100 лет. Его зачистили и покрыли матовым лаком в два слоя. Пол тоже старинный — это массив доски. Чугунные батареи зачистили, покрасили и вернули на свои места. Подоконники сделали деревянными, стоимость каждого — 2000 рублей. Окна заменили на пластиковые и оснастили их красивыми золотистыми ручками.

В квартире много старинных предметов, которым дали вторую жизнь. Например, ТВ-тумба, подставка для ног, торшер, люстра, ковер. Картина на тумбе нарисована специально для этой квартиры художницей Наташей Харитоновой.

 📷
📷
 📷
📷
 📷
📷
 📷
📷

Спальня выполнена в светлых спокойных оттенках. Здесь есть кровать и старинное зеркало. Для хранения оставили место, его будущие жильцы организуют на свое усмотрение.

 📷
📷
 📷
📷
 📷
📷

Межкомнатные двери купили стандартной высоты, чтобы сэкономить бюджет. С помощью декоративных наличников, окрашенных в цвет стен, их высоту визуально увеличили. Нишу декорировали рамой от старого зеркала.

 📷
📷
 📷
📷

На полу во входной зоне уложен такой же керамогранит, как на кухне. Для небольшой гардеробной или кладовой предусмотрели отдельное место, закрыв его текстильной шторой. Изначально в квартире было две входных двери с небольшим пространством между ними. После установки новой качественной двери на вход от второй решили отказаться. Освободившееся место заняли крючки для верхней одежды.

 📷
📷

Санузел расширили, чтобы поставить полноценную ванну. Его новая площадь — 4 кв. м. Столешница под раковиной выполнена из такого же керамогранита, что и столешница в кухне. Под ней предусмотрено место для стиральной машинки. За вышивкой с бисером скрыт технический люк.

 📷
📷
 📷
📷

Сейчас читают:

Спасибо, что читаете нас! ❤️

Если материал был полезен — поставьте лайк и отправьте другу.

А ещё больше интерьерных идей, советы экспертов и классные румтуры в нашем Telegram-канале. Подписывайтесь, вам точно понравится!