Найти в Дзене
Строим с ЭДом

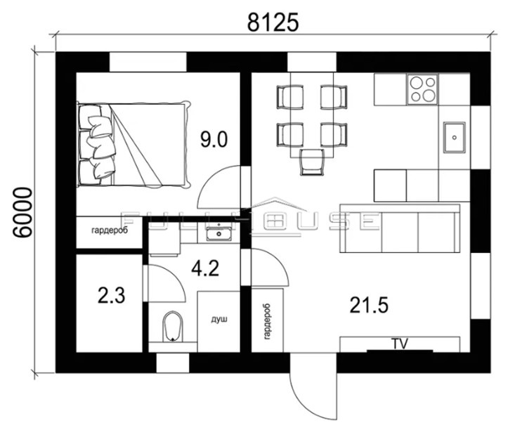
ПРОЕКТ FH-37 UNICA (37М²)

В последнее время появилось понятие дома с приставкой «мини», которую применяют к индивидуальным домам площадью менее 40 м2. Для частного дома это, может, и мало, но вполне достаточно для проживания одного или двух человек. Такая площадь эквивалентна приличной однокомнатной квартире или хрущёвской «полуторке», но при грамотной планировке жильё получается намного более удобным. Отсюда и популярность проектов маленьких домов, которые можно вписать на участок любого размера, потратить на строительство относительно небольшие деньги, и экономить на отоплении, особенно когда вода добывается из автономного источника. Отличным решением для маленькой семьи будет приобретение проекта UNICA, по которому можно построить газобетонный дом с плоской крышей, площадью 37 м2. Казалось бы, площадь довольно маленькая, но на ней размещается вполне просторная гостиная-столовая-кухня, одна спальня с нишей под встроенный гардероб, и даже сауна, примыкающая к санитарному узлу. В небольшом санузле для помывки предусмотрена только душевая зона, но если хозяевам не нужна сауна, перегородку можно убрать, освободив место для ванны.

Единственное, чего нет в этом доме, так это привычной всем прихожей - холла. Но по большому счёту он особо и не нужен – главное, что рядом с входом предусмотрено место для установки гардеробного шкафа. Вынести грязную зону за пределы дома можно за счёт крыльца: если его остеклить и предусмотреть отопительный контур тёплого пола (в доме всё отопление обеспечивается за счёт водяных полов), туда можно установить обувные полки, поставить напольную вешалку для одежды. Крыльцо с плоской крышей, два типоразмера хозблоков автонавес и терраса – это перечень холодных модульных пристроек, предлагаемых отдельным проектом Unit, которые можно присоединить к дому. Они значительно повышают комфорт проживания, благодаря единому стилю проектирования дополняют и разнообразят экстерьер дома, расширяя его по горизонтали.

-2

В плане дом имеет размеры 6,0*8,125 м, кратные длине газобетонных блоков. При растровой длине изделия 625 мм, по короткому ряду можно уложить 9,5 блоков (половинки идут на перевязку швов), а по длинному – 13 штук. При длине блока 600 мм, наоборот: в короткий ряд укладывается 10 блоков, а в длинный – 13,5 штук. Соблюдение принципа растра помогает либо совсем обходиться без раскроя материала – не только кладочного, но и арматуры, кровельных покрытий, либо сделать так, чтобы отрезаемые куски были ликвидными, и их можно было использовать. Например, при стандартной длине арматуры 11,7 м для монтажа продольных поясов каркаса фундаментной плиты отрезаются стержни длиной 7,94 м, а оставшиеся куски длиной 3,76 м можно использовать при заливке плиты крыльца или армировании простенков. Поперечная же арматура режется пополам, что вообще не даёт никакого отхода. Все решения, принятые в проекте, направлены на то, чтобы реализовать его с наименьшими затратами. Это и недорогая плоская крыша, и бюджетная штукатурка для отделки фасада, и фундаментная плита с ростверком, которая одновременно является полом и цоколем, избавляющая строительный процесс от целого ряда дорогостоящих работ.