Добавить в корзинуПозвонить
Найти в Дзене
Записки старого прораба

Фундамент дома твоего. Сборный железобетон (ФБС). Реальная цена на август 2024 года

Доброго дня друзья и коллеги! Сегодня к нашему с Вами вниманию фундаменты из сборного железобетона. Мы с Вами рассмотрим все разделы по данному фундаменту. А именно: проект, необходимые материалы, производство работ, экономическую целесообразность и конечно реальную цену такого фундамента. Стоит сразу рассказать, что такой фундамент я реально построил в августе 2024 года. Информация абсолютно достоверная, но есть маленькое «НО». Этот фундамент не совсем под частный дом, а под административное здание в геометрических размерах 16,500 на 28,080 метров в осях. У некоторых наших заказчиков дома больше. А вот понять реальный порядок цен по всем данным вполне возможно. Еще рассмотрим вопрос по срокам производства работ. А сейчас, учитывая, что пишу я эту статью 1 сентября, несколько анекдотов в тему Дня знаний: Первоклассник с большим портфелем идет первый раз в первый класс. Проходя мимо детского садика, останавливается возле забора и тяжело вздохнув, говорит: - Зашел бы, да образование не п
Оглавление

Доброго дня друзья и коллеги! Сегодня к нашему с Вами вниманию фундаменты из сборного железобетона. Мы с Вами рассмотрим все разделы по данному фундаменту. А именно: проект, необходимые материалы, производство работ, экономическую целесообразность и конечно реальную цену такого фундамента.

Железобетонный сборный фундамент.
Железобетонный сборный фундамент.

Стоит сразу рассказать, что такой фундамент я реально построил в августе 2024 года. Информация абсолютно достоверная, но есть маленькое «НО». Этот фундамент не совсем под частный дом, а под административное здание в геометрических размерах 16,500 на 28,080 метров в осях. У некоторых наших заказчиков дома больше. А вот понять реальный порядок цен по всем данным вполне возможно.

Еще рассмотрим вопрос по срокам производства работ. А сейчас, учитывая, что пишу я эту статью 1 сентября, несколько анекдотов в тему Дня знаний:

Первоклассник с большим портфелем идет первый раз в первый класс. Проходя мимо детского садика, останавливается возле забора и тяжело вздохнув, говорит:
- Зашел бы, да образование не позволяет…

И еще:

1 класс. Учительница:
- Итак, дети, отложили все свои смартфоны-телефоны, хватит переписываться, сегодня нам нужно выучить букву "А".

Еще один, понравился очень:

Разговор двух первоклашек на перемене. Она - ему:
- А давай мы с тобой будем как будто муж и жена.
- Ничего не получится, - горестно вздыхает он. - Мне тебя содержать не на что. Мама мне деньги на завтрак забыла дать.

Пора возвращаться к теме.

Вводная часть.

Строили мы этот фундамент в составе строительной организации и соответственно цену можно условно рассматривать, как если бы Вы заказали эту работу у юридического лица. А значит все остальные варианты: у индивидуального предпринимателя, частной бригады или самостоятельно выполняя работы – цена будет ниже. И здесь есть исключения, но об этом чуть позже.

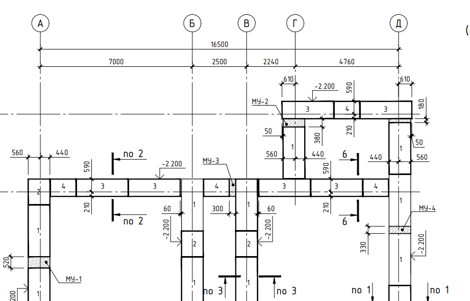
Часть плана фундамента
Часть плана фундамента

Важно еще уточнить, что строили мы под надзором государственных контролирующих лиц, а соответственно все «как по учебнику». В том числе с приглашением лаборатории и геодезической службы.

И последняя вводная. Данное административное здание будет в составе достаточно большого современного завода.

Проект.

Размеры в плане я Вам уже дал. Далее смотрите на разрез по фундаменту.

Разрез фундамента.
Разрез фундамента.

На что стоит обратить внимание. Отметка низа – 2.200 от нуля здания. За ноль принимается чистый пол в помещениях. Чистый – не значит, что его вымыли. Это условное понятие по верху пола с отделкой любым материалом.

Еще из важного, опорная подушка должна находиться ниже глубины промерзания грунтов. Для московского региона это от 157 см до 193 в разных районах. Эти данные можно посмотреть в справочниках или на картах.

Необходимые материалы и механизмы.

Даю просто перечень. Обычно все основные материалы есть в спецификации, но и самостоятельно начертив можно просчитать. А Вы еще можете посмотреть в смете, которую Вам предоставит подрядчик. «Проверить не мешает!»

Материалы: песок речной или мытый, блоки ФЛ, блоки ФБС, цемент, арматура, битумная мастика и расходные материалы. «Расходники»: отрезные диски, электроды, лопаты, валики, бадья и.т.д.

Механизация: механическая трамбовка весом от 80 кг, растворомешалка, погрузчик-экскаватор, кран.

С механизацией все понятно кроме крана. Какой выбрать? На эту тему у меня есть статья, ссылка будет внизу.

Таблица вылета стрелы и грузоподъемности.
Таблица вылета стрелы и грузоподъемности.

Производство работ.

Затраты которые не вошли в смету. Геодезия для разбивки осей, привязки на местности и выноски репера. Это высотная отметка, к ней в дальнейшем будут привязаны все отметки здания. Вся эта работа нам обошлась в 10 000 рублей.

Раз уж зашел разговор про дополнительные затраты, то стоит еще отметить расходы на строительную лабораторию – 15 000 рублей.

Котлован, траншейного типа нам готовила специализированная организация. Запросили они за эту работу 150 000 рублей. Грунт мы не вывозили, да и Вам не советую. Лучше разместить его по всей площади участка, с первичной организацией рельефа.

Этапы.

- Ручная доработка грунта. При работе экскаватора от его зубцов остается разрыхленный слой, который необходимо снять и убрать в зону вне фундамента. Ни в коем случае не старайтесь его утрамбовать. Поверьте на слово получиться плохо.

- Устройство песчаного основания. В нашем случае это 150 мм. Этот слой необходимо трамбовать и после этого предоставить строительной лаборатории. По заключению от нее, начинаем укладывать подушки (ФЛ). Плотность песка должна быть не менее 0,95.

- Начинаем монтаж. Про кран я уже писал. Самая простая операция укладка ФЛ. По осям выставляем блоки на место по раскладке и загибаем или срезаем монтажные петли.

- Монолитные участки. Как бы мы не старались, разложить ФЛ точно по нашим размерам не получается. Их размеры унифицированы – 2,4 метра, 1,2 и 0,9. Это по длине, по ширине чаще всего применяются по типоразмерам 800 мм и 1000 мм. на чертеже покажу. Приходиться делать монолитные участки. Они небольшие, но повозится приходиться…

Монолитные участки.
Монолитные участки.

Слишком большой объем для восприятия. ПРОДОЛЖИМ ЗАВТРА…

А завтра мы рассмотрим: продолжение этапов производства работ, экономическую целесообразность, сроки производства работ, реальная цена такого фундамента, вывод.

Пожалуйста, подпишитесь на мой канал и поставьте лайки. А я пойму насколько мой труд важен.

Обещанная статья про кран:

Автомобильный кран на строительной площадке.

Удачи в строительстве и ремонте!