Добавить в корзинуПозвонить
Найти в Дзене
Agrcompany

Дымоходы и вентиляционные каналы строительство.

Для проектирования и монтажа дымоходов и вентиляционных каналов в жилых домах рекомендуется обратиться к специалистам, таким как "Городской центр дымоудаления"  Дымоходы могут быть коренными, стеновыми или подвесными. По типу используемых труб дымоходы бывают однослойными металлическими, состоящими из сэндвич-труб, керамическими, асбоцементными или коаксиальными. При строительстве дымохода важным нюансом является его утепление во избежание промерзания трубы и возникновения конденсата.  Вентиляционные каналы могут быть естественными, механическими или смешанными. Для обустройства вентиляционных каналов применяются стальные, асбестоцементные и пластиковые трубы различного диаметра. Вентиляционные трубы должны выступать над крышей на определённую высоту, зависящую от их места расположения.  Требования к вентиляционным каналам: Проверка дымоходов и вентиляционных каналов — это важный аспект обеспечения безопасности и комфорта в жилых и коммерческих зданиях. Эти структуры играют решающую
Оглавление

Для проектирования и монтажа дымоходов и вентиляционных каналов в жилых домах рекомендуется обратиться к специалистам, таким как "Городской центр дымоудаления" 

требования к оборудованию топочных
требования к оборудованию топочных

Дымоходы могут быть коренными, стеновыми или подвесными. По типу используемых труб дымоходы бывают однослойными металлическими, состоящими из сэндвич-труб, керамическими, асбоцементными или коаксиальными. При строительстве дымохода важным нюансом является его утепление во избежание промерзания трубы и возникновения конденсата. 

Вентиляционные каналы могут быть естественными, механическими или смешанными. Для обустройства вентиляционных каналов применяются стальные, асбестоцементные и пластиковые трубы различного диаметра. Вентиляционные трубы должны выступать над крышей на определённую высоту, зависящую от их места расположения. 

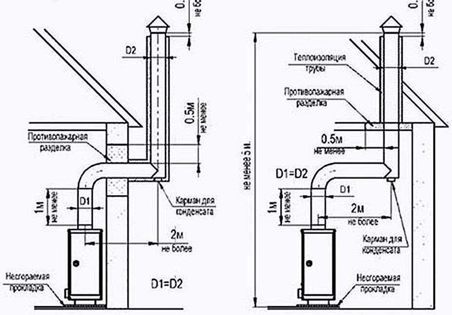
размещение дымоходов
размещение дымоходов

Требования к вентиляционным каналам:

  • Отверстия для отработанного воздуха выполняют на высоте 5–10 см от потолка, так как по законам физики нагретые газы поднимаются вверх. 
  • Главный воздуховод монтируют строго вертикально. 
  • Запрещена кладка вентиляционной шахты вместе с дымоходом — их обустраивают по отдельности, но параллельно друг другу. 
  • Оба канала следует регулярно чистить, чтобы не затруднялась циркуляция воздушных масс.
  • Необходимо предусмотреть не более 3-х поворотов под 90 градусов.
  • Не допускаются горизонтальные участки более 3-х метров.
  • Вентканал должен быть выше зоны ветрового подпора.

Проверка дымоходов и вентиляционных каналов — это важный аспект обеспечения безопасности и комфорта в жилых и коммерческих зданиях.

Эти структуры играют решающую роль в обеспечении циркуляции воздуха, устранении вредных газов и обеспечении безопасности в помещении.

Процесс проверки включает в себя несколько ключевых шагов:

  1. Визуальная оценка. Общий осмотр дымохода или вентиляционного канала, чтобы проверить на наличие видимых повреждений или признаков износа, таких как трещины, коррозия, утечки или засоры. 
  2. Тестирование функциональности. Проверка работоспособности дымохода или вентиляционного канала. Это может включать в себя проверку на просвет, тестирование скорости воздуха, а также другие специфические тесты, в зависимости от типа системы. 
  3. Использование специализированного оборудования. В некоторых случаях может потребоваться использование специализированного оборудования для более детального осмотра и тестирования. Это может включать в себя камеры для внутреннего осмотра, датчики газа и другие приборы. 
  4. Оценка результатов и рекомендации. После проведения проверки результаты оцениваются, и на их основе выдаются рекомендации по дальнейшему обслуживанию или ремонту. Если обнаружены серьёзные проблемы, может потребоваться немедленное вмешательство. Если система в хорошем состоянии, выдается Акт обследования дымоходов и вентиляционных каналов, компанией имеющей лицензию.
-3

Регулярная проверка и очистка дымоходов и вентиляционных каналов — это в первую очередь Ваша безопасность, не пренебрегайте данным правилом!

Сайт: https://akt-vdpo.su/

Печи
176,1 тыс интересуются