Найти в Дзене
INMYROOM

Стильная квартира с удобной планировкой и камином на лоджии

Оглавление

Вкратце

Дизайнер Юлия Помазнюк оформила просторную квартиру в современном стиле для молодой семьи. Заказчики хотели просторный неперегруженный интерьер с природными мотивами. В отделке использовали максимально натуральные материалы: дерево, рельефную штукатурку, паркетную доску. Тему природы поддержали в озеленении. Фишка проекта — камин с живым огнем на лоджии. Огонь — это ведь тоже природная стихия, и смотреть на него, как известно, можно бесконечно.

 📷
📷

Подробности

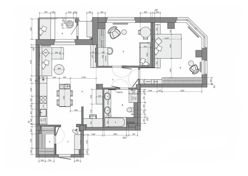
Перепланировка от застройщика устраивала заказчиков. Необходимо было организовать рабочее место для супруга. Для этого в кухне-гостиной возвели глухую перегородку и обособили зону в углу, стену обыграли рейками. Рабочую зону оформили в глубоком синем цвете. На фоне остального светлого интерьера синий стал эффектным контрастом.

 📷
📷

 📷
📷

Кухню делали на заказ. Бытовая техника встроена в пеналы. Холодильник, СВЧ и духовой шкаф разнесены по разным сторонам для симметрии гарнитура. Внизу — посудомоечная машина возле раковины, наверху — сушилка для посуды и хранение.

Рабочая поверхность кухни сделана из кварцевого агломерата, она эксплуатируемая. Для столешницы барной стойки выбрали светлый акриловый камень. Эта столешница не эксплуатируемая, она выполняет функцию обеденного стола.

 📷
📷

 📷
📷

Интересное решение — барная стойка с парящим основанием. Ее обособили от прихожей при помощи реек. «Это был самый сложный элемент в реализации. Необходимо было закрепить рейки так, чтобы конструкция не потеряла легкости и не развалилась при эксплуатации. Было решено использовать в качестве опоры стекло в несколько слоев. Так родился надежный конструктив, раскрывающий идею проекта», — рассказывает дизайнер.

 📷
📷

 📷
📷

Когда выбирали материалы для отделки, на первом месте стояли практичность и экологичность. Поэтому на стенах использовали моющуюся краску, в уязвимых местах на полу положили керамогранит. Вместо ламината выбор был в пользу паркетной доски.

 📷
📷

 📷
📷

Заказчики любят творчество Сальвадора Дали. Портрет художника в рабочей зоне напоминает о пристрастиях к творчеству. Картину «Дали» написала Елизавета Федорова.

 📷
📷

«Экономию не планировали, но, листая каталоги мебельных образцов, случайно увидели подходящий синий цвет ЛДСП для синего шкафа в рабочей зоне. Звезды сошлись. Решили делать из него. К шкафу подбирали цвет краски для всей рабочей зоны. Такой же шкаф из МДФ для заказчиков вышел бы в три раза дороже», — делится дизайнер.

 📷
📷

 📷
📷

 📷
📷

Характер пространству придали за счет пластичности в деталях: рейки в отделке, молдинги с ритмом на стенах, фасады кухни разной толщины. В санузле тему пластичности поддержали керамической плиткой с рельефом.

 📷
📷

 📷
📷

Картина на балконе подошла по цветовому решению и теме, ее пластичный рельеф поддерживает общую идею интерьера.

В спальне организовали большой шкаф для одежды. В шкафу отсеки поделены на мужскую и женскую половины. Есть выдвижные ящики для белья, носков, отсеки для одежды на плечиках. В женской части предусмотрели отсек для длинной одежды. На фасадах шкафа интегрированные ручки — они смотрятся современно и безопасны, потому что у них нет выступающих частей.

На стенах — краска, частично деревянные рейки. На полу — керамогранит 1200 мм*200 мм. Чтобы раскладка керамогранита не была монотонной и скучной, его распилили пополам и уложили с определенным ритмом. Уже при входе в квартиру отделка намекает на интересные решения и появляется завязка с молдингами на стенах, также расположенными с определенным ритмом.

В квартире два санузла. При входе в квартиру небольшой санузел отвели под гардероб. Так из прихожей стало очень удобно сразу попадать в гардероб. Во втором санузле организовали ванну с душем, две раковины с большой зоной хранения и хозяйственный блок со стиральной и сушильной машинками.

Больше фото тут:

Стильная квартира с удобной планировкой и камином на лоджии