Найти в Дзене
ГидроПрепод

Первый аэродинамический комплекс NASA, часть 1.

День добрый! Сегодня поговорим о истории аэродинамики, исследовательских лабораториях и NASA одновременно. Разберем первую часть исторического центра NASA в Кливленде. Это место является одним из первых крупных узлов ракетно-космической программы США и был построен уже в период Второй мировой войны для исследования аэродинамики летательных аппаратов и испытаний авиадвигателей. Полное наименование этого места - National Aeronautics and Space Administration (NASA) John H. Glenn Research Center at Lewis Field. Сейчас это место разрослось в сравнении с 1950-ми годам, а тот комплекс, который Я с Вами сейчас буду разбирать, уже разобран и снесен, чтобы освободить место новых корпусам. Разбор Я решил разбить на 2 части, в первой разбираем устройство комплекса аэродинамики в целом, а во второй части - отдельные узлы и фотографии с моими комментариями. Поехали. Часть 1. Интересующая Нас часть комплекса это первая из крупных лабораторий аэродинамики NASA. Она была построена ещё в 1944-1945 года

День добрый! Сегодня поговорим о истории аэродинамики, исследовательских лабораториях и NASA одновременно. Разберем первую часть исторического центра NASA в Кливленде. Это место является одним из первых крупных узлов ракетно-космической программы США и был построен уже в период Второй мировой войны для исследования аэродинамики летательных аппаратов и испытаний авиадвигателей. Полное наименование этого места - National Aeronautics and Space Administration (NASA) John H. Glenn Research Center at Lewis Field. Сейчас это место разрослось в сравнении с 1950-ми годам, а тот комплекс, который Я с Вами сейчас буду разбирать, уже разобран и снесен, чтобы освободить место новых корпусам. Разбор Я решил разбить на 2 части, в первой разбираем устройство комплекса аэродинамики в целом, а во второй части - отдельные узлы и фотографии с моими комментариями.

Поехали. Часть 1.

Интересующая Нас часть комплекса это первая из крупных лабораторий аэродинамики NASA. Она была построена ещё в 1944-1945 годах в разгар войны. Цель комплекса - изучение аэродинамики летательных аппаратов в двух видах условий - первый, с имитацией движения на разных высотах. В дословном переводе Altitude Wind Tunnel (AWT) - "высотная аэродинамическая труба". В ней ученые и инженеры выполняли моделирование движения самолетов с учетом изменения характеристик атмосферного воздуха при подъёме аппарата - изменение плотности и температуры воздуха, а также учет очень важного и отвратительного свойства полета - обледенения корпуса летательного аппарата. Последнее свойство - особенно сложно в техническом плане, требуется различное оборудование и рефрижераторные (охладительные) системы для поддержания заданных параметров среды. Второй вид условий - выполнение первых аэродинамических исследований в области сверхзвукового обтекания летательных аппаратов. Дополнительно к зданиям с аэродинамическими трубами примыкала исследовательская часть Icing Tunnel - труба в которой моделируется процесс обледеневая обшивки летательных аппаратов.

Фотография 1944 года, источник NASA.
Фотография 1944 года, источник NASA.

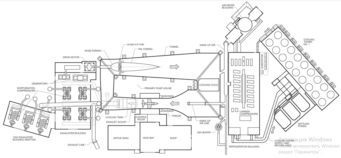
Начнем разбор блоков исследовательского центра - №1 - Icing Tunnel - туннель в котором моделируется процесс обледеневая, та часть, которая в отличии от основной аэродинамической трубы продолжает существовать до сих пор. №2 - AWT - высотная аэродинамическая труба. №3 - рефрижераторная, позволяющая охлаждать подаваемый в исследовательские модули воздух. №4 - воздуходувно-компрессорный комплекс. В него входило практически все компрессорное хозяйство, там стояли компрессоры для работы всех систем и вакуумные насосы для создания условий разрежения в высотной трубе, это необходимо для имитации движения на различных высотах. №5 - градирня для сброса в окружающую среду избытков тепла от работы агрегатов. №6 - ADB - станция осушения воздуха, в ней также проводилась его очистка и в последствии подача на компрессорные мощности комплекса. Остальные здания - административные.

Подробно посмотреть принцип работы станции можно на фото внизу, там указаны все основные элементы.

Источник NASA.
Источник NASA.

Аэродинамическая труба станции выполнена круглого поперечного сечения по классической кольцевой схеме. Для моделирования перепадов давления весь объект выполнен герметичным. Воздух приводится в движение осевым вентиляторов и начинает циркулировать по контуру трубы. После вентилятора поток делает два поворота, на которых установлены направляющие пластины, выравнивающие поток и спрямляющие винтовое движение потока воздуха после разгона вентилятором. После первого поворота расположена система охлаждения для симуляции снижения температуры на большой высоте. Дальше второй поворот и конфузор (плавное сужение трубы), направляющий поток на исследуемую модель. Прямо за моделью расположен патрубок вакуум системы, создающей разрежение в трубе и через 2 поворота с выпрямителями воздух возвращается на вентилятор.

Источник NASA.
Источник NASA.

Control Room - это комплекс помещений, в котором выполнялась установка частей фюзеляжа и куда были заведены датчики для снятия показаний. От них информация подавалась непосредственно в комнату управления -

Комната управления измерениями, источник NASA.
Комната управления измерениями, источник NASA.

Кроме основной аэродинамической трубы в испытательный комплекс входило несколько сверхзвуковых стендов. Один маленький стенд был установлен в подземных коридорах между офисным зданием и высотной трубой, он имел размеры 10см на 25 сантиметров и был необходим для испытания малых макетов.

Самый маленький стенд для сверхзвуковых исследований, источник NASA.
Самый маленький стенд для сверхзвуковых исследований, источник NASA.

Для испытания средних, но все равно не полноразмерных объектов летательных аппаратов и ракет на сверхзвуковых скоростях в 1946 году был построен комплекс из трёх аэродинамических труб. По открытым данным известно, что верхняя труба имела диаметр 45 сантиметров, средняя труба имела размеры 60х60 сантиметров. По исследуемым скоростям есть информация что 45-я труба позволяла выполнять исследования до скоростей потока в 3,05 Маха.

Последняя в этой статье - это воздуходувно-компрессорная часть. Она состояла из двух частей. Первая и основная - тут находился привод основного осевого вентилятора аэродинамической трубы. Вся остальная (она же большая часть) отводилась под 14 воздуходувок, обеспечивавших разрежение в основной трубе.

Первый проект станции подачи воздуха 1942 года, источник NASA.
Первый проект станции подачи воздуха 1942 года, источник NASA.

На этом моменте мы завершаем основную часть об этой аэродинамической трубе и в следующей статье Мы посмотрим ряд интересных фотографий этой исследовательской станции с моими комментариями на эту тему.

Если хотите разбираться в аэродинамике, то посмотрите на наши прекрасные учебные курсы на сайте учебного центра: http://hydreducation.tilda.ws/.

Заходите в Наш Telegram-канал t.me/HYDReducation, тут дублируются все статьи канала и есть дополнительные бонусы.

ЧАСТЬ №2. Интересные фотографии комплекса.

Статья о Патроне Федорова.

Статья о Испытании трофейных снарядов.

Наука
7 млн интересуются