Найти в Дзене
SALON-interior

Современный интерьер с акцентом на искусство

Оглавление

Для семьи с двумя маленькими детьми дизайнер Ирина Орехова создала интерьер, главной декоративной темой которого стала живопись. Интерьер украшают картины, написанные самой хозяйкой, а также работы современных российских художников.

Заказчики и задачи

Хозяева – семейная пара с двумя детьми дошкольного возраста. Молодая мама увлекается живописью, ее страсть – портреты. Супруг любит читать. Поэтому дизайнеру Ирине Ореховой нужно было предусмотреть места для хранения книг. Их основным пожеланием были светлые стены, яркие акценты, максимум воздуха, света и простора.

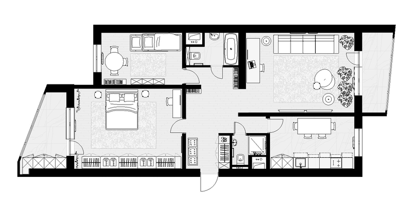
Перепланировка

Большая площадь квартиры позволила организовать пространство в соответствии с нуждами семьи. Здесь появились просторная общая гостиная для общения и активных игр детей, две спальни (хозяйская и детская), два санузла (один с ванной, второй с душевой кабиной), рабочее место для работы за ноутбуком в гостиной и мини-мастерская.

«Место для занятий живописью мы оборудовали на одной из предварительно утепленных лоджий, – продолжает Ирина. – Это решило несколько задач. Дало, во-первых, дало хорошую естественную освещенность при работе. Во-вторых, позволило избежать резких запахов в квартире. Масляная краска и растворители имеют специфический запах и для работы с ними должно быть отдельное, хорошо проветриваемое помещение. Кроме того, на лоджиях появились дополнительные места для хранения. Таким образом, комнаты не перегружены мебелью. Так, в гостиной мы отказались от каких-либо шкафов в пользу воздуха и ощущения пространства. Из мебели – только диван и большой стол для экспозиции живописи, декора и книг».

План квартиры
План квартиры

Концепция

Любовь заказчиков к лаконичному стилю дизайнер выразила посредством современных материалов (паркетная доска с раскладкой «вразбежку», керамогранит больших размеров), и современной мебели таких фабрик как BoConcept, Kartell, Javorina.

Чтобы квартира казалось цельной, автор использовала два вида напольных покрытий: паркетную доску Coswick и крупногабаритный керамогранит под мрамор из коллекции Marmi фабрики FMG MaxFine. Дизайнер поиграла с размером плитки и фактурой. Стены и фартук кухни отделали матовым керамогранитом большого формата 1500х300 см, на пол положили более мелкую плитку (750х750 см) и тоже матовую. В ванной комнате применили средний формат – керамогранит 1000х1000 см, но уже с глянцевой поверхностью. С крупной плиткой помещение всегда кажется больше, а контраст фактур создает дополнительный эффект.

Главным декором стали картины. В гостиной – это масштабная работа Ольги Буевой, картины молодых художников-абстракционистов, в спальне – работы самой хозяйки. «Так картин много и они часто меняются, заказчица решила, что экспонировать их на отдельной стене в гостиной не имеет смысла, – отмечает Ирина. – Для них мы предусмотрели консоль рядом с кроватью. Когда картины стоят, композицию менять намного проще».

Палитра

Цветовая гамма построена на сочетании теплого песочного цвета (пол), темных оттенков бирюзового (акцентные стены), нейтрального белого (стены, потолок) и вкраплений графичного черного (мебель).

«Поверхности стены и потолка мы сделали одного цвета, что позволило избежать резкой границы и придало комнатам воздуха, – отмечает дизайнер. – Темная стена в главной спальне настраивает на отдых, а в детской создает ощущение уюта».

Освещение

Главная задача, стоящая перед автором проекта – визуально поднять невысокие потолки 2,5 метра. Проблему дизайнер решила при помощи освещения потолка торшерами и накладными светильниками, подсвечивающими поверхности снизу вверх. «Освещение мы разрабатывали совместно со светодизайнером Сергеем Сизым, основателем и руководителем школы светодизайна LiDS, – замечает Ирина. – В гостиной сделали специальную подсветку для самой масштабной художественной работы в доме – абстрактной картины Ольги Буевой. На кухне где нет верхних шкафов, была непростая задача подсветки рабочей поверхности. Светильники, расположенные сверху, давали бы тень. Поэтому рабочую зону мы подсветили отраженным светом, направленным на кухонный фартук четырьмя потолочными светильниками».

Проекты архитекторов и дизайнеров, интерьеры знаменитостей, обзоры новинок мировых брендов — на нашем канале! Подписывайтесь: https://zen.yandex.ru/salon.ru

Какие западные дизайн-приемы актуальны для российских интерьеров: 5 мнений профи

Практика зарубежных дизайнеров порой вдохновляет или подсказывает эффектные решения в дизайне российских интерьеров. Мы попросили 5 профессионалов поделиться лучшими приемами, о которых они узнали из западных проектов.

Что ценят женщины в интерьере: 5 историй дизайнеров

Удобная гардеробная, уникальный каминный портал, французские фрески и другие авторские дизайн-решения, которые выбирают заказчицы.

Какие эмоции вызвал у вас этот интерьер? Понравились ли решения по размещению искусства?