Найти в Дзене
INMYROOM

До и после: бюджетный ремонт кухни в сталинке

Оглавление

Решения, которые легко повторить и в вашем интерьере

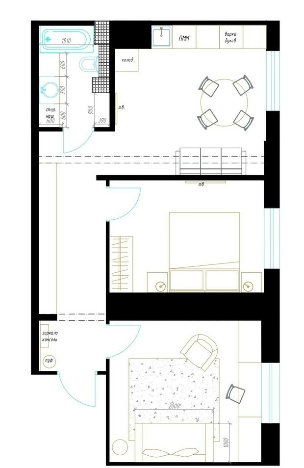
Когда речь заходит о сталинках, то многие вспоминают об их уникальной архитектуре и высоких потолках. Однако любому пространству требуется обновление, чтобы оно отвечало современным требованиям комфорта и стиля. Показываем, как дизайнеры Олеся Цапкина и Мария Науменко преобразили типовую сталинскую кухню в двухкомнатной квартире.

Румтур этой квартиры (18 минут)

 📷
📷

До ремонта кухня выглядела как типичная представительница «нулевых»: на полу лежал линолеум, стены украшали обои с агрессивным темным принтом, стандартный гарнитур смотрелся куце и безлико. Коммуникации находились на виду, а одинокая лампа в центре придавала помещению унылый вид.

-3
-4

В ходе перепланировки часть бывшей гостиной забрали, чтобы расширить кухню и предусмотреть место для дивана. Для стен выбрали светлую моющуюся краску, на пол уложили ламинат с теплой текстурой дерева, подоконники заменили на деревянные. Высокими потолочными и напольными плинтусами подчеркнули уникальную архитектуру сталинских квартир.

 📷
📷

Кухонный линейный гарнитур собран из готовых модулей, что позволило сократить время на ремонт и снизить бюджет. Светло-серые фасады стали универсальным решением — они гармонично вписываются в любой стиль, добавляя интерьеру легкости и воздушности. Столешница из ЛДСП органично перекликается с деревянным подоконником и ламинатом. Геометричная плитка на фартуке привнесла интересный визуальный акцент и стала ярким элементом дизайна.

 📷
📷

Важно отметить, что весь кухонный гарнитур без техники обошелся всего в 56 тыс. рублей, что является весьма привлекательной ценой для такого уровня комфорта и стиля. Холодильник был выбран отдельно стоящий — это позволило разместить его более функционально, не загромождая пространство.

 📷
📷

Главным акцентом в интерьере стала люстра над обеденным столом — она привнесла нотку стиля и элегантности и помогла создать уютное мягкое освещение. Стулья в мягкой обивке и плитка на фартуке прекрасно дополняют люстру, создавая эффектный контраст и подчеркивая индивидуальность нового интерьера.

 📷
📷

Обновленная кухня стала воплощением функциональности, стиля и удобства. Удачная перепланировка, гармоничное сочетание материалов и продуманный выбор мебели создали пространство, которое отвечает современным требованиям и сохраняет атмосферу сталинской архитектуры. Теперь это не просто место для готовки, а уютная кухня-гостиная, где можно собираться с семьей и приятно проводить время с друзьями.

Сейчас читают: