Найти в Дзене
AMS³

Преимущества работы с Revit-шаблоном. Часть №1. Общие настройки

Что такое Шаблон и для чего он нужен? Шаблон в Revit (далее Шаблон) — это файл (.rte) с настроенной под конкретные задачи рабочей средой. На основе Шаблона создается новый файл проекта (.rvt).
В статье рассмотрен Шаблон для проектирования интерьеров из курса “Revit для дизайнеров интерьера”, в котором каждая функция Revit настроена под интерьерное проектирование, и собран накопленный годами материал: Задача Шаблона – упростить и стандартизировать процесс проектирования; автоматизировать рутинные операции. Мы покажем из каких частей состоит и как настраивается пользовательский шаблон.
Любое проектирование начинается с создания файла проекта, а каждый новый файл проекта создается по Шаблону. Если у вас пока нет своего Шаблона, можно использовать “Архитектурный”, и адаптировать его под ваши задачи.
Чтобы создать файл проекта на основе Шаблона «Архитектурный», открываем стартовое окно программы, нажимаем «Создать» в окне «Новый проект». Через кнопку «Обзор» или из списка выбираем шаблон
Оглавление

Что такое Шаблон и для чего он нужен?

Шаблон в Revit (далее Шаблон) — это файл (.rte) с настроенной под конкретные задачи рабочей средой. На основе Шаблона создается новый файл проекта (.rvt).

В статье рассмотрен Шаблон для проектирования интерьеров из курса “
Revit для дизайнеров интерьера”, в котором каждая функция Revit настроена под интерьерное проектирование, и собран накопленный годами материал:

  • семейства;
  • шаблоны видов;
  • диспетчер проекта;
  • листы с компоновкой;
  • ведомости, спецификации и экспликации;
  • стадии и фильтры;
  • и многое другое.

Задача Шаблона – упростить и стандартизировать процесс проектирования; автоматизировать рутинные операции. Мы покажем из каких частей состоит и как настраивается пользовательский шаблон.

Любое проектирование начинается с создания файла проекта, а каждый новый файл проекта создается по Шаблону. Если у вас пока нет своего Шаблона, можно использовать “Архитектурный”, и адаптировать его под ваши задачи.

Чтобы создать файл проекта на основе Шаблона «Архитектурный», открываем стартовое окно программы, нажимаем «Создать» в окне «Новый проект». Через кнопку «Обзор» или из списка выбираем шаблон и нажимаем Ок.

-2

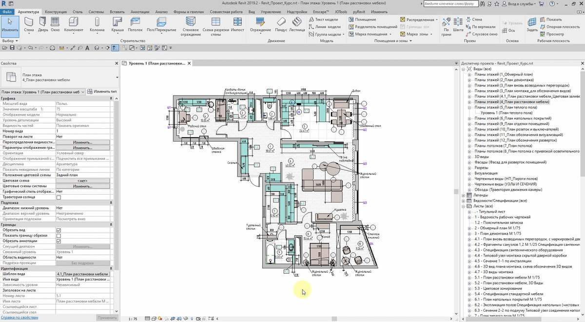
Организация структуры диспетчера проекта

Видимость панелей диспетчера проекта можно включить так:

Вкладка Вид – Интерфейс пользователя

-3

Понять, для чего нужен диспетчер проекта, проще всего на примере. Если вы занимаетесь проектированием квартир, то в вашем Шаблоне должны быть созданы все виды типовых планов этажа (квартиры) и планов потолков, которые вы чаще используете. Управление этими видами ведется через диспетчер проекта. В диспетчере вы настраиваете структуру проекта (сортировку, группировку, скрытие/отображение, именование, удаление и добавление видов).

Настроив диспетчер в Шаблоне, вам не придется тратить время на создание видов и настройку структуры при создании нового файла. Необходимо лишь адаптировать то, что уже есть, под конкретный проект.

Допустим, вы используете в каждом проекте план с цветовым зонированием. В Шаблоне создаем дополнительный вид (
в ленте вкладка Вид – Виды в плане – План этажа…). Теперь при создании проекта на основе данного Шаблона уже не надо будет тратить время на данную операцию, вид с цветовым зонированием уже будет создан в файле проекта.

В диспетчере проекта можно организовать сортировку удобным для вас способом. Если выбрать орг. схему «Все», то виды планов этажей и потолков будут сортироваться по названию типоразмера вида.

-4
-5

В видео-уроке, который расположен ниже можно увидеть пример, как организовать структуру диспетчера проекта по необходимому вам параметру, например, по параметру Назначение вида.

Чертежные виды

Часто нас спрашивают: “Можно ли в Revit начертить какой-то узел линиями, как в AutoCAD?”
Да, для этого используют чертежные виды.
В Шаблоне возможно собрать множество чертежных видов.

Типовые узлы создаются аннотациями (аннотации – это линии, цветовые области, текст, размеры), которые не будут связаны с моделью.

Например, в проектах вы применяете типовую нишу для штор, один раз необходимо создать данный узел и загрузить в Шаблон, далее при создании нового проекта данный узел необходимо будет только корректировать. Заново создавать не надо.

-6

Легенды

Легенды используют для создания примечаний и условных обозначений на листах.
Вы сэкономите кучу времени, если в Шаблоне уже будут созданы примечания и условные обозначения для каждого листа под вашу задачу.

-7

Спецификации

В Шаблоне может быть настроено множество спецификаций, в которые будут автоматически извлекаться все необходимые параметры конструкций модели, начиная от площадей и объемов и заканчивая стоимостью и сроком эксплуатации материалов.

Пример. Вы создаете стену. Информация об этой стене автоматически заносится в готовую спецификацию, расположенную на нужном листе.

-8

Листы

В Шаблоне можно проделать все рутинные операции: создать множество листов, которые вы чаще используете в проектах; на листы вынести соответствующие виды планов этажей или потолков; разместить необходимые спецификации, примечания, условные обозначения.

А далее, когда вы будете создавать новый проект на основе такого Шаблона, задача сведется к моделированию уникальной геометрии, а проектная документация будет формироваться на автомате.

-9

Итак, мы разобрались, как можно организовать рабочую среду в Шаблоне. Теперь посмотрим, как это выглядит на практике.


В данном видео-уроке я покажу вам несколько примеров:

  • как создать типоразмер плана этажа и плана потолка;
  • как создать легенду;
  • как создать чертежный вид;
  • как создать спецификацию;
  • как создать дополнительный лист.

Стадии. Фильтр по стадиям

Стадии в Revit позволят показать модель на разных временных этапах проектирования (до реконструкции, после сноса и демонтажа, после возведения и т.д).

В программе Revit можно создать необходимое количество стадий.
Для проектирования интерьеров удобно использовать две стадии, которые могут называться «Существующая» и «Монтаж».

-10

В нашем примере стадию «Существующие» можно присвоить виду «Обмерный план».
К стадии «Монтаж» будут относиться ВСЕ остальные виды планов этажей и потолков.

-11

Если выбрана стадия «Существующие», то на данном виде будут видны только те элементы, которым применена данная стадия.

-12

И наоборот, если выбрана стадия «Монтаж», то на данном виде будут видны элементы, которым применена стадия возведения «Монтаж».

У каждого вида должен быть настроен фильтр по стадиям, их можно добавлять самостоятельно или использовать стандартные.
Управление – Стадии, вкладка Фильтры стадий

-13

При проектировании интерьеров используются три фильтра стадий:

  • Для «Обмерного плана» - Показать все;
  • Для «Плана демонтажа» - Показать предыдущую + снос;
  • Для всех остальных планов - Показать предыдущую + новую.

Фильтр по стадиям можно настроить в Шаблоне вида, если он применен.  Если Шаблон вида не применен, то настройка осуществляется в панели свойства.

-14

При создании новых видов планов этажей или потолков, им присваивается также стадия и фильтр по тем стадиям, что у последнего открытого вида.

Переопределение видимости и графики. Шаблоны видов, фильтры

Переопределять видимость и графику элементов в Revit можно несколькими способами.
Первый способ «ручной». Можно выделить один или несколько элементов, нажать правой кнопкой мыши – Переопределить графику на виде для элемента.

-15

Второй способ (если не применен шаблон вида) - переопределение видимости и графики в панели свойств. В строке переопределения видимости/графики, все настройки будут применены ТОЛЬКО К КОНКРЕТНОМУ ВИДУ, у которого они были созданы.

-16

Третий способ (рекомендуемый) – назначение виду шаблона вида.

Шаблон вида - это комплекс настроек видимости и графики элементов на конкретном виде, который можно применить к одному или нескольким видам.
В Шаблоне может быть создано множество шаблонов видов, например, для каждого типа плана этажа и потолка.

Создание/редактирование/удаление шаблона видов:
В ленте вкладка Вид – шаблоны видов – Управление шаблонами видов.

-17

Назначение шаблона вида.

-18

Шаблоны видов обеспечивают колоссальную экономию времени и единую стилистику проекта.

Во втором и третьем способах переопределения графики есть возможность настраивать переопределение по Фильтрам.

Фильтр — это правило, которое применяется к виду для переопределения видимости и графики элементов. Фильтры можно самостоятельно создавать/редактировать/удалять.

-19

В Шаблоне может быть создано множество фильтров, которые необходимы для конкретных задач.
Фильтры можно применять конкретному виду, если не применен никакой шаблон вида.
Фильтры можно настраивать в шаблоне вида.

-20

В данном видео уроке я покажу процесс создания шаблона вида. Разберемся, как создать и добавить в него фильтр, и как применить данный шаблон вида к новому виду плана этажа.

Аннотации

Аннотации – это инструменты оформления проектной документации (линии, текст, размеры и выноски). Так же при помощи аннотаций в Revit можно создать типовые узлы.

Для стандартизации ПД необходимо во всех проектах использовать идентичные аннотации. Следовательно, они также настраиваются в шаблоне.

-21

В Шаблоне должен быть создан набор типовых линий.
Стили линий можно создавать/редактировать/удалять.

В ленте вкладка Управление – Дополнительные параметры – Стили линий.

-22

Чтобы создать свой тип размерного стиля, достаточно выделить любой уже созданный размер, в панели свойства выбрать «Изменить тип» - Копировать (задать собственное имя и далее настроить размерный стиль.

-23

Текстовый стиль настраивается так: Аннотации – Текст, выбираем текст с выноской или без выноски, далее в панели свойства выбираем Изменить тип - Копировать (задаем собственное имя) и корректируем необходимые параметры.

-24

Чтобы создать цветовую область, идем Аннотации – Область - Цветовая область, и автоматически открывается эскиз цветовой области.

-25

Для завершения создания эскиза цветовой области необходимо нажать на зеленую галочку в ленте – Выход из режима редактирования.

-26

Если нужно создать собственный типоразмер цветовой области, в панели свойства выбираем Изменить тип - Копировать (задаем собственное имя) и корректируем необходимые параметры.

-27

Мы рассмотрели первую часть аспектов настройки Шаблона. Применив такой Шаблон к новому файлу проекта, вам больше не придется настраивать диспетчер проекта, виды, шаблоны видов, стадии и фильтры. Не нужно создавать легенды, спецификации, листы и типовые узлы. Все ваши проекты будут иметь единый стиль графической подачи и оформления. Это существенно экономит ваше время, нервы и трудозатраты.

В следующей части статьи мы рассмотрим, как можно наполнить свой Revit-шаблон типоразмерами системных и загружаемых семейств.