Добавить в корзинуПозвонить
Найти в Дзене
ИДЕИ ВАШЕГО ДОМА

4 потрясающих примера дизайна студии площадью 25 кв. м

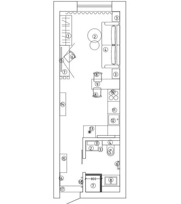
Мини-лофт, кровать-трансформер и рабочее место на лоджии — разбираем на примере дизайнерских проектов, как можно красиво и функционально оформить небольшую студию 25 кв м. Начнем с проекта студии для мужчины — для проживания в одиночку студия такого метража подходит идеально. Однако даже в этом случае нужно рационально использовать пространство и вместить все необходимое, не жертвуя при этом эстетикой. В этом проекте дизайнеру предстояло работать с длинным «вагоном» без балкона. В итоге сделали небольшую перепланировку: убрали стену между прихожей и комнатой и сдвинули перегородку ванной (прим. редакции — любые изменения мокрых зон требуют согласования). В итоге входная группа плавно перетекает в жилую часть квартиры, сохраняя единство дизайна. В целом интерьер получился минималистичным, в холодной гамме — в основе сочетание оттенков серого и фиолетовых акцентов. Единственная комната включает в себя кухонный уголок с барной стойкой; гостиную с диваном, который также является спальным м
Оглавление

Мини-лофт, кровать-трансформер и рабочее место на лоджии — разбираем на примере дизайнерских проектов, как можно красиво и функционально оформить небольшую студию 25 кв м.

Instagram @kalistova.interior
Instagram @kalistova.interior

1. Интерьер в серо-фиолетовых тонах

Начнем с проекта студии для мужчины — для проживания в одиночку студия такого метража подходит идеально. Однако даже в этом случае нужно рационально использовать пространство и вместить все необходимое, не жертвуя при этом эстетикой. В этом проекте дизайнеру предстояло работать с длинным «вагоном» без балкона. В итоге сделали небольшую перепланировку: убрали стену между прихожей и комнатой и сдвинули перегородку ванной (прим. редакции — любые изменения мокрых зон требуют согласования).

В итоге входная группа плавно перетекает в жилую часть квартиры, сохраняя единство дизайна. В целом интерьер получился минималистичным, в холодной гамме — в основе сочетание оттенков серого и фиолетовых акцентов.

Единственная комната включает в себя кухонный уголок с барной стойкой; гостиную с диваном, который также является спальным местом; рабочее место.

Для зонирования использованы компактные реечные перегородки, а также стеллажи-колонны. Вся планировка направлена на то, чтобы не перекрывать свет из единственного окна в дальней части квартиры. Для хранения используется большой шкаф, установленный в прихожей, а также открытые и закрытые стеллажи. Под телевизором — компактный столик, который можно использовать как рабочее место.

Ванная получилась небольшой по размеру, поэтому от сидячей ванны отказались в пользу комфортной душевой кабины. В отличие от всей квартиры санузел выполнен в теплых тонах. Здесь много света и белых элементов, которые зрительно увеличивают пространство. Слева от двери расположили стиральную машину, а над ней — вместительный шкаф для хранения.

2. Из студии в полноценную однушку

А вот пример зонирования, которое позволило из квадратной студийной квартиры площадью 26 квадратов сделать полноценную однушку. К изначальной планировке от застройщика добавились стены, которые отделили от общей зоны небольшую спальню. Часть площади коридора забрали под гардеробную. В итоге при входе в квартиру нас встречает светлая прихожая, выполненная в современном минимализме. Яркий акцент — пуф глубокого терракотового цвета.

Благодаря перепланировке в квартире образовалась уютная кухня-гостиная 8,9 кв м. В основе палитры — спокойные нюдовые оттенки, которые дополняют насыщенные акценты: темно-синий диван, рыжие подушки, черная мебель и техника.

Угловая кухня с гладкими фасадами без ручек утопает в стене и не привлекает внимание, выводя на передний план зону отдыха с телевизором и столовой группой. Декор минимальный: пара растений и крупные стилизованные часы на стене.

Спальня получилась компактная, но в ней поместилось все, что нужно для комфортного отдыха. А самое главное — спальная зона полностью изолирована от общественной. В комнате дизайнер разместила кровать, встроенный шкаф, телевизор и тумбочку.

Чтобы помещение казалось просторнее и создавался эффект уютного кокона, пол и потолок выкрасили в один цвет, тем самым стерев границы между плоскостями.

Санузел получился лаконичным и минималистичным. Для оформления выбрали нейтральную цветовую гамму, а благодаря эффективной организации пространства хватило места для всего: вдоль одной стены установили душевую, рядом — унитаз и раковину с вместительными закрытыми системами хранения.

3. Лофт-настроение и мини-спальня

Это вариант квартиры для молодого человека. В работу дизайнерам досталось единое пространство, которое нужно было удобно зонировать. В итоге с помощью перегородок и расположения мебели в квартире выделили кухню; гостиную с обеденной группой; спальную зону; санузел; рихожую.

Из общих 25 квадратов жилой площади — только 15. В этом небольшом пространстве расположили линейный кухонный гарнитур (ничего лишнего — хозяин не планирует много готовить), напротив — уединенное спальное место, отделенное от остальной комнаты сплошной перегородкой. Ближе к окну — диван, ТВ и обеденный стол. Последний при необходимости можно использовать как рабочее место.

Дизайн выполнен в современном стиле, авторы проекта выбрали теплую цветовую гамму. Оригинальный элемент — отделка двух стен декоративным кирпичом, который добавляет обстановке настроение современного лофта.

Прихожая для такого метража получилась достаточно просторной — почти 5 кв. м. Здесь разместили шкаф для хранения одежды, пуфик для удобного переодевания и удобную вешалку. Эта зона выполнена в холодной гамме оттенков серого и белого с изумрудным акцентом.

В санузле площадью 4,4 метра расположили ванну, туалет, раковину с вместительной подвесной тумбой и большим зеркалом, а также стиральную машину. Над ней повесили шкаф для хранения хозяйственных принадлежностей и других вещей.

4. 25 кв. м с балконом для пожилой женщины

Этот проект доказывает, что квартира студийного типа — это не только жилье для студентов или временное пристанище для молодых семей. При правильной планировке студии 25 кв. м здесь может вполне комфортно жить и пожилой человек. Заказчица этого проекта обустраивала жилье не для себя, а для мамы. Как пишут в своем блоге дизайнеры, основными пожеланиями были: удобная кровать, спальное место для гостей, рабочий уголок и возможность хранить не только одежду, но и книги.

От застройщика досталась типичная для этого метража студия: прямоугольник с одним окном и лоджией, крошечная прихожая и санузел. Имеющееся пространство не стали загромождать перегородками, поскольку в квартире будет проживать один человек.

Жилую площадь условно разделили на две части: кухня и спальня-гостиная. Компактный кухонный гарнитур разместили линейно, отделив уголок для готовки от места для отдыха обеденным столом. На небольшой площади удалось разместить два спальных места: кушетку-кровать для хозяйки и удобное раскладное кресло на случай ночевки гостей. Здесь же расположились вместительный платяной шкаф, ТВ и навесные шкафы для домашней библиотеки.

Пространство утепленной лоджии дизайнеры задействовали по максимуму: организовали у каждой стены вместительную систему хранения, а также разместили здесь компактный подвесной столик, который можно использовать как рабочее место или почитать за ним книгу, наслаждаясь утренним кофе.

Поскольку все пространства в этой квартире небольшие, и жилая зона, и балкон выполнены в светлой палитре, которая визуально увеличивает площадь. Дополняют ее теплые тона коричневого и бежевого, а также уютная фактура дерева.

Прихожая 3,2 кв. м получилась удивительно функциональной: хватило места и для вместительного шкафа, и для большого зеркала, и для входной зоны, где удобно раздеваться и одеваться. На полу два типа покрытия: практичная плитка у двери, далее — такой же, как во всей остальной квартире светлый ламинат.

В санузле 3,5 кв. м нашлось место для всего необходимого: душевой кабины 90х90 см, систем хранения, стиральной машины и даже отдельного уголка с кошачьим лотком. Пространство также оформили в теплых нюдовых тонах. На стенах и на полу — керамогранит, причем напольное покрытие повторяет отделку входной зоны.

Дизайн квартиры-студии 20 кв. м: стильные и практичные решения на примере 7 проектов

Кажется, что на 20 квадратных метрах можно с трудом уместить гостиную, спальню и кухню. Показываем семь проектов от дизайнеров, которым удалось успешно решить эту задачу.

Дизайн квартиры-студии площадью 30 кв. м: 10 реальных примеров (и cпособы их повторить)

В нашей подборке — функциональные и уютные интерьеры в разных стилях, которые оформлены на площади всего 30 квадратных метров. В большинстве случаев удалось разместить и спальню, и гостиную, и обеденную зоны. Как? Смотрите сами.

7 маленьких квартир-студий, в которых вы захотите жить

Показываем студии из городов Швеции, Киева из Москвы, где грамотно использовали пространство и оформили удобный интерьер.

Подписывайтесь на наш канал! Мы публикуем свежие идеи по дизайну, ремонту, советы по садоводству и обзоры ИКЕА https://zen.yandex.ru/ivd.ru