Найти в Дзене
INMYROOM

Крутая трехкомнатная квартира-трансформер 95 м²

Оглавление

Вкратце

Трехкомнатная квартира находится в старинном доходном доме И. А. Жадимировского в стиле классицизм. Для заказчика, который обратился к дизайнерам из студии Background Studio, было важно сделать максимально функциональную квартиру с творческой идеей, так как он сам занимался живописью, хотя основная работа связана с цифрами. Авторы проекта включили мотивы супрематизма в композиции столярных изделий. Так на кухне появился черный квадрат в сером кубе. А в гостиной через арку шкафов просматривается шкаф для книг с ярко-красными, желтыми, белыми геометрическими фигурами.

 📷
📷

Подробности

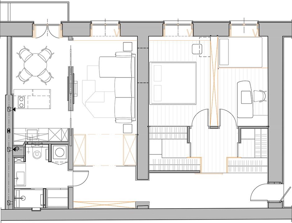
Во многом планировка задана исходными данными квартиры и всеми условиями, которые должны быть выполнены для согласования перепланировки. Было зафиксировано расположение мокрых зон и изолирована кухня из-за наличия газового оборудования. Капитальная стена делит пространство на две зоны, поэтому пришлось сохранить коридор.

Дизайнеры попытались создать эффект перетекания одного помещения в другое — в этом помогли широкие и высокие в потолок проемы с полотнами, либо уходящими в карманы, либо вдоль стен. Таким образом получилось визуально объединить пространство кухни и гостиной, а приватный блок — кабинет, спальня, гардеробная — превратить в трансформер. Так при открытых дверях-перегородках получается большая единая гардеробная. При закрытых — внутренний холл, из которого можно попасть в кабинет или в спальню.

 📷
📷

Кухня осталась на прежнем месте. Чтобы изолировать ее от остальных помещений, сделали дверные полотна в потолок, уходящие в толщину стен. Так был создан эффект трансформирующегося пространства.

 📷
📷

На кухне на острове удалось подобрать очень необычную текстуру гранита, в крупных серых «яблоках» с вкраплением темно-ржавых точек, которые сочетаются с керамогранитом пола.

 📷
📷

 📷
📷

Для заказчика было важно сохранить атмосферу Петербурга, он хотел оставить открытым старый кирпич. «Требовалось, чтобы кирпич сохранил свою живость и не убил интерьер доминирующим рыжим цветом. Почти в каждом помещении присутствует его текстура, но через муар известкой штукатурки. Мы придумали технику покрытия: известковую штукатурку растирали вместе с кирпичной пылью, а сверху закрепили грунтовкой, чтобы не осыпалось», — рассказывают дизайнеры.

 📷
📷

Ковер сложной формы, но идеальной для этого пространства: со стороны прохода на кухню ковер имеет срезанный угол: если идти на кухню из холла, то не запинаешься о ковер. Также геометрия и цвет идеально вписались в интерьер.

 📷
📷

 📷
📷

 📷
📷

В интерьере нет какого-то отдельного уникального предмета: уникальны все столярные изделия, которые создают архитектуру пространства.

 📷
📷

 📷
📷

 📷
📷

Небольшой по площади санузел должен был вместить в себя много функций: помимо стандартных предметов, еще и инфракрасную кабину, и хозблок со стиральной машиной. В помещении находится массивная железобетонная балка, которую нужно было учесть в объемно-пространственном решении. Поэтому получилась сложная композиция как потолка, так и стен.

Больше фото тут:

Крутая трехкомнатная квартира-трансформер 95 м²