Найти в Дзене
INMYROOM

Двушка 52 м² с маленькой кухней в брежневке

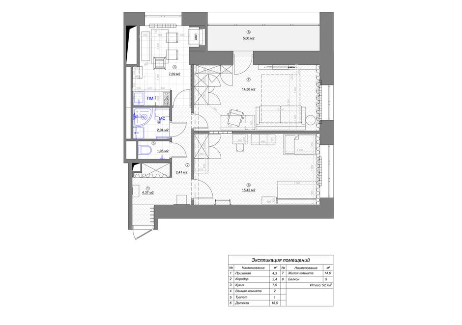
Вкратце Эту квартиру Евгения Рахвальская оформила для своей семьи из трех человек. Двушка находится в доме 1968 года в центре Москвы, поэтому дизайнеру хотелось получить ностальгический интерьер, при этом не уйти полностью в ретро. Планировку оставили практически неизменной, а совершенно безликую обстановку оживили — добавили стену из стеклоблоков, электропроводку открытого типа и покрасили потолок в детской в синий цвет. Подробности Изначально между жилыми комнатами была дверь, но семье требовались абсолютно изолированные комнаты, в то же время хотелось сохранить эту проницаемость и воздушность, которую давала дверь. Поэтому Евгения Рахвальская решила заложить проем матовыми стеклоблоками. «Нашей целью было переехать в квартиру как можно скорее, ремонт занял всего три месяца. Перепланировку мы даже не рассматривали — пришлось бы отказываться от газоснабжения. Это трудоемко и дорого, поэтому вопрос отпал», — говорит хозяйка. Все стены и потолки покрасили моющейся краской разных цве
Оглавление

Вкратце

Эту квартиру Евгения Рахвальская оформила для своей семьи из трех человек. Двушка находится в доме 1968 года в центре Москвы, поэтому дизайнеру хотелось получить ностальгический интерьер, при этом не уйти полностью в ретро. Планировку оставили практически неизменной, а совершенно безликую обстановку оживили — добавили стену из стеклоблоков, электропроводку открытого типа и покрасили потолок в детской в синий цвет.

 📷
📷

Подробности

Изначально между жилыми комнатами была дверь, но семье требовались абсолютно изолированные комнаты, в то же время хотелось сохранить эту проницаемость и воздушность, которую давала дверь. Поэтому Евгения Рахвальская решила заложить проем матовыми стеклоблоками. «Нашей целью было переехать в квартиру как можно скорее, ремонт занял всего три месяца. Перепланировку мы даже не рассматривали — пришлось бы отказываться от газоснабжения. Это трудоемко и дорого, поэтому вопрос отпал», — говорит хозяйка.

 📷
📷

Все стены и потолки покрасили моющейся краской разных цветов. В процессе ремонта отреставрировали паркет и деревянные окна. «Реставрировать паркет намного дороже, чем положить ламинат. Но все же дешевле, чем новый паркет хорошего качества. Для нас в этом вопросе решающим была не цена, а желание сохранить наследие и аутентичность этой квартиры», — рассказывает дизайнер.

 📷
📷

Кухня делалась на заказ. Она весьма минималистична — только самый необходимый функционал. Крупной бытовой техникой хозяева не пользуются. Духовая печь совмещена с СВЧ. Над холодильником в кирпичной нише есть открытая полка, на которой красиво и аккуратно хранятся сыпучие продукты.

 📷
📷

 📷
📷

Весь потолочный свет в квартире винтажный, в духе времени постройки дома, собран на Авито. Также в детской присутствует наследственная винтажная прикроватная тумба. Один из стульев на кухне тоже достался в наследство и дорог сердцу хозяев.

 📷
📷

«Изначально идея открытой проводки возникла потому, что хотелось оставить стены без выравнивания и избежать штробления. Но довольно быстро стало понятно, что на стенах за годы жизни в квартире образовалось множество слоев краски и наносить еще один было бы нецелесообразно — скорее всего, все тут же посыпалось бы. Поэтому пришлось произвести полный демонтаж существующий отделки и затем уже выровнять минимальным слоем штукатурки. Демонтажные работы оказались самыми долгими и дорогими во всем процессе», — рассказывает дизайнер.

 📷
📷

 📷
📷

В декоре использованы картины из семейной коллекции современной живописи. Среди них полотна таких авторов, как Валентин Шунков, Евгения Дудникова и Оля Леонтьева.

 📷
📷

«В квартире есть узкий коридор, в который выходят все двери — их четыре штуки, и с этим нужно было что-то делать. Так как конструктивные решения не рассматривались, я использовала дизайнерские — установила двери скрытого монтажа, покрасила стены, двери и потолок в один цвет. Таким образом, коридор как бы пропал из поля зрения, акцент с обилия дверей сместился на декор — светильники и зеркала», — рассказывает Евгения Рахвальская.

«Дочка обожает синий цвет. Красить им стены я не была готова, но хотелось отдать дань вкусу дочери, поэтому решила сделать синим потолок, — говорит дизайнер. — По функционалу требовалось создать моделируемое пространство, которое легко можно трансформировать под нужды растущего ребенка, а также впоследствии разделить эту комнату между двумя детьми, если потребуется. В комнате нет жестких привязок по функциональным зонам: всю мебель можно спокойно переставлять по настроению и потребностям».

«Санузел раздельный. Считаю, что если в квартире проживает больше одного человека, то совмещать его крайне рискованно. Я захотела сделать туалет своего рода убежищем, темной пещерой и покрасила стены и потолок в графитовый цвет. Ванная комната на контрасте светлая, дарящая ощущение свежести. Плитка в ванной — только в мокрой зоне», — рассказывает Евгения Рахвальская.

Больше фото тут:

Двушка 52 м² с маленькой кухней в брежневке