Добавить в корзинуПозвонить
Найти в Дзене

Как получить реальную смету на ремонт

Причина, по которой ремонт почти всегда выходит дороже первоначально озвученной суммы, проста и очевидна. Это неправильно составленная смета. В данном случае я имею в виду не заниженную стоимость материалов, а неучтённую в смете работу. Как правило, процесс выбора подрядчика для ремонта квартиры выглядит следующим образом. Заказчик обзванивает, посещает лично или приглашает на объект представителей разных фирм, бригад и частных мастеров. В процессе общения он высказывает свои пожелания. Через несколько дней поступают коммерческие предложения. После выбора самого привлекательного и разумного по цене, заключается договор. И уже в процессе ремонта выясняется, что смета нуждается в существенной корректировке. Она оказывается либо не полной, либо не отражает реальную сложность работ. И это не всегда является следствием изначального злого умысла исполнителя. Чаще всего, это цепочка банальных и типовых ошибок. Заказчик говорит: “Ничего сложного я не планирую. Всё традиционно и достаточно сдер
Оглавление

Причина, по которой ремонт почти всегда выходит дороже первоначально озвученной суммы, проста и очевидна. Это неправильно составленная смета. В данном случае я имею в виду не заниженную стоимость материалов, а неучтённую в смете работу.

https://akroterion.ru/
https://akroterion.ru/

Типовые ошибки заказчика

Как правило, процесс выбора подрядчика для ремонта квартиры выглядит следующим образом. Заказчик обзванивает, посещает лично или приглашает на объект представителей разных фирм, бригад и частных мастеров. В процессе общения он высказывает свои пожелания. Через несколько дней поступают коммерческие предложения. После выбора самого привлекательного и разумного по цене, заключается договор.

И уже в процессе ремонта выясняется, что смета нуждается в существенной корректировке. Она оказывается либо не полной, либо не отражает реальную сложность работ. И это не всегда является следствием изначального злого умысла исполнителя. Чаще всего, это цепочка банальных и типовых ошибок.

Первая ошибка: нет понимания объёма и сложности работ у исполнителя

Заказчик говорит: “Ничего сложного я не планирую. Всё традиционно и достаточно сдержанно. Надо по периметру опустить потолок и сделать в нём точечные светильники. Обои не хочу, лучше сделать стены под окраску. На пол уложите паркетную доску. Ну и розеток добавьте под ТВ и компьютер.” Строитель всё добросовестно записывает и уходит.

Вторая ошибка: нет понимания объёма и сложности работ у заказчика

Подрядчик составляет смету в соответствии с услышанными пожеланиями и предоставляет её заказчику. Тот внимательно всё проверяет и убеждается, что записано правильно. Дальше обсуждаются небольшие скидки. И обычно строители достаточно легко соглашаются. Ремонт предполагается несложный, а в смете всегда есть некоторый запас прочности. Заключается договор и начинается работа.

Третья ошибка: различия в интерпретации

А когда дело доходит до чистовых работ, становится ясным, что возникли проблемы. Заказчик обнаруживает, что хитрые строители  начинают его “разводить” на дополнительные  работы и деньги. А подрядчик видит, что ушлый заказчик хочет заставить его сделать бесплатно не оговоренный в смете объём. При этом в реальности обе стороны ничего такого делать вовсе и не собирались. Причина – разная интерпретация озвученного заказчиком и записанного исполнителем.

  • Заказчик представлял себе достаточно сложные многоуровневые потолки с лепниной и рядами точечных светильников. А строитель собирался просто опустить периметр потолка в один уровень и врезать в него десяток светильников.
  • Заказчик хотел стены окрашенные специальным декоративным покрытием. Такое наносят по особой технологии и не все мастера умеют с ним работать. А строитель думал покрасить стены в два слоя простой водоэмульсионкой силами рядового маляра.
  • Паркетной доской заказчик называл инженерный массив, который надо клеить на специальный клей. Строитель же предполагал доску с замковым соединением, быстро укладываемую на подложку.
  • Да и с розетками вышла неувязочка. ТВ оказался домашним кинотеатром со множеством “прибамбасов”, а к компьютеру нужна оргтехника на небольшой офис. Запланированных розеток на всё это явно не хватает.

Как избежать разногласий

Слова – плохой и ненадёжный посредник в вопросе передачи информации. Тем более технической. Можно дословно проговорить одно и то же десяти разным людям, и все они поймут это по-разному. Необходимо, чтобы все участники обсуждения исходили из единых и одинаково понимаемых условий. Проще всего было разослать всем претендентам по электронной почте одинаковый пакет чертежей. И для этого не обязательно выполнять полноценный дизайн-проект. Для составления сметы требуется всего 10 принципиальных схем и чертежей. Но именно они позволят реально оценить объём работы в плане трудоёмкости и стоимости. И если в дальнейшем возникнут какие-то дополнительные работы, будет сразу понятно, откуда они взялись. Либо это дополнительное пожелание со стороны заказчика, либо упущение со стороны подрядчика. В зависимости от этого будет понятно, кому за это платить. Риск разночтений и вытекающих из них конфликтов сводится к минимуму.

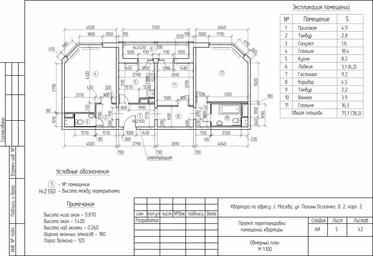
Набор схем и чертежей, необходимый для составления сметы

Для выполнения ремонтно-строительных работ требуется достаточно большой набор чертежей, но для составления сметы вполне достаточно всего 10 схем и чертежей. Вот их список:

  1. Обмерный план существующего положения.
  2. Новая планировка с расстановкой мебели.
  3. План демонтажа существующих перегородок.
  4. План монтажа новых перегородок.
  5. План дверей (размеры проёмов, открывание дверей, их тип).
  6. План потолков.
  7. План полов.
  8. Схема отделки стен (где-какой тип покрытия).
  9. Схема электрического освещения (где и сколько светильников, откуда они включаются).
  10. Схема размещения розеток (где, сколько, каких).

Примеры подобных десяти чертежей приведены в галерее ниже:

Ставьте "лайк", подписывайтесь на канал и соц.сети:
| ВК | ОК | МАХ |

Расширенный вариант статьи доступен в блоге

Герман Чигрин (архитектор, дизайнер интерьера)

Архитектор Герман Чигрин
Архитектор Герман Чигрин

Вам могут понравиться и другие мои статьи:

Требования к перепланировке квартир
Архитектор Герман Чигрин13 мая 2020

Ключевые слова:

#дизайн #проект #смета #ремонт