Добавить в корзинуПозвонить
Найти в Дзене
Хоум Сапиенс

Почему газобетонная кладка не развалится просто так

То же самое - и пенобетонная... Если сравнивать газобетонную кладку с кирпичной, то первая не особо вызывает доверия. Материал основы едва ли не крошится руками, а вместо солидного слоя раствора (который можно даже назвать пескобетоном) используется какая то тонкослойная размазня. Поэтому интернет и полон горе-знатоков, ногтем, глазком и одной сказавшей бабкой определяющих, что "газобетон для несущих стен не предназначен". И тем не менее расчетное сопротивление газобетонной кладки при сжатии оказывается сопоставимым с кирпичной. Все дело в особенности работы кладки под нагрузкой. Кирпичная кладка - это некий композит из двух различных по физико-механическим свойствам материалов, которые сами по себе структурно и по свойствам не очень однородны. Добавим к этому неравномерность зон контакта материалов внутри массива из-за геометрических несовершенств, и получается, что вертикальная сжимающая нагрузка на кладку не ровным слоем "размазывается" по сечению, а на некоторые участки давит

То же самое - и пенобетонная...

Если сравнивать газобетонную кладку с кирпичной, то первая не особо вызывает доверия. Материал основы едва ли не крошится руками, а вместо солидного слоя раствора (который можно даже назвать пескобетоном) используется какая то тонкослойная размазня. Поэтому интернет и полон горе-знатоков, ногтем, глазком и одной сказавшей бабкой определяющих, что "газобетон для несущих стен не предназначен". И тем не менее расчетное сопротивление газобетонной кладки при сжатии оказывается сопоставимым с кирпичной. Все дело в особенности работы кладки под нагрузкой.

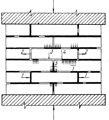
 Напряженное состояние кирпичей (камней) в кладке при сжатии кладки: 
 1 - сжатие;
 2 - растяжение;
 3 - изгиб;
4 - срез;
5 - смятие.
Напряженное состояние кирпичей (камней) в кладке при сжатии кладки: 1 - сжатие; 2 - растяжение; 3 - изгиб; 4 - срез; 5 - смятие.

Кирпичная кладка - это некий композит из двух различных по физико-механическим свойствам материалов, которые сами по себе структурно и по свойствам не очень однородны. Добавим к этому неравномерность зон контакта материалов внутри массива из-за геометрических несовершенств, и получается, что вертикальная сжимающая нагрузка на кладку не ровным слоем "размазывается" по сечению, а на некоторые участки давит сильнее, да еще таким образом, что часть кирпичей получают столь нелюбимые ими изгиб и срез. Одновременно менее жесткий раствор давится из под кирпичей, как крем из под коржей тортика, и тянет кирпичики за собой, растягивая их, чего они тоже не любят. В результате даже при небольшой нагрузке на кладку редкие особо невезучие кирпичи начинают трескаться от невыгодных для них сочетаний усилий. Пока ничего страшного, даже хорошо - тем самым снимаются концентрации напряжений, и сами напряжения немного выравниваются. Но по мере роста нагрузки количество трещин увеличивается, и при достижении определенного уровня процесс трещинообразования продолжается даже без роста нагрузки. В конце концов, вертикальные трещины соединяются друг с другом, разделяя некогда пухлую и монолитную кладку на тоненькие столбики, легко теряющие устойчивость. Так и происходит разрушение сжимаемой кладки.

Стадии работы кладки при сжатии
Стадии работы кладки при сжатии

И чтобы не доводить ее до такого состояния, нормы сильно ограничивают допустимое среднее давление. Например, для кладки из кирпича М100 на растворе М100 (цифры соответствуют средней прочности при сжатии в кг на кв. см) расчетное сопротивление сжатию назначается заведомо меньше прочности основных материалов - только 18 кг/см^2 .

Повышения сопротивления можно достичь за счет усиления прочностных свойств материалов. Но как видим, можно еще уменьшить количество раствора в единице объема кладки, организовать более равномерную передачу усилий внутри массива, увеличить несущую способность отдельных кирпичей (камней) на срез, растяжение и изгиб за счет размеров их сечений. И получается, что газобетонная кладка с высотой ряда 200-300 мм, при хорошей геометрии блоков, на тонком клеевом шве просто лучше использует резервы прочности материалов. Автоклавные газобетонные блокои М50 (В3,5), уложенные на клей, обеспечивают расчетное сопротивление 15 кг/см^2 (13,5 - неавтоклавные). Кирпич же марки М50, согласно нормам, гарантирует только 11 (такой сейчас не выпускается, но много "солидных" старинных зданий построено даже при меньшей марке).

Сказанное не значит, что ячеистобетонная кладка из-за относительной непрочности базового материала совсем не создает проблем при применении. Но эти проблемы решаемы, при том, что основной прочностной показатель оказывается более чем "на уровне". Так что смело стройте из газобетона и приглашайте на новоселье гостей любой комплекции.

ЗЫ. Смело - не означает бездумно.

ЗЗЫ. Наверное многие догадались, но на всякий случай напомню - кладка из перегородочных ячеистобетонных блоков, уложенных на бок, а также из отходов производства (т.н. "донных срезов") из-за малой высоты ряда будет намного менее прочной.

Кладка из "донного среза"
Кладка из "донного среза"

Источники:

  • СП 15.13330.2012. Каменные и армокаменные конструкции, Табл. 2, 3
  • СТО 501-52-01-2007. Проектирование и возведение ораждающих конструкций жилых и общественных зданий с применением ячеистых бетонов в Российской Федерации, Табл. 6.6
  • Вахненко П.Ф. Каменные и армокаменные конструкции. Киев, 1978. С. 6-8.