Найти в Дзене
Проекты Коттеджей

Проект компактного дома из газобетона с террасой 12x10м

Перед вами проект компактного дома в европейском стиле. Общая площадь дома 171 квадратный метр.

В составе дома есть так же две террасы, крытая и открытая. Одна из них объединяет в себе функции крыльца. В конструктивной схеме проектом заложены несущие конструкции из газобетона, монолитный плитный фундамент, монолитные перекрытия и чердачная кровля.

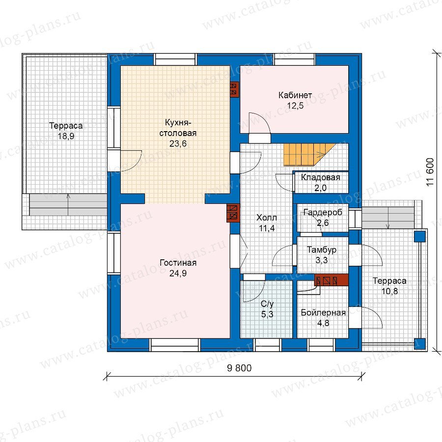
Снаружи стены отделаны штукатуркой двух цветов и искусственным камнем в цокольной части. Большие оконные проемы зрительно облегчают общий объем здания. На первом этаже размещается гостевая зона со всеми необходимыми помещениями, на втором этаже - спальная зона и зона отдыха. Рассмотрим планировки более внимательно. Вход на первый этаж осуществляется через тамбур, ведущий нас в главный холл.

-2
-3

Есть так же еще один вход, однако он скорее будет использоваться преимущественно в теплое время года, так как ведет нас в гостиную с террасы и не оснащен тамбуром. Сразу из холла мы можем попасть в большую гостиную и кухню-столовую, объединенную общим пространством. Так же на этаже имеются кабинет, гардероб, санузел, кладовая и котельная.

Котельная, согласно нормам пожарной безопасности, имеет свой обособленный вход. На втором этаже разместились три спальни, большая освещенная ванная, санузел, кладовая и гардероб. Одна из спален имеет балкон.

Подробнее о проекте:
https://catalog-plans.ru/catalog/57-50

3D-модель:
https://catalog-plans.ru/models?num=57-50
Расчёт сметы строительства этого дома:
https://catalog-plans.ru/calculator?project=57-50