Найти в Дзене

Как я построил небольшую баню своими руками: пошаговый фотоотчет + чертежи

Автор статьи и фото: Сергей Смирнов Подписчик канала Проекты Домов. Строительство. По 5-ти летнему опыту эксплуатации бани, могу сказать следующее: нельзя закрывать зазоры между печью, стеной и полом, тогда печь из под фундамента поднимает в парилку свежий воздух. В парилке дышится легко даже в +115 градусов. По времени нагрева: летом при +15 на улице, при топке березой +100 градусов за 45 - 50 минут, зимой при - 10 -1,5 - 2 часа. При выборе проекта бани, я пришел к выводу, что длинный строительный материал (брус, сруб) при изменении температур летних, зимних, суточных и т.д подвергается деформации, что приводит к образованию микрощелей и потере тепла. Поэтому было решено построить каркасную баню с минимальной длинной материала затяжки. Вертикальные стойки - брус 200х200. Расстояние между стойками, определялось шириной базальтовых плит - 600 мм. Затяжка между стойками - доска 100х50. Между досками и стойками - джутовая лента. Доски затяжки зафиксированы между брусками 50х25 в

Автор статьи и фото: Сергей Смирнов

Подписчик канала Проекты Домов. Строительство.

По 5-ти летнему опыту эксплуатации бани, могу сказать следующее: нельзя закрывать зазоры между печью, стеной и полом, тогда печь из под фундамента поднимает в парилку свежий воздух. В парилке дышится легко даже в +115 градусов. По времени нагрева: летом при +15 на улице, при топке березой +100 градусов за 45 - 50 минут, зимой при - 10 -1,5 - 2 часа.

Уже готовая баня. Фото автора
Уже готовая баня. Фото автора
При выборе проекта бани, я пришел к выводу, что длинный строительный материал (брус, сруб) при изменении температур летних, зимних, суточных и т.д подвергается деформации, что приводит к образованию микрощелей и потере тепла. Поэтому было решено построить каркасную баню с минимальной длинной материала затяжки.

Планировка бани. Фото автора
Планировка бани. Фото автора

Подготовительные работы. Фото автора
Подготовительные работы. Фото автора

Вертикальные стойки - брус 200х200. Расстояние между стойками, определялось шириной базальтовых плит - 600 мм. Затяжка между стойками - доска 100х50. Между досками и стойками - джутовая лента. Доски затяжки зафиксированы между брусками 50х25 в "свободную".

Черновая отделка изнутри. Фото автора
Черновая отделка изнутри. Фото автора
Далее утепление. Наружные стены утеплены базальтовыми плитами плотностью не менее 50 толщиной 50мм, уложенными в два слоя - вертикальный и горизонтальный, для перекрытия мостиков холода. Потолок - базальтовый матрац толщиной 200 мм, тоже самое на полу в комнате холода и парилке.

Подготовка пола. Фото автора
Подготовка пола. Фото автора

Изнутри стены утеплены еще одним слоем базальтовых плит. Обязательно применение паро и гидроизоляции по известным технологиям. Парилку поверх базальта утепляем пенофолом толщиной 10 мм с проклейкой стыков алюминиевым скотчем. Далее полы.
В комнате отдыха - обыкновенная сосновая половая доска, уложенная после пароизоляции по лагам. Т.к. в парилке пол должен быть выше на 5 - 10 см, чем в мойке, прибиваем отрезки 50-й доски по лагам поверх пенофола вразбежку, на эти доски укладываем сосновую половую доску, т.к. мокрая сосна не бывает скользкой. необходимо оставить зазоры между полом и стенами 20 - 25 мм.

Фасадные работы. Фото автора
Фасадные работы. Фото автора

Самое сложное - пол в помывочной т.к. он должен быть теплым и влагостойким. Я сделал так: уложил сливную трубу с гидрозатвором и вывел во второй колодец септика, благо он расположен сразу за баней.
Затем при помощи керамзита (толщина не менее 15 см) сформировал воронку, армировал кладочной сеткой и залил стяжку. Затем по стяжке выложил воронку керамической плиткой. Закрепил, пропитанные горячей отработкой и отлежавшие на ветерке, лаги, на которые уложил решетку из 50-й доски.

Этап работы по фасадам бани. Фото автора
Этап работы по фасадам бани. Фото автора

Дальше просто - комната отдыха обшита сосновой вагонкой и вскрыта яхтным лаком вместе с полом, после циклевки. В парилке и мойке - двери готовые из липы, также липовая вагонка и полки. Еще один нюанс: в парилке между вагонкой и утеплителем необходим вентзазор 20 - 25 мм, а в продухе, который должен располагаться на противоположной от печи стене, в этот вент зазор насверлить отверстий.

Делаем пол. Фото автора
Делаем пол. Фото автора

Изнутри, продух, закрываем заслонкой. Теперь о фундаменте. У меня так называемый "плавающий", т.е. канавка, глубиной 40 см, в нее песчаная утрамбованная подушка 20 см и щебень 20 см, затем опалубка и армированная бетонная лента, высотой 30 см Важно! Не забудьте окошки проветривания фундамента. Фундамент под печь строится отдельно с зазором от основного в 5 см.

Добротная печка. Фото автора
Добротная печка. Фото автора

Крыша-мягкая кровля. Фото автора
Крыша-мягкая кровля. Фото автора

Если Вы строите или построили дом, если у вас есть жизненные строительные истории, или у вас есть свое мнение и рассуждения по строительству, то присылайте ваши мысли и фото нам на почту, и мы обязательно их опубликуем под вашим авторством! 9093399@mail.ru

Отделанная терраса. Фото автора
Отделанная терраса. Фото автора

Работа по отделке парной. Фото автора
Работа по отделке парной. Фото автора
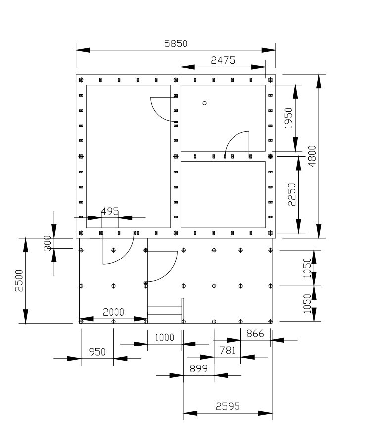
Чертеж дома. Фото автора
Чертеж дома. Фото автора
Чертеж дома. Фото автора
Чертеж дома. Фото автора
Чертеж дома. Фото автора
Чертеж дома. Фото автора
Чертеж дома с комментариями. Фото автора
Чертеж дома с комментариями. Фото автора

Автор статьи и фото: Сергей Смирнов

Подписчик канала Проекты Домов. Строительство.

Если вам интересны какие – либо детали об этом доме или у вас есть мнение как сделать его планировку лучше, ставьте лайк и пишите вопрос в комментариях и мы с удовольствием вам ответим!

Подписывайтесь на наш канал, здесь много интересного про дачу, а также новые проекты загородных домов каждый день!