Найти в Дзене
4living

Квартира для архитектора за 2 месяца

Оглавление

Архитекторы студии ARCH.625, работавшие над интерьером квартиры W_G+BET ON, обладают своим узнаваемым фирменным стилем: в нем жесткий минимализм гармонирует с теплом и комфортом, а современная архитектура выглядит легко и монументально одновременно. 

Квартира W_G+BET ON площадью 230 кв. м, расположенная в московском клубном доме, принадлежит архитектору. Ее интерьер, разработанный и воплощенный в жизнь Сергеем и Наталией Наседкиными, технологичен и уютен одновременно. Это самобытное, интересное пространство, которое в то же время является лишь фоном для человека и, как зеркало, отражает личность своего хозяина. 

Читайте также:

1. Сергей Наседкин об архитектурной моде

2. 25 спален в стиле минимализма

3. 5 идей, которые мы подсмотрели в квартире архитектора Марко Пивы

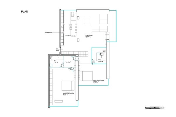
Планировка

Авторы старались создать жилое пространство, которое легко трансформируется под конкретные нужды и разные сцены жизни. Квартира имеет линейную планировку: большие помещения дискретны и перетекают друг в в друга, меняя свои функции. Возможность изоляции при этом сохранена, для чего используются перегородки из каленого стекла и шторы на алюминиевых направляющих. Отчасти задача зонирования возложена на стеллажи, шкафы и ширмы. Белый наливной пол с подогревом в свою очередь дарит жилому пространству объемную целостность. 

-2

Материалы

В интерьере использованы только натуральные материалы – древесина (тик и дуб), бетон, стекло, вписанные в прозрачно-белую цветовую гамму. Мебель, перегородки, прочие предметы интерьера принимают простые, объемные формы. Интерьер технологичен, однако это его качество скрыто за общим ощущением уюта. 

-3

Гостиная

Гостиная оснащена модульными диванами в обивке из 100% натурального льна, которые выполнены по эскизам ARCH.625. Зону отдыха можно трансформировать для просмотра ТВ, выстроить каре для вечернего чая, создать спальное место. Две стороны гостиной занимает панорамное остекление, с двух других сторон расположены системы хранения. 

-4

Подробнее о проекте на сайте 4living.ru