Добавить в корзинуПозвонить
Найти в Дзене
Вместо тысячи слов

Дом Наркомфина: здесь жила советская элита. В квартирах не было кухонь и это было задумано специально

Новинский бульвар, 25. Белый параллелепипед на тёмных ножках. Если не знать, что это такое, можно пройти мимо: ничего особенного, типичная конструктивистская постройка. Но стоит зайти внутрь и сразу понимаешь, что архитектор задумал что-то странное. Коридор высотой 2,25 метра почти давит. Двери попарно: чёрная и белая, чёрная и белая. За каждой дверью начинается квартира, в которой туалет, гостиная и спальня находятся на разных этажах. 1929 год. Советский авангард в полном расцвете. И это один из самых радикальных его экспериментов. Архитектор Моисей Гинзбург получил заказ необычным путём. Нарком финансов Николай Милютин был не только чиновником, но и увлечённым архитектурным теоретиком. Когда ему поручили построить ведомственный дом для сотрудников Наркомфина, он решил совместить служебное с экспериментальным. Гинзбург к тому времени возглавлял секцию типового жилья при Министерстве строительства и разработал несколько стандартных типов квартир. Их называли не квартирами, а жилыми яче
Оглавление

Новинский бульвар, 25. Белый параллелепипед на тёмных ножках. Если не знать, что это такое, можно пройти мимо: ничего особенного, типичная конструктивистская постройка.

Но стоит зайти внутрь и сразу понимаешь, что архитектор задумал что-то странное. Коридор высотой 2,25 метра почти давит. Двери попарно: чёрная и белая, чёрная и белая. За каждой дверью начинается квартира, в которой туалет, гостиная и спальня находятся на разных этажах.

1929 год. Советский авангард в полном расцвете. И это один из самых радикальных его экспериментов.

Дом Наркомфина на Новинском бульваре после реконструкции 2020 года. Белый параллелепипед на ножках
Дом Наркомфина на Новинском бульваре после реконструкции 2020 года. Белый параллелепипед на ножках

Кто это придумал и зачем

Архитектор Моисей Гинзбург получил заказ необычным путём. Нарком финансов Николай Милютин был не только чиновником, но и увлечённым архитектурным теоретиком. Когда ему поручили построить ведомственный дом для сотрудников Наркомфина, он решил совместить служебное с экспериментальным.

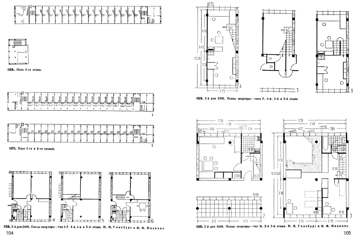
Гинзбург к тому времени возглавлял секцию типового жилья при Министерстве строительства и разработал несколько стандартных типов квартир. Их называли не квартирами, а жилыми ячейками. Самой хитрой была ячейка типа F: двухуровневая, 36 квадратных метров, и при этом с отдельным санузлом и двусветной гостиной.

Элитный министерский дом стал полигоном для этого эксперимента. Звучит парадоксально: ответственные чиновники согласились жить в экспериментальных ячейках. Но время было такое, 1929 год, авангард ещё не успели объявить буржуазным извращением.

Схема ячейки типа F. Туалет на входе, гостиная на полэтажа выше, спальня ещё на полэтажа выше
Схема ячейки типа F. Туалет на входе, гостиная на полэтажа выше, спальня ещё на полэтажа выше

Как устроена квартира, которую не называли квартирой

Представьте: вы входите в свою дверь на пятом этаже. Коридор низкий, потолок почти над головой. Прихожая, санузел. Потом лестница вверх, на пол-этажа, и вы оказываетесь в гостиной с потолком 3,5 метра и огромными окнами на запад. Свет, воздух, пространство.

Ещё лестница вверх, снова на пол-этажа, и вот спальня. Потолок снова низкий, окна на восток. Утром просыпаешься от света, вечером сидишь в гостиной с видом на закат.

Хитрость была в том, что спальни двух соседних квартир располагались по разные стороны общего коридора. Коридор как бы прятался между ними. Это позволило поднять высоту гостиных без увеличения общей высоты здания. 36 квадратных метров и при этом ощущение простора.

Кухни в квартирах не было. Это не случайность и не экономия. Гинзбург считал, что советский человек должен питаться коллективно в общей столовой. Домашняя готовка, по его логике, это пережиток буржуазного быта.

Коридор дома Наркомфина. Высота 2,25 метра — специально, чтобы экономить пространство для гостиных
Коридор дома Наркомфина. Высота 2,25 метра — специально, чтобы экономить пространство для гостиных

В Доме на набережной тоже жила советская элита, но там были совсем другие квартиры и совсем другая судьба

Коммунизм в отдельно взятом доме

Гинзбург не называл своё детище домом-коммуной, он говорил «дом переходного типа». Разница принципиальная. Дом-коммуна требует отказа от частного пространства здесь и сейчас. Дом переходного типа мягко подталкивает к этому.

По плану в здании должны были работать: столовая на первом этаже и летняя на крыше, спортзал, детский сад, прачечная, гараж. Жильцы постепенно привыкли бы есть вместе, отдавать детей в общий сад, не держать машину в личном пользовании.

Часть этого заработала. Столовая и детский сад открылись и работали в 1930-е. Солярий на крыше был доступен всем. Воздушный переход из жилого корпуса в общественный существовал.

Но потом пришли 1930-е в полном смысле слова. Состав жильцов обновился резко и по понятным причинам: чёрный воронок во двор дома Наркомфина заезжал регулярно. Тех, кто задумывал эксперимент, не стало. Эксперимент заглох сам собой.

Общественный корпус дома Наркомфина. Здесь должны были есть, заниматься спортом и оставлять детей
Общественный корпус дома Наркомфина. Здесь должны были есть, заниматься спортом и оставлять детей

Семьдесят лет забвения и одна реконструкция

После войны дом постепенно ветшал. Жильцы приспосабливались как могли: пристраивали кухни там, где их не было, делали перепланировки, захламляли коридоры. К 2000-м годам здание находилось в аварийном состоянии.

Реконструкцию сделали в 2015-2020 годах. И вот любопытная деталь: проект разработал Алексей Гинзбург, внук автора дома. Вернули исходные цвета, убрали все позднейшие пристройки, восстановили четырёхэтажный витраж общественного корпуса.

Сегодня в доме чуть больше 50 квартир. Все проданы. Дом снова элитный, только теперь в рыночном, а не советском смысле. Те самые ячейки типа F, придуманные как экономичное жильё для масс, стоят несколько миллионов рублей за квадратный метр.

Гинзбург хотел, чтобы в таких домах жили все. Получилось, что живут самые состоятельные. История редко исполняет замысел буквально.

Дом Наркомфина после реконструкции 2020 года. Вернули исходный белый цвет и убрали все поздние пристройки
Дом Наркомфина после реконструкции 2020 года. Вернули исходный белый цвет и убрали все поздние пристройки

Высотка на Котельнической, другой способ жить в центре Москвы, придуманный в то же время, но с другой идеологией

Почему стоит зайти

Дом открыт, это жилое здание, не музей. Войти в подъезд просто так не получится. Но снаружи можно рассмотреть всё: ножки, белые фасады, воздушный переход между корпусами.

Адрес: Новинский бульвар, 25. Ближайшее метро «Смоленская» или «Баррикадная», минут десять пешком.

Лучше всего приходить вечером: большие окна гостиных светятся изнутри, и видно, как устроена эта странная жилая машина. Именно так её и называли в 1929-м, жилая машина. Без иронии.

Вы бы хотели пожить в такой квартире, где гостиная, спальня и туалет на разных уровнях?