Добавить в корзинуПозвонить
Найти в Дзене
VYHODEC Платформа

Соседи, добрый день

! Уже начали плотно работать с планировками в ЖК Страна.Озерная и отрисовали несколько удачных вариантов для 2-к и 3-комнатных квартир (листайте фото, может кому-то из вас пригодится как идея!) Видим, что застройщик оставил много «грязных» зон и не везде удачно продумал места под хранение, поэтому постарались выжать максимум из каждого метра. Если не хотите тратить недели на споры, у нас есть формат «Быстрый старт» за 5 000 руб.: 🔴Сделаем 2 варианта планировки конкретно под ваши стены 🔴 Подберем концепцию стиля 🔴 Составим честный расчет бюджета на ремонт (чтобы понимать реальные цифры до начала работ) При заказе полного дизайн-проекта эти 5 000 руб. возвращаются Про приемку тоже не забывайте! Скоро массовая выдача ключей. Если нужен профессиональный взгляд и оборудование (лазеры, тепловизоры), чтобы найти скрытые дефекты и заставить застройщика их устранить — пишите Стоимость приемки мы также полностью вычитаем из стоимости ремонта, если пойдете с нами дальше Больше разборов п

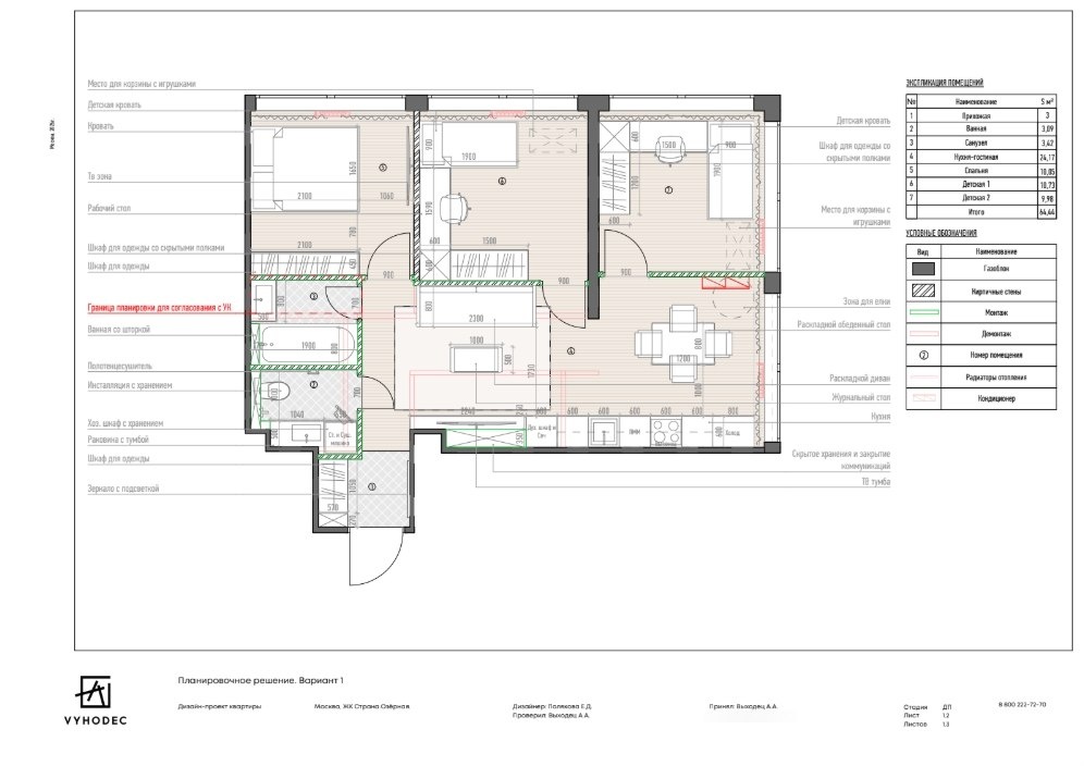
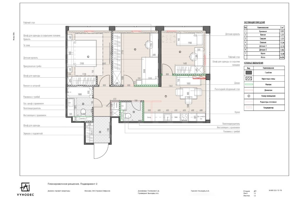
Соседи, добрый день!

Уже начали плотно работать с планировками в ЖК Страна.Озерная и отрисовали несколько удачных вариантов для 2-к и 3-комнатных квартир (листайте фото, может кому-то из вас пригодится как идея!)

Видим, что застройщик оставил много «грязных» зон и не везде удачно продумал места под хранение, поэтому постарались выжать максимум из каждого метра.

Если не хотите тратить недели на споры, у нас есть формат «Быстрый старт» за 5 000 руб.:

🔴Сделаем 2 варианта планировки конкретно под ваши стены

🔴 Подберем концепцию стиля

🔴 Составим честный расчет бюджета на ремонт (чтобы понимать реальные цифры до начала работ)

При заказе полного дизайн-проекта эти 5 000 руб. возвращаются

Про приемку тоже не забывайте!

Скоро массовая выдача ключей. Если нужен профессиональный взгляд и оборудование (лазеры, тепловизоры), чтобы найти скрытые дефекты и заставить застройщика их устранить — пишите

Стоимость приемки мы также полностью вычитаем из стоимости ремонта, если пойдете с нами дальше

Больше разборов планировок и отчетов с приемок в нашем доме выкладываем здесь:

➡️Задать вопрос или записаться: t.me/designvyhodec

➡️Наш канал: https://dzen.ru/id/5e73a57670e1fb013646cc74

➡️Наш общий чат: t.me/design_vyhodec_chat

➡️Смотреть сайт: vyhodec.ru

-2
-3
-4
-5
-6