Добавить в корзинуПозвонить
Найти в Дзене
Владислас

Просторная четырёхкомнатная квартира с окнами на Некрасовский сад

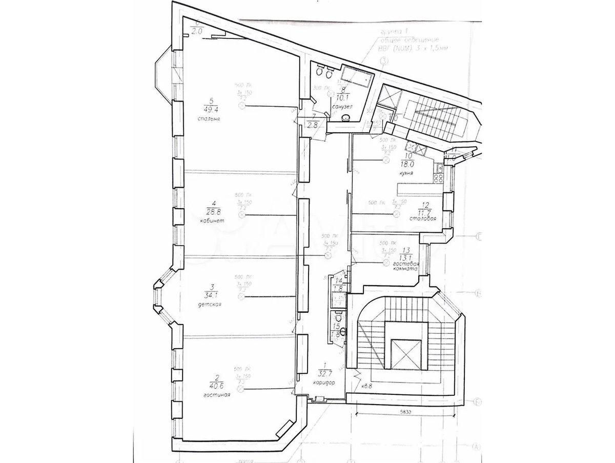
Сегодня посмотрим квартиру, которая находится по адресу: Санкт-Петербург, улица Некрасова, 58. Дом этот не самый обычный — это жилой комплекс Бассейного товарищества, построенный в 1914 году. Расположение у него действительно интересное — буквально напротив находится Некрасовский сад, один из уютных зелёных скверов центра города. Сегодня речь пойдёт о квартире, расположенной на пятом этаже. В ней четыре комнаты, а общий метраж составляет около 250 квадратных метров. И это тот случай, когда слово «просторная» не просто формальность. Квартира действительно огромная. Причём её масштаб ощущается буквально в каждом помещении. Интересно, что единственное место, которое выглядит относительно скромно — это прихожая. Она не производит какого-то сильного впечатления, и кажется, будто здесь немного не дожали с точки зрения дизайна. Прямо напротив входа открывается гостиная площадью более 40 квадратных метров. Это действительно большое пространство с тремя окнами и потолками высотой около 3,5 метр
Оглавление

Сегодня посмотрим квартиру, которая находится по адресу: Санкт-Петербург, улица Некрасова, 58. Дом этот не самый обычный — это жилой комплекс Бассейного товарищества, построенный в 1914 году.

Расположение у него действительно интересное — буквально напротив находится Некрасовский сад, один из уютных зелёных скверов центра города. Сегодня речь пойдёт о квартире, расположенной на пятом этаже. В ней четыре комнаты, а общий метраж составляет около 250 квадратных метров.

-2

И это тот случай, когда слово «просторная» не просто формальность. Квартира действительно огромная. Причём её масштаб ощущается буквально в каждом помещении.

-3

Гостиная как главное пространство квартиры

Интересно, что единственное место, которое выглядит относительно скромно — это прихожая. Она не производит какого-то сильного впечатления, и кажется, будто здесь немного не дожали с точки зрения дизайна.

-4

Прямо напротив входа открывается гостиная площадью более 40 квадратных метров. Это действительно большое пространство с тремя окнами и потолками высотой около 3,5 метров. Интересный парадокс — из-за огромной площади потолки визуально даже не кажутся настолько высокими, хотя по факту они значительно выше стандартных.

-5

Интерьер здесь уже немного устарел по современным меркам, но есть деталь, которая перекрывает практически всё — исторический камин. Причём это даже не просто камин, а настоящий декоративный элемент с невероятно красивой голубой плиткой. Честно говоря, это один из самых красивых каминов, которые вообще можно встретить в квартирах старого фонда.

-6

Такие элементы действительно формируют характер квартиры. Ещё одна особенность — очень большое расстояние между диваном и телевизором. Настолько большое, что возникает ощущение, будто пространство можно было бы организовать гораздо эффективнее. И в целом создаётся впечатление, что квартира требует переосмысления с точки зрения планировки и расстановки мебели.

-7

Детская комната с эркером

Рядом с гостиной расположена детская комната площадью около 34 квадратных метров. Это единственная комната в квартире с эркером, что само по себе уже большое преимущество. Но здесь возникает тот же эффект, что и в других помещениях — масштаб пространства начинает играть против восприятия.

-8

Например: огромный рабочий стол, большие системы хранения, стандартная кровать. И всё это на фоне площади выглядит значительно меньше, чем есть на самом деле. Даже обычный шкаф, который в стандартной квартире казался бы большим, здесь выглядит почти незаметным. Возникает редкая ситуация, когда квартира настолько большая, что визуально это создаёт ощущение пустоты.

-9

Коридор размером с отдельную квартиру

Возвращаясь обратно, нельзя не отметить коридор. Его площадь составляет около 32 квадратных метров, и он проходит практически через всю квартиру. Он широкий, просторный и фактически сам по себе уже как отдельное помещение.

-10

Именно здесь расположен общий санузел — туалет и душевая кабина. И вот здесь возникает серьёзный вопрос с точки зрения удобства.

-11

Потому что для квартиры такого масштаба наличие только одного общего санузла выглядит довольно спорным решением. Да, есть ещё один санузел, но он находится уже в мастер-спальне.

-12

Гостевая комната как показатель масштаба

Если пройти дальше по коридору, можно попасть в гостевую комнату площадью 13 квадратных метров. И сам факт наличия отдельной гостевой комнаты многое говорит о масштабе квартиры.

-13

Обычно такие помещения появляются тогда, когда основные сценарии использования уже реализованы, а свободные комнаты всё ещё остаются. Это не столько показатель роскоши, сколько показатель масштаба пространства.

-14

Кабинет с большим потенциалом

Напротив расположился кабинет площадью 28 квадратных метров. Пространство большое, но создаётся ощущение, что его потенциал раскрыт не полностью. Например, глянцевые вставки в отделке выглядят довольно спорно, а мебель кажется слишком маленькой для такой площади.

-15

Рабочий стол и кожаный диван на фоне размеров комнаты выглядят почти миниатюрно. Возникает ощущение, что при грамотном дизайнерском подходе это помещение могло бы выглядеть значительно эффектнее. Но стоит учитывать, что ремонт здесь делался довольно давно, поэтому многие решения отражают вкусы своего времени.

-16

Кухня-столовая как удачное решение

Дальше мы попадаем в кухню-столовую. Если рассматривать это пространство целиком, то его площадь превышает 30 квадратных метров. И вот это помещение как раз выглядит довольно гармонично. Здесь удалось правильно использовать масштаб.

-17

Да, есть некоторые спорные элементы — например колонна внутри пространства и островная часть кухни, которая выглядит немного необычно. Но в целом кухня выглядит цельной и функциональной. Большой обеденный стол, кухонный гарнитур и общее зонирование создают ощущение удобного пространства для жизни.

-18

Мастер-спальня с собственным санузлом

Теперь переходим к самому интересному — мастер-спальне. И здесь снова масштаб удивляет. Площадь спальни составляет около 50 квадратных метров. Это, пожалуй, одна из самых больших спален, которые вообще можно встретить в подобных квартирах.

-19

К спальне примыкает отдельный санузел площадью около 10 квадратных метров. Здесь есть: большая ванна-джакузи, биде, отдельный унитаз и полноценная ванная зона.

-20

Но возникает логичный вопрос — пользоваться этим санузлом могут только жильцы этой спальни. Для большой семьи это может быть не самым удобным решением.

-21

И, перед тем как поговорить о виде с балкона, напомню, что в моём телеграм канале, канале МАХ и группе ВК я выкладываю искренние фото- и видеообзоры квартир (в поиске: Владислас, qr-коды ниже):

-22

Вид, ради которого можно купить эту квартиру

Однако главная особенность спальни — даже не её размеры. Здесь находится полукруглое арочное окно с выходом на балкон. И именно отсюда открывается один из самых интересных видов в этой квартире. Во-первых, виден исторический корпус Евангелической женской больницы — очень красивое здание с характерной архитектурой.

-23

Во-вторых, отсюда прекрасно просматривается Некрасовский сад. Честно говоря, давно хотелось увидеть квартиру с таким видом, чтобы можно было сделать полноценный обзор. Кстати, эта квартира оценивается в 64 600 000 рублей.

-24

А в моём телеграм канале, канале МАХ и группе ВК вы найдёте обзоры нетривиальных квартиры со всей России (в поиске: Владислас, qr-код был выше). Если вам интересна тема недвижимости, архитектуры и реальных историй о квартирах — подписывайтесь и наслаждайтесь:

Квартиры
7954 интересуются